Zapraszam Was do zapoznania się z ofertą 2-pokojowego, funkcjonalnie urządzonego mieszkania z balkonem na świetnie usytuowanym osiedlu.
Sprzedaż bezpośrednia - kupujący nie płaci prowizji i PCC
Termin oddania: wrzesień 2025
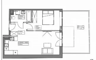
Mieszkanie składa się z:
- Sypialnia 1
- Pokój dzienny z aneksem
- Łazienka
- WC
-Przedpokój
Pełny metraż pomieszczeń przedstawia rzut mieszkania dostępny w galerii. Posiadam w ofercie inne układy i metraże tej inwestycji.
Doskonała lokalizacja:
-5 minut spacerem do przystanku tramwajowego i autobusowego
-15 minut autem do centrum Wrocławia
Zielona okolica:
-W pobliżu dwa duże parki: Wschodni i Tarnogajski
Pełna infrastruktura:
-W zasięgu spaceru sklepy, apteki oraz usługi codziennego użytku.
-15 minut spacerem do wszystkiego, co niezbędne.
Udogodnienia na osiedlu:
- Smart House by Keemple – we wszystkich mieszkaniach zainstalujemy, bez dodatkowych opłat, inteligentny system zarządzania mieszkaniem zapewniający znaczne oszczędności na rachunkach.
- Fotowoltaika - montujemy odnawialne źródła energii - panele fotowoltaiczne zasilające części wspólne budynków.
- Oświetlenie LED - w częściach wspólnych instalujemy energooszczędne i ekologiczne oświetlenie LED, sterowane czujnikami ruchu.
- Tereny zielone i ogrody deszczowe - starannie projektujemy zieleń z wykorzystaniem różnorodnych gatunków roślin.
- Ładowarki dla elektryków - wspieramy elektromobilność, na naszych osiedlach montujemy ładowarki dla samochodów elektrycznych.
- Infrastruktura publiczna - realizujemy projekty infrastruktury publicznej - oddajemy mieszkańcom drogi dojazdowe, sygnalizację świetlną, oświetlenie uliczne, chodniki i ścieżki rowerowe
Dostępne inne układy oraz metraże.
Szukasz czegoś na rynku pierwotnym? Zadzwoń! Posiadam ponad 100 inwestycji na rynku pierwotnym we Wrocławiu.
Oferujemy wykończenie pod klucz!
Polecam i zapraszam na prezentację!
Oskar Winiarski| 609 222 539
I speak English, please do not hesitate to contact me
Jako agent JOT-BE NIERUCHOMOŚCI zapewniam Państwu uniknięcie niepotrzebnego ryzyka i przeprowadzenie korzystnej transakcji. Gwarantuję rynkowe ceny, bezpieczeństwo i obsługę własnego działu prawnego. Stosuję system jakości Polskiej Federacji Rynku Nieruchomości oraz Kartę Praw Klienta Pośrednika. Służę zaangażowaniem, ekspercką wiedzą i najwyższym poziomem usług opartym o 40-letnie doświadczenie biura JOT-BE NIERUCHOMOŚCI.
Niniejsza oferta nie stanowi oferty w rozumieniu przepisów Kodeksu Cywilnego.
Oferta wysłana z programu dla biur nieruchomości ASARI CRM (asaricrm.com)