Oferuję na sprzedaż mieszkanie o powierzchni
45,79 m² w stanie deweloperskim, położone na 4. piętrze na nowoczesnym osiedlu Nowe Żerniki.
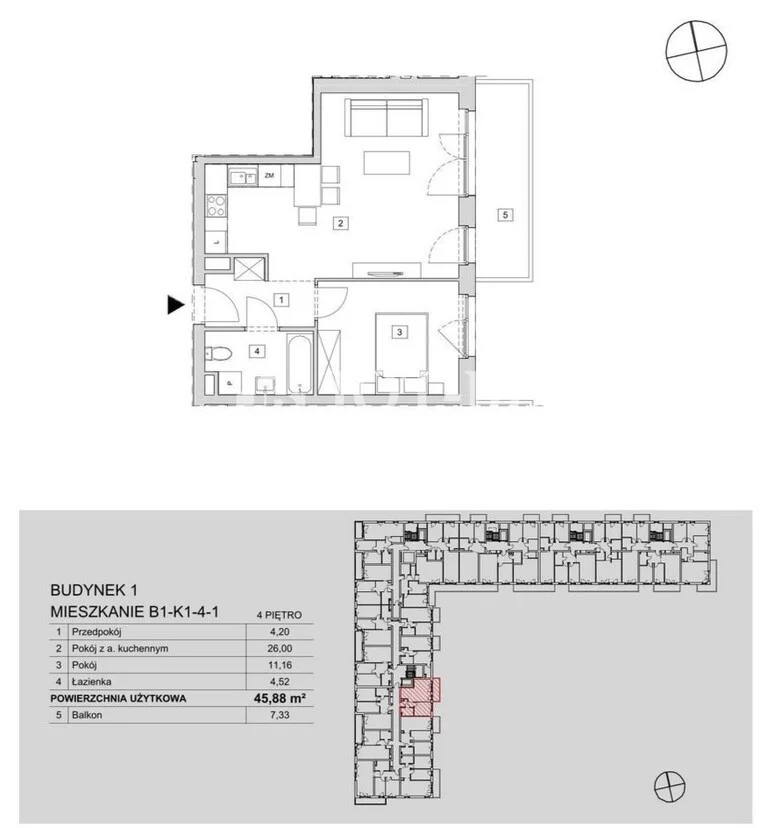
Szczegóły oferty: - Powierzchnia użytkowa: 45,79 m²
- Piętro: 4
- Liczba pokoi: 2
- Stan: deweloperski
- Balkon: 7,85 m²
Układ pomieszczeń: - Przedpokój – 4,20 m²
- Salon z aneksem kuchennym – 26,00 m²
- Pokój – 11,16 m²
- Łazienka – 4,52 m²
- Balkon – 7,85 m²
Dodatkowe informacje: - miejsce postojowe w garażu podziemnym – od 38 000 zł (obligatoryjne)
- komórka lokatorska – 4 000 zł/m² (dla wybranych mieszkań, obligatoryjna)
- wykończenie balkonu/tarasu – 600 zł/m² (obligatoryjne)
Lokalizacja i komunikacja: Mieszkanie znajduje się w dzielnicy Żerniki, która łączy nowoczesną architekturę z kameralnym charakterem i dobrym dostępem do centrum miasta.
- w pobliżu przystanki autobusowe i tramwajowe
- szybki dojazd do centrum, lotniska i AOW
- blisko stacja kolejowa Wrocław Żerniki
- w sąsiedztwie sklepy (Lidl, Biedronka), punkty usługowe, szkoły, przedszkola, place zabaw
- liczne tereny zielone, ścieżki spacerowe i rowerowe
Korzyści zakupu: - brak prowizji
- brak podatku PCC
- możliwość wykończenia mieszkania pod klucz
- doradztwo w uzyskaniu finansowania
Wojciech Jodłowski
tel. +48 609 222 532e-mail: