Na sprzedaż przestronne i funkcjonalne mieszkanie o powierzchni 62,3 m², położone w bardzo dobrze skomunikowanej części Łodzi - przy ul. Służbowej 37, tuż obok stacji Łódź Widzew.
Mieszkanie znajduje się na 7. piętrze w 10-piętrowym bloku z 1983 roku.
Do lokalu przynależy komórka lokatorska.
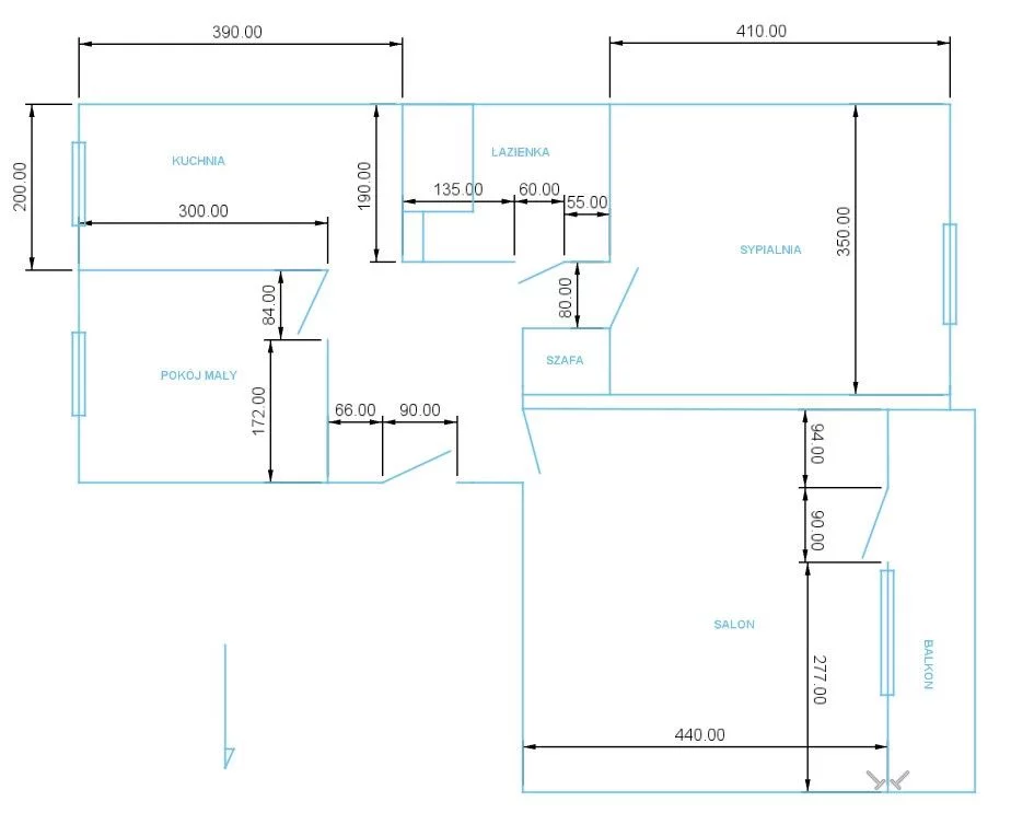
Rozkład pomieszczeń:
- 2 ustawne pokoje z ekspozycją zachodnią - jasne i słoneczne,
- kuchnia oraz dodatkowy pokój na wschód (idealny na biuro, gabinet lub garderobę),
- łazienka z WC,
- przestronny przedpokój.
Mieszkanie stanowi spółdzielcze własnościowe prawo.
Czynsz wynosi
ok. 850 zł.
Atuty lokalizacji:
- przystanki autobusowe i tramwajowe tuż przy bloku - szybki dojazd do centrum i innych dzielnic Łodzi,
- kilka minut pieszo do stacji Łódź Widzew - świetna propozycja również dla osób dojeżdżających do Warszawy,
- w pobliżu sklepy, punkty usługowe, szkoły i tereny zielone.
To mieszkanie będzie doskonałą propozycją zarówno dla rodziny, jak i osób pracujących zdalnie lub szukających dodatkowego pokoju na biuro.
Zadzwoń i umów się na obejrzenie mieszkania, zanim ktoś cię wyprzedzi
535 674 567
TEKTON PROPERTY TO NAJLEPSZE BIURO NIERUCHOMOŚCI W POLSCE WG KONKURSU LIDER NIERUCHOMOŚCI OTODOM 2020.
Znajdź nas w swoim mieście: Gdańsk, ul. Chmielna 10
- Warszawa, Plac Dąbrowskiego 1/311
- Wrocław, ul. Kasztanowa 3A/118
- Kraków, ul. Józefitów 7/4 -
Poznań, ul. Wojskowa 6/D6 -
Łódź, ul. Zachodnia 70 pok. 223.
Podejmując współpracę z przedstawicielami Tekton Property zyskujesz:- oszczędność czasu
- weryfikację dokumentów od strony formalno-prawnej
- wsparcie agenta na każdym etapie transakcji
- pomoc przy uzyskaniu kredytu hipotecznego w kilkunastu bankach
- wgląd do umów przed zawarciem aktu notarialnego u sprawdzonych Notariuszy
- własne analizy makroekonomiczne i raporty z prowadzonych działań
- dostęp do cen transakcyjnych z okolicy
Skontaktuj się z opiekunem oferty, a on poprowadzi Cię przez wszystkie etapy transakcji.
Zapraszamy do współpracy!
Niniejsze ogłoszenie nie stanowi oferty handlowej w rozumieniu przepisów art. 66 k.c., a przedstawione dane mają charakter informacyjny.