Oferta dodana za pomocą Multiportalu BeBroker
Funkcjonalne mieszkanie 2-pokojowe, dwustronne, z oddzielną widną kuchnią na 6. piętrze w budynku 6p. z 2004 roku w Ursusie przy ul.: Skoroszewskiej i Dzieci Warszawy. Os. Skorosze - blisko przystanki autobusowe.
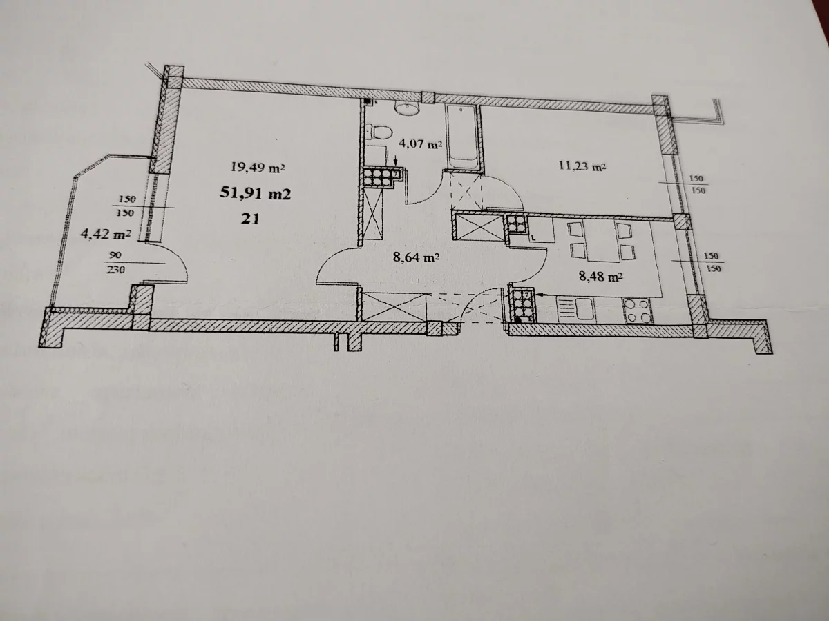
Z salonu wyjście na balkon o pow. 4,4m2. Widok z balkonu na Osiedle.
Do mieszkania przynależy miejsce parkingowe w garażu podziemnym oraz miejsce parkingowe naziemne na terenie Osiedla - dodatkowa płatność za miejsce w garażu 40 tys. zł.
Wystawa okien: południe, północ.
Mieszkanie 2-stronne, bardzo ciepłe.
Widok z okien sypialni i kuchni na panoramę Centrum Warszawy.
Powierzchnia pomieszczeń: salon 19,5m2, sypialnia 11,2 m2, kuchnia 8,5m2, łazienka 4m2, przedpokój 8,6m2. Na podłogach w pokojach parkiet, w pozostałych pomieszczeniach terakota.
Mieszkanie wysokie - 2,70m.
W przedpokoju 3 szafy wnękowe i 2 pawlacze. W sypialni jest także szafa w zabudowie.
Szafy z lustrami zapewniają wizualną przestronność lokalu.
Czynsz 708 zł.
Jednym z atutów jest lokalizacja - przy budynku są przystanki autobusowe w kierunku wielu dzielnic Warszawy. Blisko do Stacji kolejowej KM/SKM.
Na parterze obiektu mieszczą się sklepy (delikatesy mięsne GROT i piekarnia) renomowanych marek. W sklepie mięsnym różnorodność m.in. naturalnych/gotowych do spożycia potraw na szybkie posiłki.
Status prawny: własność z KW bez obciążeń.
Dane z certyfikatu energetycznego:
- roczne zapotrzebowanie na energię użytkową: 84,36 kWh/m2 - rok,
- roczne zapotrzebowanie na energię końcową: 133,48 kWh/m2 - rok,
- roczne zapotrzebowanie na nieodnawialną energię pierwotną: 146,83 kWh/m2 - rok,
- jednostkowa wielkość emisji CO2: 0,0267 t CO2/m2 - rok,
- udział odnawialnych źródeł energii w zapotrzebowaniu na energię końcową : 0,00%
Jest to funkcjonalne mieszkanie, położone w pobliżu komunikacji miejskiej, szkoły, przedszkoli, sklepów, punktów usługowych i innej infrastruktury potrzebnej do codziennego funkcjonowania.
CENA DO NEGOCJACJI.
Telefon: 668493849