BRAK PODATKU PCC BRAK PROWIZJI DLA BIURA
Biuro Nieruchomości Metrohouse oferuje Państwu sprzedaż mieszkania usytuowanego na parterze w 6 kondygnacyjnym budynku w Skarżysku-Kamiennej.
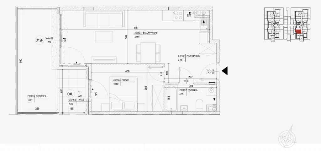
Lokal o powierzchni 43.22 m² w skład którego wchodzi:
• Przedpokój
• Łazienka z wc
• Pokój
• Salon z aneksem
• Balkon
Ogrzewanie i ciepła woda z sieci miejskiej. Stolarka okienna 3 szybowa z orientacją północno-zachodnią.
Do Państwa dyspozycji będą dwa wielorodzinne budynki z apartamentami o różnej konfiguracji. Od 2-pokojowego mieszkania z własnym ogródkiem i tarasem po 4-pokojowe z tarasem i widokiem na miasto. Zróżnicowany metraż i liczba pomieszczeń (mieszkania 2-, 3- i 4-pokojowe) pozwala w pełni dostosować rozkład do potrzeb i oczekiwań.
69 mieszkań od 31 m² do 92 m²
61 podziemnych miejsc parkingowych
15 zewnętrznych miejsc parkingowych
Apartamenty Konopnickiej to wygoda i komfort w nowoczesnych warunkach. Pomagają w tym rozwiązania architektoniczne, m.in.: 2 niskoszumowe windy, podziemne i zewnętrzne miejsca parkingowe. Zarówno parking, jak i infrastruktura zewnętrzna oraz plan budynku zostały zaprojektowane tak, by swobodnie mogły z nich korzystać osoby niepełnosprawne.
Inwestycja doskonale wpisuje się w istniejącą już miejską infrastrukturę. Projekt opiera się o modernistyczne części wspólne i nowoczesną bryłę w połączeniu z kolorami ziemi i przydomową zielenią.
Polecamy i zapraszamy do kontaktu!
Czy wiesz, że możemy przygotować dla Ciebie prezentację on-line nieruchomości? Skontaktuj się z naszym Agentem i zapytaj o szczegóły.
Pomimo, iż Doradcy Metrohouse przykładają szczególną staranność do rzetelnego prezentowania informacji o nieruchomości, nie zawsze jest możliwa weryfikacja wszystkich danych przekazanych od osób trzecich. Niniejsza prezentacja oferty nie jest ofertą w rozumieniu Kodeksu Cywilnego i ma charakter wyłącznie informacyjny.