2-pokojowe mieszkanie zlokalizowane na Woli przy ul. Redutowej
BUDYNEK/OSIEDLE
Mieszkanie znajduje się na 3 piętrze w 10 piętrowym budynku.
Rok budowy: 1963
NIERUCHOMOŚĆ
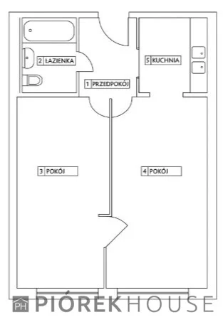
Mieszkanie o powierzchni 36,9m2 składa się z:
-Przedpokój: 3,17 m²
-Łazienka: 2,80 m²
-Pokój 1: 11,57 m²
-Pokój 2: 15,70 m²
-Kuchnia: 3,66 m²
Czynsz administracyjny wynosi 600zł.
Mieszkanie własnościowe. Stan techniczny – do generalnego remontu – co daje nowemu właścicielowi możliwość wykończenia wnętrza według własnego gustu i potrzeb.
Parking-do dyspozycji mieszkańców dostępny jest ogólnodostępny parking.
Ekspozycja okien- wschód.
OKOLICA
Świetna lokalizacja – w bezpośrednim otoczeniu stacja metra, liczne przystanki komunikacji miejskiej, sklepy, szkoły oraz urokliwe tereny zielone.
Cicha i zielona okolica, idealna do wypoczynku i spacerów.
Zapraszam na prezentację nieruchomości.
W razie zainteresowania prosimy o kontakt:
730 173 007, 530 835 079
Powyższa oferta ma charakter informacyjny i nie stanowi oferty handlowej w rozumieniu art. 66 §1 Kodeksu Cywilnego.
Podana ulica nieruchomości przy ogłoszeniu ma na celu wskazania przybliżonej lokalizacji z dużą dokładnością.
Bezpłatnie pomagamy znaleźć najkorzystniejszą na rynku ofertę kredytową.
Na życzenie w ramach prezentacji nieruchomości możliwość przeprowadzenia przez firmę budowlaną oceny stanu mieszkania i wycenę remontu.
Oferta wysłana z programu dla biur nieruchomości ASARI CRM (asaricrm.com)