|
Proponujemy do sprzedaży wyremontowane mieszkanie z garażem.
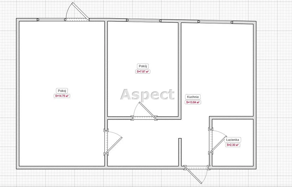
Mieszkanie o pow. 44m2 składa się z 2 niezależnych pokoi, oddzielnej kuchni i łazienki. Przeprowadzony został generalny remont, łącznie z instalacjami.
Lokal znajduje się na I piętrze niskiego, murowanego bloku na os. Góry.
Do mieszkania przynależy piwnica.
Możliwość dokupienia murowanego garażu
Ogrzewanie własne, niski czynsz. Idealne pod inwestycje na wynajem.
Zachęcamy do skorzystania z wirtualnego spaceru
- obejrzyj mieszkanie nie wychodząc z domu.
::DODATKOWE INFORMACJE |
Rodzaj budynku: blok |
Głośność: ciche |
Widok: na podwórko |
Woda: jest |
Dojazd: asfalt |
Otoczenie: działki zabudowane |
Ogrzewanie: własne elektryczne |
Rozkład: jednostronne rozkładowe |
Usytuowanie: jednostronne |
Opłaty w czynszu: administracja, fundusz remontowy |
Opłaty wg liczników: prąd, woda |
Rodzaj mieszkania: jednopoziomowe |
Garaż: garaż |
Piwnica: TAK |
Stan lokalu: Po remoncie |
Okna: PCV |
Instalacje: wymienione |
Balkon: jest |
Powierzchnia użytkowa [m2]: 44 |
Rok budowy: 1960 |
Liczba pokoi: 2 |
Wysokość pomieszczeń [m]: 2,4000 |
Liczba sypialni: 2 |
Podłogi pokoi: panele |
Wystawa okien - pokoje : Zach |
Typ kuchni: oddzielna |
Rodzaj kuchni: z zabudową kuchenną |
Podłoga kuchni: terakota |
Typ łazienki: razem z wc |
Glazura łazienki: nowego typu |
Podłoga łazienki: terakota |
Wyposażenie łazienki: WC, umywalka, lustro, wanna |
::LINK DO STRONY |
http://www.plock.aspect.info.pl/oferta.aspx?id=1120585
Zobacz Wirtualny Spacer: https://panoramy.galactica.pl/bck/157867
::KONTAKT DO AGENTA |
Małgorzata Nowaczuk |
607 467 484 |
Zapytaj o ofertę
::DANE BIURA |
Aspect Nieruchomości - Płock |
"Prospecto" Małgorzata Nowaczuk |
Sienkiewicza 36/11 |
09-400 Płock |
24 2626111 |
www.plock.aspect.info.pl
--------------------------
www.plock.aspect.info.pl
aktualna oferta na www.aspect.info.pl
|
Oferta wysłana z systemu BCK Galactica