Na sprzedaż jasne i funkcjonalne mieszkanie o powierzchni 51,73 m² z dużym tarasem i piwnicą, położone na 2. piętrze niskiego budynku z 1999 roku (bez windy). Idealne dla pary, singla lub pod wynajem.
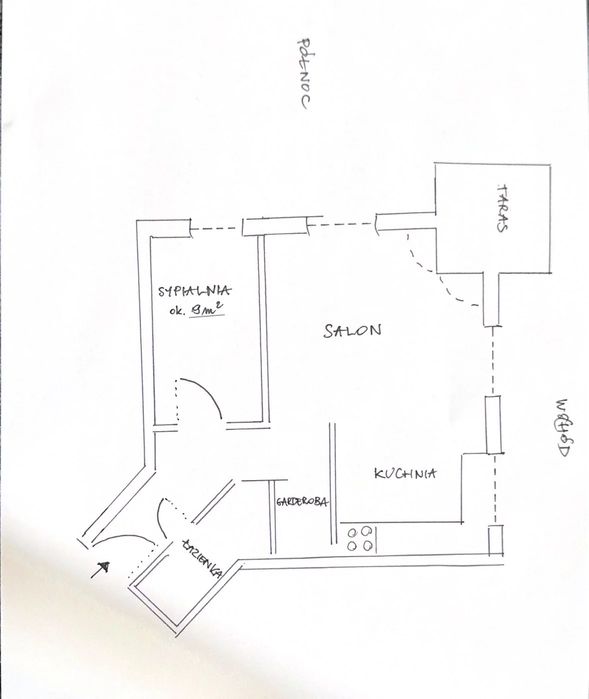
Mieszkanie składa się z przestronnego salonu z widną oddzielną kuchnią (została otwarta na salon, możliwość przywrócenia ścianki) - całość około 25 m2, ustawnej sypialni (ok. 9 m2), garderoby, łazienki (ok. 5 m2) oraz przedpokoju. Sporym atutem jest duży balkon (ok. 6 m²), zadaszony, z ekspozycją północ–wschód–południe. Do lokalu przynależy piwnica (4,7 m²).
Atutem mieszkania jest parkiet dębowy - mozaika, raz cyklinowany, w dobrym stanie.
W 2019 roku mieszkanie zostało częściowo odświeżone (cyklinowanie podłóg, gładzie, kuchnia, nowe drzwi wewnętrzne). Obecnie nadaje się do zamieszkania od razu, ewentualnie do delikatnego odświeżenia.
Najważniejsze informacje:
• powierzchnia: 51,73 m² + piwnica 4,7 m²
• piętro 2/3, niski blok z 1999 r.
• ogrzewanie i ciepła woda miejskie
• czynsz ok. 660 zł (zaliczki + fundusz remontowy)
• pełna własność, grunt uregulowany, księga wieczysta
• osiedle zadbane, dużo zieleni
Lokalizacja:
Osiedle sąsiaduje z Aleją Sportów Miejskich z możliwością uprawiania różnego rodzaju sportów oraz zażywania relaksu. W pobliżu centrum handlowe z Kauflandem i usługami (ok. 350 m), liczne sklepy, piekarnie, restauracje i przychodnia. Do Wola Parku tylko 2 przystanki.
Świetna komunikacja – w zasięgu krótkiego spaceru metro Bemowo, przystanki autobusowe i tramwajowe.
Parking:
Na osiedlu miejsca naziemne i w garażach (możliwość wynajmu), dodatkowo niedrogi abonament parkingowy przy Kauflandzie.
Zapraszam do kontaktu i umówienia prezentacji!
ℹ️ Sprzedaż bezpośrednia – proszę o kontakt tylko osoby prywatne, biura zapraszam tylko z zainteresowanym klientem.
- Na sprzedaż mieszkanie 2-pokojowe o powierzchni 51,73 m²
- 2 piętro w 3-piętrowym bloku bez windy z 1999 roku
- Warszawa, Bemowo, ul. gen. Tadeusza Pełczyńskiego
- Balkon, piwnica, możliwość wynajęcia garażu, osobna kuchnia
- Mieszkanie w bardzo dobrym stanie, okna plastikowe
- Odrębna własność z księgą wieczystą
- Wyposażenie: kuchenka, lodówka, piekarnik, pralka, zmywarka
- Cena do negocjacji