Atrakcyjny Apartament w Krakowie
KROWODRZA GÓRKA- panorama/balkon-taras 22 m2
Oferujemy na sprzedaż bardzo atrakcyjny dwupokojowy apartament w bardzo dobrej lokalizacji.
Wysoki standard wykończenia - nowoczesny, klimatyczny. Usytuowany na dziewiątym piętrze . Z obszernego tarasu widok na panoramę miasta oraz okolic Krakowa. Wysokiej klasy apartamentowiec z monitoringiem i ochroną. Możliwość wynajęcia stanowiska postojowego.
Znakomita lokalizacji.Szybki dojazd do Centrum miasta. 10 min do Rynku Głównego .Bardzo blisko węzła komunikacyjnego, linia szybkiego tramwaju, arterie wylotowe z miasta oraz na lotnisko. Dobra infrastruktura handlowo- usługowa. Blisko parki i tereny rekreacyjne.
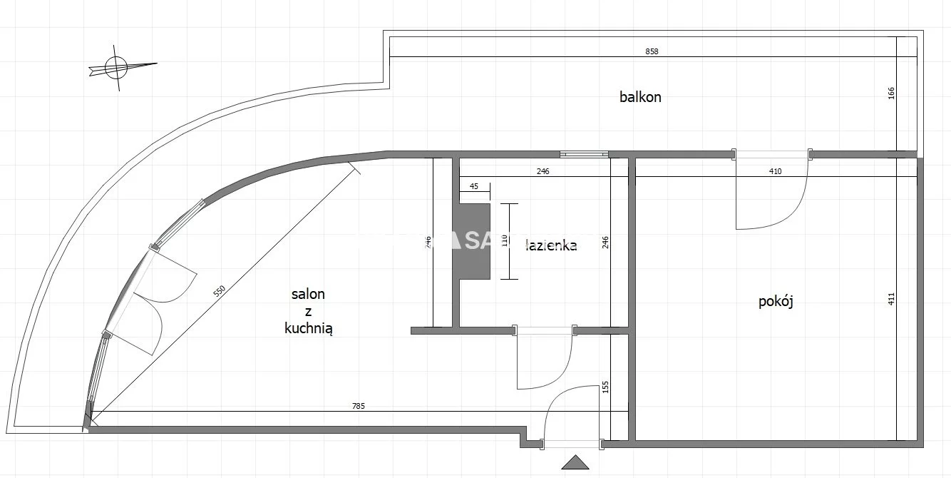
Lokal składa się z salonu połączonego z aneksem kuchennym, sypialni oraz przestronnej łazienki z oknem.
Designer-ski . Wykończony oraz wyposażony w pełni. Gotowy do zamieszkania.
Niskie koszty obsługi adm. i mediów.
Polecam. Marek Popiela
Kontakt; tel; 518 967 677
mail;
Zapytaj o ofertę
::DODATKOWE INFORMACJE
Rodzaj budynku: apartamentowiec
Parking strzeżony (odległość w metrach) [m]: 500
Dozór budynku: tak - jest
Głośność: ciche
Widok: panorama miasta
Gaz: brak
Woda: ciepła - sieć
Dojazd: asfaltowa/kostka
Otoczenie: panorama
Ogrzewanie: C.O. miejskie
Linie telefoniczne: TAK
Komunikacja publ.: MPK, miejska, autobus miejski, tramwaj, PKP
Winda: TAK
Liczba wind: 4
Rozkład: rozkładowe
Usytuowanie: narożne
Drzwi antywłamaniowe: TAK
Min. okres naj. (mies.): 6
Opłaty w czynszu: wywóz nieczystości, woda ciepła, woda, Winda, sprzątanie, ochrona, monitoring, fundusz remontowy, Części wspólne, CO, administracja
Opłaty wg liczników: woda, prąd
Rodzaj mieszkania: jednopoziomowe
Garaż: w budynku
Stan lokalu: bardzo dobry
Okna: drewniane
Instalacje: dobre
Balkon: taras
Tarasy: taras duży
Liczba tarasów: 1
Powierzchnia balkonów/tarasów [m2]: 22
Powierzchnia użytkowa [m2]: 44
Rok budowy: 2010
Liczba pokoi: 2
Wysokość pomieszczeń [m]: 270
Liczba sypialni: 1
Powierzchnia pokoi [m2]: 17, 16
Podłogi pokoi: mozaika drewniana
Ściany pokoi: płyty kartonowo gipsowe
Wystawa okien - pokoje : Pd-Zach
Typ kuchni: aneks kuchenny - połączony z salonem
Rodzaj kuchni: aneks kuchenny
Podłoga kuchni: mozaika drewniana
Wystawa okien - kuchnia: Pd
Typ łazienki: razem z wc
Liczba łazienek: 1
Powierzchnia łazienki [m2]: 6
Glazura łazienki: nowego typu
Podłoga łazienki: gres
Wyposażenie łazienki: WC, umywalka, pralka, natrysk, lustro
Ściany łazienki: glazura, drewniane
Wystawa okien - łazienka : Zach
::LINK DO STRONY
https://sadurscy.pl/offer/BS2-MS-259967
Zobacz Wirtualny Spacer: https://panoramy.galactica.pl/virgo/265560
::KONTAKT DO AGENTA
Marek Popiela
+48 518-967-677
Zapytaj o ofertę
::DANE BIURA
Oddział BS2, Rynek Pierwotny
Przewóz 47
30-081 Kraków
12 630-90-45
--------------------------
::GRATIS | Nasza prowizja zawiera: koszt przedwstępnej notarialnej umowy sprzedaży nieruchomości z rynku wtórnego.
::GWARANCJA | Gwarancja zwrotu zadatku. Więcej informacji na sadurscy.pl/zwrot-zadatku/