Na sprzedaż: nowe mieszkanie 43 m² ze 104 m 2 poddaszem do adaptacji - Kalwaria Zebrzydowska
Nowoczesne 2-pokojowe mieszkanie z dużym balkonem i możliwością aranżacji dodatkowej powierzchni - 104 m² poddasza!
Prezentujemy Państwu funkcjonalne mieszkanie o pow. 43 m² , położone w Kalwarii Zebrzydowskiej , zaledwie 500 m od Rynku , w nowo wyremontowanym budynku z cegły. To wyjątkowa oferta dla osób szukających komfortowego miejsca do życia lub inwestorów szukających lokalu z potencjałem rozbudowy.
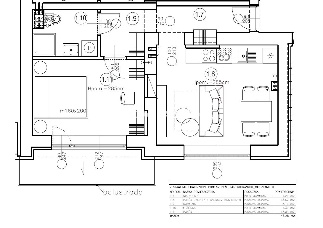
Rozkład mieszkania (43 m²):
Salon z aneksem kuchennym - 18,6 m²
Sypialnia - 13 m² z dużym balkonem
Łazienka - 4,3 m²
Przedpokój - 7,3 m²
Dodatkowo:
Do mieszkania przynależy poddasze o pow. 104 m 2 , z możliwością wydzielenia mieszkania o pow. 39 m 2 (pow podłóg 57 m 2) - projekt zabudowy załączony w ofercie.
Wszystkie media doprowadzone. Alternatywnie na poddaszu można wydzielić dwie kawalarki.
Budynek:
Lata 80-te, cegła pełna
Kompletny remont w latach 2023-2024 :
Skute stare warstwy ścian wewnętrznych i zewnętrznych
Ocieplenie 15 cm styropianem
Tynk silikonowo-silikatowy KREISEL
Nowe dachy, rynny i parapety zewnętrzne (aluminiowe)
Wymiana instalacji wod-kan, elektrycznej i gazowej
Okna 3-szybowe OKNOPLAST , parapety wewnętrzne z konglomeratu kwarcowego
Podłogi : panele drewniane w pokojach, ceramika w łazience, przedpokoju i kuchni
Ogrzewanie i media:
Ogrzewanie gazowe - piec dwufunkcyjny z zamkniętą komorą spalania
Wszystkie media miejskie
Możliwość podłączenia internetu światłowodowego
Dodatki i udogodnienia:
2 przypisane miejsca parkingowe
Dodatkowy parking dla gości
Strefa zielona dla mieszkańców
Cicha okolica, a jednocześnie blisko centrum miasta
Lokalizacja:
500 m do kalwaryjskiego Rynku
W bliskim sąsiedztwie: sklepy, szkoły, przedszkola, kościół, przystanki komunikacji
Idealne dla:
par lub singli szukających nowoczesnego lokum
inwestorów - możliwość adaptacji poddasza na dwa niezależne mieszkania
osób poszukujących mieszkania w dobrze skomunikowanej, spokojnej lokalizacji
Stan prawny: pełna własność
Biuro pomaga bezpiecznie przeprowadzić transakcję.
Zapraszam do kontaktu oraz na bezpłatną prezentację nieruchomości.
Adam Malik
511 272 088
Zapytaj o ofertę
::DODATKOWE INFORMACJE
Rodzaj budynku: apartamentowiec
Dozór budynku: możliwy
Głośność: umiarkowanie ciche
Plac zabaw: TAK
Widok: na inne budynki
Gaz: jest
Woda: tak - miejska
Dojazd: asfalt
Dojazd - opis: droga alfaltowa
Otoczenie: centrum miasta
Ogrzewanie: piec dwufunkcyjny
Internet: TAK
Nadaje się na biuro: TAK
Komunikacja publ.: kolej, bus, autobus
Odległość do komunikacji publicznej [m]: 650
Odl. do sklepu [m]: 100
Odl. do szkoły [m]: 800
Odl. do przedszkola [m]: 650
Rozkład: rozkładowe
Usytuowanie: jednostronne
Drzwi antywłamaniowe: TAK
Opłaty w czynszu: zaliczka na fundusz remontowy, wywóz śmieci, sprzątanie, Części wspólne
Opłaty wg liczników: woda, prąd, gaz
Rodzaj mieszkania: jednopoziomowe
Stan lokalu: bardzo dobry
Okna: PCV 3 szyby, ciepły montaż
Instalacje: nowe
Balkon: duży
Liczba balkonów: 1
Powierzchnia balkonów/tarasów [m2]: 6
Powierzchnia użytkowa [m2]: 43,2000
Rok budowy: 2024
Liczba pokoi: 2
Wysokość pomieszczeń [m]: 2,8000
Liczba sypialni: 1
Powierzchnia pokoi [m2]: 31,65
Podłogi pokoi: deska barlinecka
Ściany pokoi: płyty kartonowo gipsowe, gładzie gipsowe
Wyposażenie pokoi: umeblowane, szafa typu Komandor, sofa, meble - nowego typu, łóżko 2 os., krzesła
Wystawa okien - pokoje : Pn-Zach
Typ kuchni: aneks kuchenny - połączony z jadalnią
Rodzaj kuchni: aneks kuchenny połączony z jadalnią i salonem
Powierzchnia kuchni [m2]: 6
Podłoga kuchni: terakota
Wyposażenie kuchni: lodówko-zamrażarka,, meble kuchenne na wymiar, sprzęt AGD, płyta ceramiczna, okap kuchenny
Wystawa okien - kuchnia: Pd
Liczba łazienek: 1
Powierzchnia łazienki [m2]: 4,3
Glazura łazienki: nowego typu
Podłoga łazienki: terakota
Wyposażenie łazienki: WC, umywalka, pralka, lustro, kabina prysznicowa
Ściany łazienki: gładzie gipsowe, glazura
Liczba przedpokoi: 2
Powierzchnia przedpokoi [m2]: 7,3
Podłoga przedpokoi: deska barlinecka
Ściany przedpokoi: gładzie gipsowe
::LINK DO STRONY
https://sadurscy.pl/offer/BS5-MS-311052
::KONTAKT DO AGENTA
Adam Malik
+48 511-272-088
Zapytaj o ofertę
::DANE BIURA
Oddział BS5, Nowa Huta
Bracia Sadurscy Dariusz Sadurski
Os. Kazimierzowskie 36
31-844 Kraków
12 265 10 29
Pośrednik odpowiedzialny zawodowo za wykonanie umowy pośrednictwa: Adam Malik (licencja nr: 28021)