2 pokoje o pow. 45 m 2 blisko centrum i krakowskich uczelni
Oferujemy na sprzedaż lokal/mieszkanie dwupokojowe o powierzchni 45 m², usytuowane w zadbanej kamienicy przy ul. Fryderyka Chopina - w bliskim sąsiedztwie krakowskich wyższych uczelni (AGH, UJ, UR), miasteczka studenckiego i ścisłego centrum Krakowa.
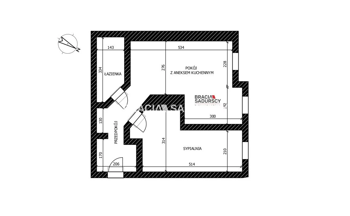
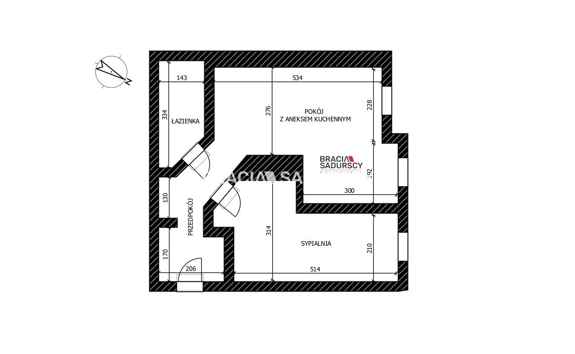
ROZKŁAD LOKALU:
Lokal składa się z przestronnego pokoju z aneksem kuchennym (20 m²), wygodnej sypialni (14 m 2 ), funkcjonalnego przedpokoju (6,6 m²) z szafą w zabudowie oraz łazienki (4,4 m²).
Lokal znajduje się na poziomie: -1 (w suterenie)
OPIS STANU TECHNICZNEGO I WYPOSAŻENIE:
- gotowe do zamieszkania / prowadzenia działalności
- umeblowane (wyposażenie widoczne na zdjęciach wchodzi w skład oferty)
- wyposażone w sprzęt AGD (nowy piekarnik i płyta indukcyjna, lodówka, pralka)
- posiada rolety antywłamaniowe i moskitiery
- c.w.u. - terma elektryczna
- ogrzewanie e lektryczne indukcyjne z wodną instalacją grzewczą (podłogową i kaloryferami) - Taryfa G12 (prąd tańszy w nocy i wybrane godziny dnia)
[Ogrzewanie indukcyjne znajduje zastosowanie w nowoczesnych systemach centralnego ogrzewania budynków mieszkalnych, instalacjach grzewczych wykorzystujących wodę jako medium.
Ogrzewanie to jest bardzo efektywne - ciepło powstaje bezpośrednio w ogrzewanym medium i minimalizuje straty energii, a urządzenia indukcyjne szybko reagują na zmiany ustawień, pozwalając na precyzyjną regulację temperatury pomieszczeń.]
STAN PRAWNY:
odrębna własność z księgą wieczystą, bez obciążeń
OPŁATY:
- czynsz: 300 zł/m-c
- podatek od nieruchomości: 530 zł/rok
- prąd: wg zużycia ( Taryfa G12 )
INNE:
- w księdze wieczystej widnieje status lokalu niemieszkalnego
Cena do negocjacji!
Zapraszam na prezentację nieruchomości (także zdalną /on-line/)
Biuro pomaga bezpiecznie przeprowadzić transakcję.
Szczegóły oferty:
798 352 683
Zapytaj o ofertę
::DODATKOWE INFORMACJE
Rodzaj budynku: kamienica
Dozór budynku: brak
Głośność: ciche
Widok: na podwórko
Gaz: brak
Woda: ciepła - terma
Dojazd: asfalt
Otoczenie: centrum miasta
Ogrzewanie: elektryczne
Nadaje się na biuro: TAK
Komunikacja publ.: MPK
Winda: NIE
Rozkład: jednostronne
Usytuowanie: jednostronne
Możliwość parkowania: płatne
Położenie lokalu: spokojna ulica
Wejście: w oficynie
Liczba wejść: 1
Podłogi: gres
Opłaty w czynszu: wywóz śmieci, woda/ryczałt na wodę, fundusz remontowy, Części wspólne, administracja
Opłaty wg liczników: woda, prąd
Rodzaj mieszkania: jednopoziomowe
Piwnica [m2]: 6
Piwnica: TAK
Stan lokalu: do wprowadzenia
Okna: pcv z roletami
Instalacje: dobre
Powierzchnia użytkowa [m2]: 45
Rok budowy: 1936
Rodzaj lokalu: jednopoziomowy
Liczba pokoi: 2
Wysokość pomieszczeń [m]: 2,4300
Liczba sypialni: 1
Powierzchnia pokoi [m2]: 12, 14
Podłogi pokoi: gres
Ściany pokoi: inne
Wyposażenie pokoi: umeblowane
Wystawa okien - pokoje : Pn-Zach
Typ kuchni: aneks kuchenny
Rodzaj kuchni: aneks kuchenny
Powierzchnia kuchni [m2]: 8
Podłoga kuchni: gres
Wyposażenie kuchni: stała zabudowa, sprzęt AGD
Typ łazienki: razem z wc
Liczba łazienek: 1
Powierzchnia łazienki [m2]: 4,4
Glazura łazienki: nowego typu
Podłoga łazienki: gres
Wyposażenie łazienki: WC, umywalka, kabina prysznicowa
Ściany łazienki: glazura
Liczba przedpokoi: 1
Powierzchnia przedpokoi [m2]: 6,6
Podłoga przedpokoi: gres
Ściany przedpokoi: inne
Wyposażenie przedpokoi: szafa zabudowana, domofon
::LINK DO STRONY
https://sadurscy.pl/offer/BS5-MS-311765
Zobacz Wirtualny Spacer: https://sb360.online/t21n4q
::KONTAKT DO AGENTA
Marek Wawrzeń
+48 798-352-683
Zapytaj o ofertę
::DANE BIURA
Oddział BS5, Nowa Huta
Bracia Sadurscy Dariusz Sadurski
Os. Kazimierzowskie 36
31-844 Kraków
12 265 10 29
Pośrednik odpowiedzialny zawodowo za wykonanie umowy pośrednictwa: Marek Wawrzeń (licencja nr: 26458)