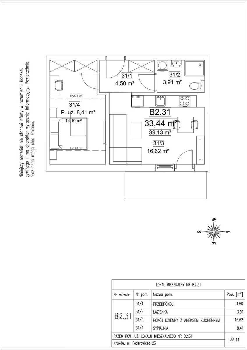
Mamy przyjemność zaprezentować Państwu gotowe, nowoczesne mieszkanie dwupokojowe e o powierzchni całkowitej 39 m2 (użytkowa 33 m2) , zlokalizowane w sercu jednej z najdynamiczniej rozwijających się dzielnic Krakowa - Ruczaju, przy ul. Federowicza.
Mieszkanie znajduje się w nowej, kameralnej inwestycji osiedle Versus.
Mieszkanie wyposażone w ogrzewanie podłogowe, klimatyzację, filtry antysmogowe.
Mieszkanie składa się z jasnego salonu z aneksem kuchennym, sypialni, łazienki oraz przedpokoju.
Inwestycja wyróżnia się doskonałą lokalizacją - w pobliżu znajduje się pełna infrastruktura, w tym sklepy, przedszkola, szkoły, a także tereny rekreacyjne, idealne dla osób ceniących aktywny styl życia. Dodatkowo, dzięki dobrze rozwiniętej sieci komunikacyjnej, dojazd do centrum miasta jest szybki i wygodny.
To doskonała propozycja dla osób szukających komfortowego mieszkania w spokojnej okolicy, z jednoczesnym dostępem do wszelkich udogodnień miejskiego życia.
Zapraszam do kontaktu!
:: Oferta wysłana z programu mediaRent (media-rent.eu) ::