2-pokojowe mieszkanie zlokalizowane na Białołęce przy ul. Dionizosa
BUDYNEK/OSIEDLE
Mieszkanie znajduje się na 3 piętrze w 8 piętrowym budynku.
Rok budowy: 2025
NIERUCHOMOŚĆ
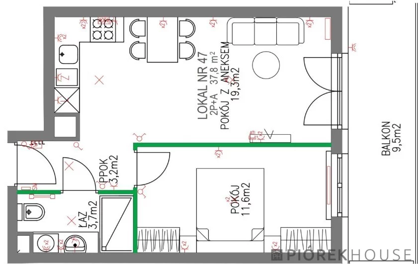
Mieszkanie o powierzchni 37,80m2 składa się z:
-przedpokój (3.2m2),
-łazienka (3.7m2),
-sypialnia (11.6m2),
-salon z kuchnią (19.3m2).
Powierzchnia dodatkowa:
-balkon (9.5m2) na szerokość całego mieszkania.
Sprzedaż mieszkania i podpisanie aktu notarialnego będzie możliwe w czwartym kwartale tego roku, po uzyskaniu przez dewelopera pozwolenia na użytkowanie budynku, wydaniu kluczy do mieszkania i przeniesieniu własności.
Do mieszkania przynależy:
-miejsce postojowe w garażu podziemnym (platforma), dodatkowo płatne 35 000 zł.
Ekspozycja okien- południowy-wschód.
OKOLICA
Mieszkanie położone w dobrze skomunikowanej części miasta, z łatwym dostępem do pełnej infrastruktury oraz licznych udogodnień. W bezpośrednim sąsiedztwie znajdują się sklepy, przedszkole publiczne oraz zielony park leśny – idealny na codzienne spacery i relaks. W niedalekiej odległości dostępne są również większe punkty handlowe, takie jak Biedronka i Selgros. Atutem lokalizacji jest świetna komunikacja – z pobliskiej pętli tramwajowej można bezpośrednio dojechać do kluczowych punktów Warszawy, w tym do stacji metra i centrum miasta. Lokalizacja łączy komfort, wygodę i dostęp do zieleni, tworząc idealne warunki do życia.
Zapraszam na prezentację nieruchomości.
W razie zainteresowania prosimy o kontakt:
730 173 007, 530 835 079
Powyższa oferta ma charakter informacyjny i nie stanowi oferty handlowej w rozumieniu art. 66 §1 Kodeksu Cywilnego.
Podana ulica nieruchomości przy ogłoszeniu ma na celu wskazania przybliżonej lokalizacji z dużą dokładnością.
Bezpłatnie pomagamy znaleźć najkorzystniejszą na rynku ofertę kredytową.
Na życzenie w ramach prezentacji nieruchomości możliwość przeprowadzenia przez firmę budowlaną oceny stanu mieszkania i wycenę remontu.
Oferta wysłana z programu dla biur nieruchomości ASARI CRM (asaricrm.com)