Mieszkanie znajduje się na 1 piętrze i składa się z 2 pokoi, kuchni i łazienki. Do mieszkania przynależy piwnica. Powierzchnia mieszkania wynosi 48m2. Mieszkanie posiada założoną księgę wieczystą. Nieumeblowane, do remontu i własnej aranżacji. Okna drewniane. Na podłogach w pokojach parkiet. W kuchni i na przedpokoju linoleum. Na ścianach tapety.
Mieszkanie spółdzielcze własnościowe z księgą wieczystą.
Nieruchomość zlokalizowana w ścisłym centrum miasta.
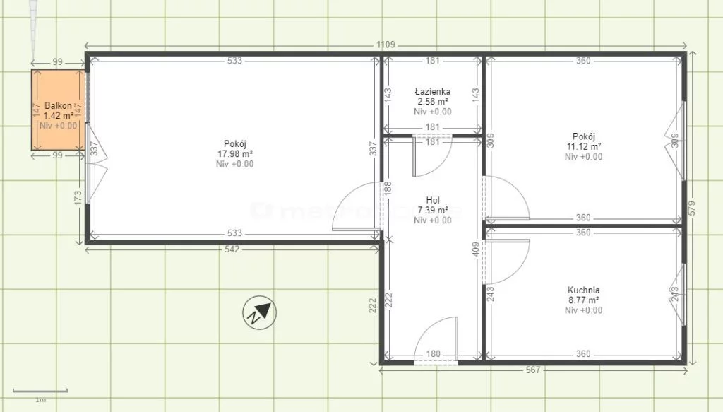
Pomieszczenia:
• Pokój 17,98 m2
• Pokój 11,12 m2
• Łazienka 2,58 m2
• Przedpokój 7,39 m2
• Kuchnia 8,77 m2
W razie pytań jestem do Państwa dyspozycji.
Zapraszam serdecznie na prezentację.
Czy wiesz, że możemy przygotować dla Ciebie prezentację on-line nieruchomości? Skontaktuj się z naszym Agentem i zapytaj o szczegóły.
Pomimo, iż Doradcy Metrohouse przykładają szczególną staranność do rzetelnego prezentowania informacji o nieruchomości, nie zawsze jest możliwa weryfikacja wszystkich danych przekazanych od osób trzecich. Niniejsza prezentacja oferty nie jest ofertą w rozumieniu Kodeksu Cywilnego i ma charakter wyłącznie informacyjny.