NOWA INWESTYCJA DEWELOPERSKA W DOSKONAŁEJ LOKALIZACJI - OSIEDLE RUCZAJ
MIESZKANIA GOTOWE DO UŻYTKOWANIA ( KLUCZE)
Kameralne osiedle 3 budynków mieszkalnych z niską trzypiętrową zabudową.
Każde mieszkania posiada balkon lub ogródek
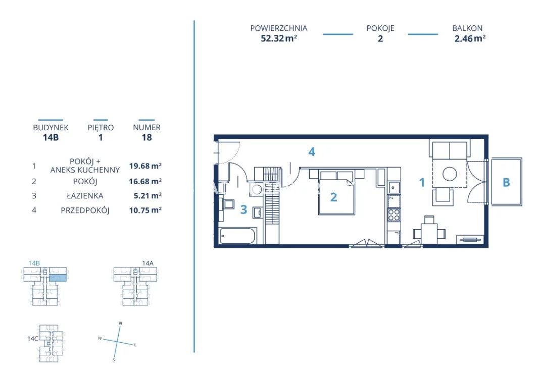
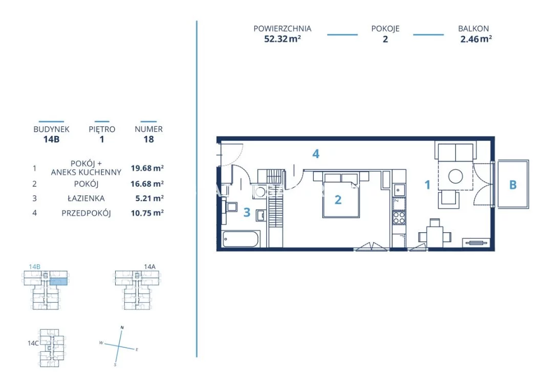
Metraże od 32m2 - 70m2 (-1,-2,-3, pokojowe)
Miejsca postojowe zewnętrze oraz w garażu podziemnym
Inwestycja budowana w tradycyjnej technologii. Mieszkania sprzedawane w stanie deweloperskim (tynki gipsowe, wylewki, instalacje).
Ogrzewanie oraz ciepła woda z MPEC
Lokalizacja osiedla zapewnia w pełni rozbudowaną infrastrukturę, w tym sklepy spożywcze, supermarkety, restauracje, kawiarnie, apteki, banki, poczta, siłownie placówki medyczne, szkoły, przedszkola oraz liczne tereny rekreacyjne.
2,5 km od Kampusu Uniwersytetu Jagiellońskiego
Komunikacja:
Pętla tramwajowa i autobusowa (5 minut spacerem)
3 km od autostrady
13km od lotniska
Zapraszam do kontaktu po więcej szczegółów,
Marek Popiela
tel; +4 518 967 677
mail;
Zapytaj o ofertę
::DODATKOWE INFORMACJE
Rodzaj budynku: blok
Dozór budynku: brak
Głośność: średnio głośne
Widok: na inne budynki
Gaz: brak
Woda: jest
Dojazd: ASFALTOWA
Otoczenie: działki zabudowane
Ogrzewanie: C.O. miejskie
Linie telefoniczne: TAK
Internet: TAK
Komunikacja publ.: tramwaj, tak, autobus
Winda: TAK
Liczba wind: 1
Rozkład: rozkładowe
Usytuowanie: jednostronne
Drzwi antywłamaniowe: TAK
Opłaty w czynszu: -
Rodzaj mieszkania: jednopoziomowe
Garaż: Tak
Stan lokalu: deweloperski
Okna: PCV
Instalacje: nowe
Balkon: jest
Liczba balkonów: 1
Rok budowy: 2024
Liczba pokoi: 2
Liczba sypialni: 1
Podłogi pokoi: wylewka betonowa
Ściany pokoi: zwykłe
Typ kuchni: aneks kuchenny - połączony z salonem
Rodzaj kuchni: otwarta na salon
Podłoga kuchni: wylewka betonowa
Typ łazienki: razem z wc
Liczba łazienek: 1
Glazura łazienki: bez glazury
Podłoga łazienki: wylewka betonowa
Ściany łazienki: zwykłe
Liczba przedpokoi: 1
Podłoga przedpokoi: wylewka betonowa
Ściany przedpokoi: zwykłe
::LINK DO STRONY
https://sadurscy.pl/offer/BS2-MS-305007
::KONTAKT DO AGENTA
Marek Popiela
+48 518-967-677
Zapytaj o ofertę
::DANE BIURA
Oddział BS2, Rynek Pierwotny
Przewóz 47
30-081 Kraków
12 630-90-45
--------------------------
::GRATIS | Nasza prowizja zawiera: koszt przedwstępnej notarialnej umowy sprzedaży nieruchomości z rynku wtórnego.
::GWARANCJA | Gwarancja zwrotu zadatku. Więcej informacji na sadurscy.pl/zwrot-zadatku/
Oferta wysłana z systemu Galactica Virgo