NOWA INWESTYCJA DEWELOPERSKA
Kraków- Bieżanów
Prezentowana kameralna inwestycja składa się z dwóch czteropiętrowych budynków mieszkalnych.
Dostępne mieszkania 2, 3 oraz 4 pokojowe w metrażach od 32m2 do 72m2
DOSKONAŁA KOMUNIKACJA Z CENTRUM MIASTA:
TRAMWAJ: 250m
AUTOBUS : 134m
STACJA KOLEJOWA :800m
WĘZEŁ AUTOSTRADY : 1,5km
DODATKOWE INFORMACJE :
- miejsca postojowe w garażu podziemnym
- rowerowania i wózkownia
- całodobowy monitoring osiedla
- woda ciepła oraz ogrzewanie z sieci miejskiej MPEC
-wysoki standard inwestycji :m.in. drzwi wejściowe antywłamaniowe, windy cichobieżne.
- niskie koszty utrzymania
-lokale usługowe w części parterowej
- termin realizacji : II kw.2025r.
PO WIĘCEJ INFORMACJI ZAPRASZAM DO KONTAKTU
Barbara Nazarewicz
Tel: +48 515-634-552
Zapytaj o ofertę
::DODATKOWE INFORMACJE
Rodzaj budynku: blok
Dozór budynku: możliwy
Głośność: ciche
Widok: na osiedle
Gaz: brak
Woda: jest
Dojazd: asfalt
Otoczenie: zabudowa mieszana
Ogrzewanie: C.O. miejskie
Internet: TAK
Komunikacja publ.: kolej, tramwaj, autobus
Odległość do komunikacji publicznej [m]: 200
Odl. do sklepu [m]: 100
Odl. do szkoły [m]: 405
Odl. do przedszkola [m]: 400
Winda: TAK
Liczba wind: 1
Rozkład: rozkładowe
Usytuowanie: dwustronne
Drzwi antywłamaniowe: TAK
Przystosowania dla niepełnosprawnych: TAK
Opłaty w czynszu: -
Rodzaj mieszkania: jednopoziomowe
Garaż: garaż podziemny
Stan lokalu: deweloperski
Okna: PCV
Instalacje: nowe
Balkon: jest
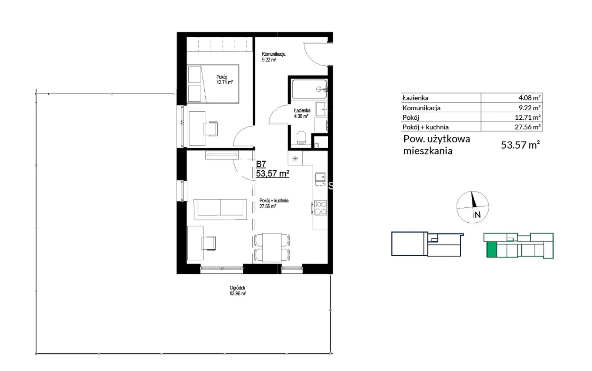
Powierzchnia ogródka [m2]: 83,9600
Rok budowy: 2025
Liczba pokoi: 2
Wysokość pomieszczeń [m]: 2,6000
Liczba sypialni: 1
Podłogi pokoi: wylewka
Ściany pokoi: zwykłe
Typ kuchni: aneks kuchenny - połączony z salonem
Rodzaj kuchni: otwarta na salon
Podłoga kuchni: wylewka
Typ łazienki: razem z wc
Liczba łazienek: 1
Glazura łazienki: bez glazury
Podłoga łazienki: wylewka
Ściany łazienki: zwykłe
Liczba przedpokoi: 1
Podłoga przedpokoi: wylewka
Ściany przedpokoi: zwykłe
::LINK DO STRONY
https://sadurscy.pl/offer/BS2-MS-300209
::KONTAKT DO AGENTA
Barbara Nazarewicz
+48 515-634-552
Zapytaj o ofertę
::DANE BIURA
Oddział BS2, Rynek Pierwotny
Przewóz 47
30-081 Kraków
12 630-90-45
--------------------------
::GRATIS | Nasza prowizja zawiera: koszt przedwstępnej notarialnej umowy sprzedaży nieruchomości z rynku wtórnego.
::GWARANCJA | Gwarancja zwrotu zadatku. Więcej informacji na sadurscy.pl/zwrot-zadatku/
Oferta wysłana z systemu Galactica Virgo