Zapraszamy do zapoznania się z ofertą sprzedaży 2-POKOJOWEGO MIESZKANIA o powierzchni 40,79 m² z balkonem o powierzchni 6,30 m² z PIĘKNYM WIDOKIEM na szczyt Czarnej Góry.
Mieszkanie w CZARNA GÓRA RESORT to dobra inwestycja, która może przynieść stały dochód. Ośrodek jest popularny wśród turystów, zarówno z Polski, jak i z zagranicy. Sezon narciarski trwa od grudnia do marca, a w sezonie letnim można korzystać z tras rowerowych i szlaków turystycznych.
Obecnie apartament jest wynajmowany na doby (najem krótkoterminowy) przez Spółdzielnię Właścicieli Apartamentów Czarna Góra. Spółdzielnia zajmuje się wszystkim, od sprzątania i obsługi gości po marketing i rezerwacje. Dzięki temu właściciel nie musi się angażować w wynajem, a apartament przynosi mu stały dochód.
Na tym terenie działają również inne firmy oferujące usługi zarządzania wynajmem krótkoterminowym.
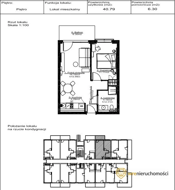
APARTAMENT składa się z:
- Przedpokój
- Łazienka
- Sypialnia
- Pokój dzienny z aneksem kuchennym
- Balkon
DODATKOWE INFORMACJE:
- Piętro: 1 z 4
- Budynek z windą
- Miejsce postojowe zewnętrzne w cenie
- Czynsz administracyjny 646 zł
- Mieszkanie sprzedawane z pełnym wyposażeniem jak na zdjęciach
- Dla mieszkańców do dyspozycji w częściach wspólnych: salka konferencyjna, sauna, bania, przechowalnia sprzętu narciarskiego
- Możliwość skorzystania z usług firmy zarządzającej, która zajmie się najmem apartamentu i obsługą Gości
LOKALIZACJA:
- Biała Woda - Czarna Góra Resort ul. Na skarpie - budynek BORMIO
OTOCZENIE:
- 3 szczyty górskie: Śnieżnik 1424 m.n.p.m, Żmijowiec 1153 m.n.p.m, Czarna Góra 1205 m.n.p.m.
- Wypożyczania sprzętu narciarskiego, serwis i przechowalnia
- Koleje i wyciągi
- Restauracje i bary
- Basen
- Strefa SPA
- Strefa gier i animacje dla dzieci
- Alpine Coaster
- Szkoła narciarska
- Morsowisko
- Lodowisko
- Trasy biegowe
- Punkt widokowy
Sprzedaż objęta podatkiem PCC 2%
Krzysztof Mucha
t.: 577 100 628
WRE Nieruchomości
ul. Piłsudskiego 49-51, Wrocław
Uwaga! Prezentowane w serwisie oferty nie stanowią oferty handlowej w rozumieniu art. 66 Kodeksu Cywilnego i mogą być nieaktualne.
Nota prawna
Opis oferty zawarty na stronie internetowej sporządzany jest na podstawie oględzin nieruchomości oraz informacji uzyskanych od właściciela, może podlegać aktualizacji i nie stanowi oferty określonej w art. 66 i następnych K.C.