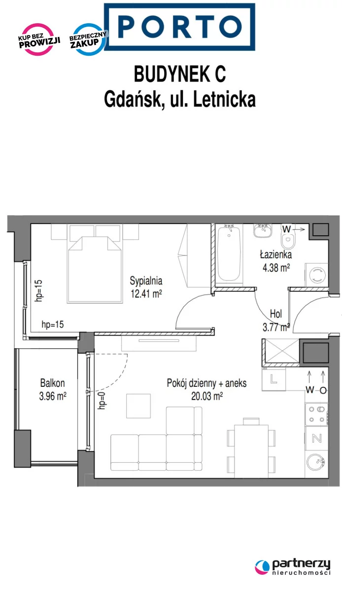
MIESZKANIE
Mieszkanie o powierzchni 40,59 m² zlokalizowane jest na 4. piętrze w 5-piętrowym budynku wybudowanym przez dewelopera Robyg. Składa się z dwóch pokoi, co czyni je idealnym wyborem dla singla, pary lub jako inwestycja pod wynajem. Mieszkanie jest w stanie deweloperskim, co daje nowemu właścicielowi możliwość swobodnej aranżacji i wykończenia wnętrza według własnego gustu i potrzeb. Duże okna zapewniają doskonałe doświetlenie pomieszczeń. OKNA NA ZACHÓD - NIE MA BUDYNKU NAPRZECIWKO.
LOKALIZACJA
Lokalizacja w dzielnicy Gdańsk Letnica łączy w sobie bliskość do centrum miasta z łatwym dostępem do terenów rekreacyjnych i morza. Dzielnica dynamicznie się rozwija, oferując coraz lepszą infrastrukturę, w tym sklepy, punkty usługowe i komunikację miejską. Bliskość do Trasy Słowackiego i tunelu pod Martwą Wisłą zapewnia szybki dojazd do innych dzielnic Gdańska, Gdyni i Sopotu oraz do lotniska. Dzielnica charakteryzuje się nowoczesną zabudową i rosnącym potencjałem inwestycyjnym.
BUDYNEK
Nowy budynek dewelopera Robyg wyróżnia się nowoczesną architekturą i wysoką jakością wykonania. Pięciopiętrowa konstrukcja zapewnia kameralną atmosferę. Budynek wyposażony jest w windę, co ułatwia dostęp do mieszkania na 4. piętrze. Teren wokół budynku jest zagospodarowany, z dbałością o zieleń i estetykę, co sprzyja relaksowi i komfortowi mieszkańców. Budynek spełnia najnowsze standardy budownictwa, zapewniając komfort i bezpieczeństwo.
DODATKOWO PŁATNE Miejsce w hali i pomieszczenie gospodarcze 2,13 m2 w cenie łącznej 50 000 zł.
KUP Z NAMI - KORZYSTNIE I BEZPIECZNIE!
- 0% prowizji od Kupującego (dotyczy ofert oznaczonych znaczkiem KUP bez prowizji) i żadnych dodatkowych lub ukrytych kosztów
- gwarantujemy bezpieczny zakup i najlepszą cenę
- oferujemy skuteczną i bezpłatną pomoc w uzyskaniu kredytu
- zapewniamy fachowe doradztwo przy zakupie pod inwestycję