Dwupoziomowe mieszkanie zlokalizowane na Wilanowie przy Al. Rzeczypospolitej
BUDYNEK/OSIEDLE
Mieszkanie znajduje się na 3 piętrze w 3 piętrowym budynku.
Rok budowy: 2014
NIERUCHOMOŚĆ
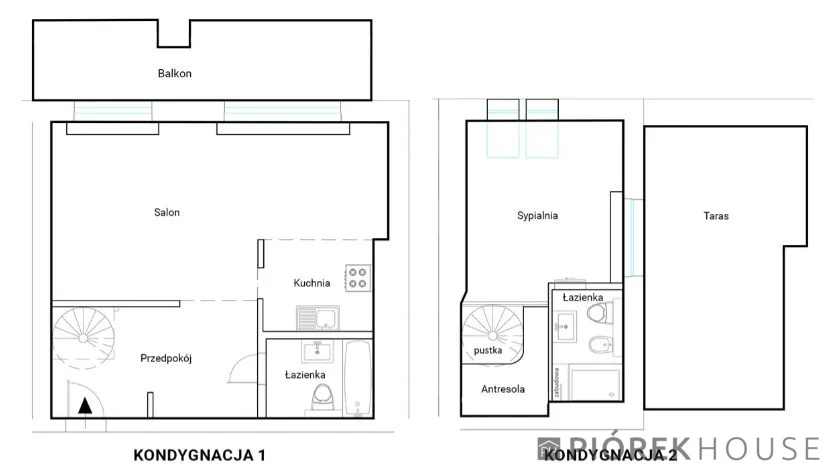
Mieszkanie o powierzchni 68m2 składa się z:
I Kondygnacja:
• Salon z jadalnią: Przestronny, jasny pokój dzienny z wydzieloną częścią jadalnianą, z dużymi oknami zapewniającymi naturalne światło, dużą szafą na wymiar i wyjściem na balkon
• Kuchnia: Nowoczesna, w pełni wyposażona kuchnia z wysokiej jakości sprzętem AGD (płyta indukcyjna, piekarnik, zmywarka, okap, lodówka). Meble wykonane na zamówienie.
• Łazienka: Komfortowa przestrzeń z wanną, umywalką, toaletą, pralko-suszarką i ogrzewaniem podłogowym.
• Przedpokój: Funkcjonalny hol wejściowy z funkcjonalną, zabudowaną szafą, oferujący dużą ilość miejsca do przechowywania.
• Balkon: Przestronny, profesjonalnie osiatkowany balkon o powierzchni 13m² z doprowadzoną wodą,
II Kondygnacja:
• Sypialnia: Przytulna i przestronna sypialnia z dużym łóżkiem (180cm) i pojemną, wygodną szafą na ubrania oraz dostępem do łazienki.
• Łazienka: Nowoczesna łazienka z prysznicem, umywalką i toaletą, bidetem, ogrzewaniem podłogowym i podłączeniem pod głośnik.
• Antresola: Praktyczna przestrzeń z głębokim biurkiem z drewna na wymiar, wykorzystywana jako domowe biuro oraz do gamingu.
• Taras: Duży, zagospodarowany i profesjonalnie osiatkowany taras na ostatnim piętrze budynku, ze ścianą porośniętą bluszczem oraz dostępem do wody, o powierzchni 21m².
Czynsz administracyjny wynosi około 1200 zł.
Mieszkanie własnościowe.
Do mieszkania przynależy:
- miejsce postojowe w garażu podziemnym, dodatkowo płatne 50 000zł.
Ekspozycja okien- północny-wschód, północny-zachód. Okna wychodzą od wewnętrznej strony osiedla.
OKOLICA
W najbliższej okolicy znajdują się liczne sklepy spożywcze oraz punkt komunikacji miejskiej – przystanek tramwajowy oddalony jest zaledwie o kilka minut spacerem. To idealne miejsce dla osób ceniących miejski styl życia, wygodę i szybki dostęp do codziennych udogodnień.
Zapraszam na prezentację nieruchomości.
W razie zainteresowania prosimy o kontakt:
730 173 007, 530 835 079
Powyższa oferta ma charakter informacyjny i nie stanowi oferty handlowej w rozumieniu art. 66 §1 Kodeksu Cywilnego.
Podana ulica nieruchomości przy ogłoszeniu ma na celu wskazania przybliżonej lokalizacji z dużą dokładnością.
Bezpłatnie pomagamy znaleźć najkorzystniejszą na rynku ofertę kredytową.
Na życzenie w ramach prezentacji nieruchomości możliwość przeprowadzenia przez firmę budowlaną oceny stanu mieszkania i wycenę remontu.
Oferta wysłana z programu dla biur nieruchomości ASARI CRM (asaricrm.com)