GÓRKA NARODOWA - NOWOCZESNE OSIEDLE MIESZKANIOWE, SPOKOJNA OKOLICA - V ETAP.
Prezentowana oferta zlokalizowana jest w północnym rejonie Krakowa, w zielonej i przestrzennej dzielnicy Prądnik Biały.
Inwestycja składa się z trzech nowoczesnych pięciopiętrowych budynków. W ofercie 183 starannie zaprojektowane mieszkania o powierzchni od 31 do 86 m2. Do wyboru 1,-2-,3,-4,-pokojowe.
Mieszkania parterowe będą posiadały ogrody oraz zostaną wyposażone w elektryczne rolety. Na ostatnich piętrach mieszkania z tarasami.
W podziemnej części budynków znajdować się będzie hala garażowa z miejscami postojowymi, komórkami lokatorskimi oraz miejscami z dedykacją do ładowania samochodów.
Budynki wykonywane z wysokiej jakości materiałów budowlanych z dbałością o każdy szczegół. Inwestycja zostanie ogrodzona w częściach wspólnych oraz monitorowana. Dodatkowo na wspólnym terenie zaprojektowano duży plac zabaw z boiskiem do koszykówki oraz ścianką wspinaczkową.
Idealne miejsce dla aktywnych - z dala od miejskiego zgiełku, a jednocześnie bliskość Parku Leśnego Witkowice ze szlakami rowerowymi, pieszymi i turystycznymi. Wokół pełna infrastruktura handlowo - usługowa (żłobki, przedszkola, sklepy, firmy usługowe). Odległość 4 km od centrum miasta. Idealna oferta dla rodzin z dziećmi.
Mieszkania gotowe do odbioru
::DODATKOWE INFORMACJE
Kategoria oferty: Pewny Partner, Mieszkania dla rodzin z dziećmi
Rodzaj budynku: nowe budownictwo
Dozór budynku: monitoring
Głośność: ciche
Plac zabaw: TAK
Widok: na inne budynki
Gaz: brak
Woda: jest
Dojazd: asfalt
Otoczenie: działki zabudowane
Ogrzewanie: miejskie
Linie telefoniczne: TAK
Telewizja kablowa: TAK
Komunikacja publ.: bus, autobus podmiejski, autobus miejski, autobus
Winda: TAK
Liczba wind: 1
Rozkład: rozkładowe
Usytuowanie: jednostronne
Rolety antywłamaniowe: TAK
Teren ogrodzony: TAK
Opłaty w czynszu: -
Rodzaj mieszkania: jednopoziomowe
Garaż: możliwość kupna
Stan lokalu: deweloperski
Okna: PCV
Instalacje: nowe
Balkon: brak
Rok budowy: 2022
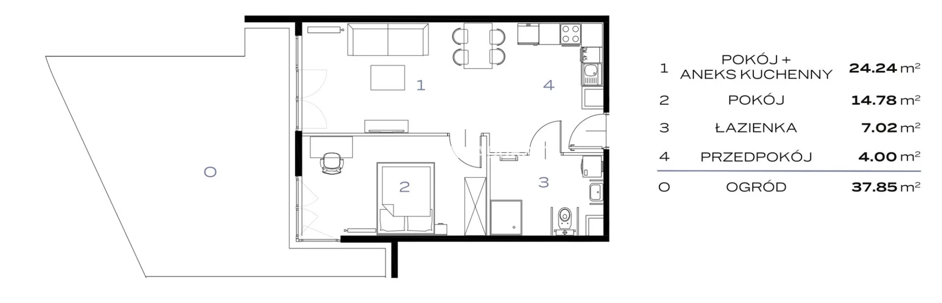
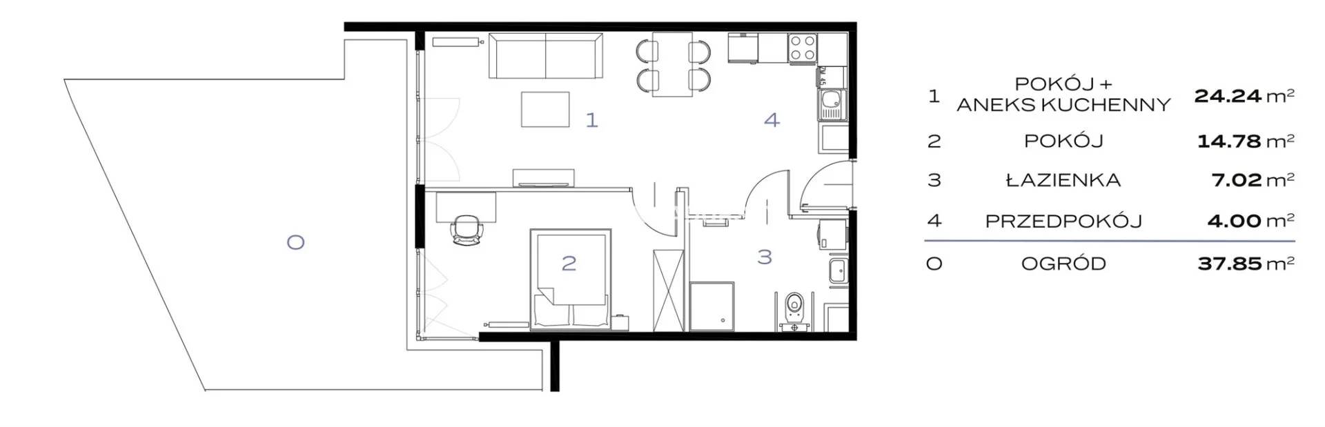
Liczba pokoi: 2
Liczba sypialni: 1
Podłogi pokoi: wylewka
Ściany pokoi: zwykłe
Typ kuchni: aneks kuchenny - połączony z salonem
Rodzaj kuchni: otwarta na salon
Podłoga kuchni: wylewka
Typ łazienki: razem z wc
Liczba łazienek: 1
Glazura łazienki: bez glazury
Podłoga łazienki: wylewka
Ściany łazienki: zwykłe
Liczba przedpokoi: 1
Podłoga przedpokoi: wylewka
Ściany przedpokoi: zwykłe
::LINK DO STRONY
https://sadurscy.pl/offer/BS2-MS-296167
::KONTAKT DO AGENTA
Arkadiusz Zemła
+48 518-706-552
Zapytaj o ofertę
::DANE BIURA
Oddział BS2, Rynek Pierwotny
Przewóz 47
30-081 Kraków
12 630-90-45
--------------------------
::GRATIS | Nasza prowizja zawiera: koszt przedwstępnej notarialnej umowy sprzedaży nieruchomości z rynku wtórnego.
::GWARANCJA | Gwarancja zwrotu zadatku. Więcej informacji na sadurscy.pl/zwrot-zadatku/
Oferta wysłana z systemu Galactica Virgo