Do wynajęcia od października mieszkanie 2 pokoje z oddzielną kuchnią ul. Gołężycka, Wrocław, Fabryczna, osiedle Kozanów- 49 m2.
FUNKCJONALNOŚĆ
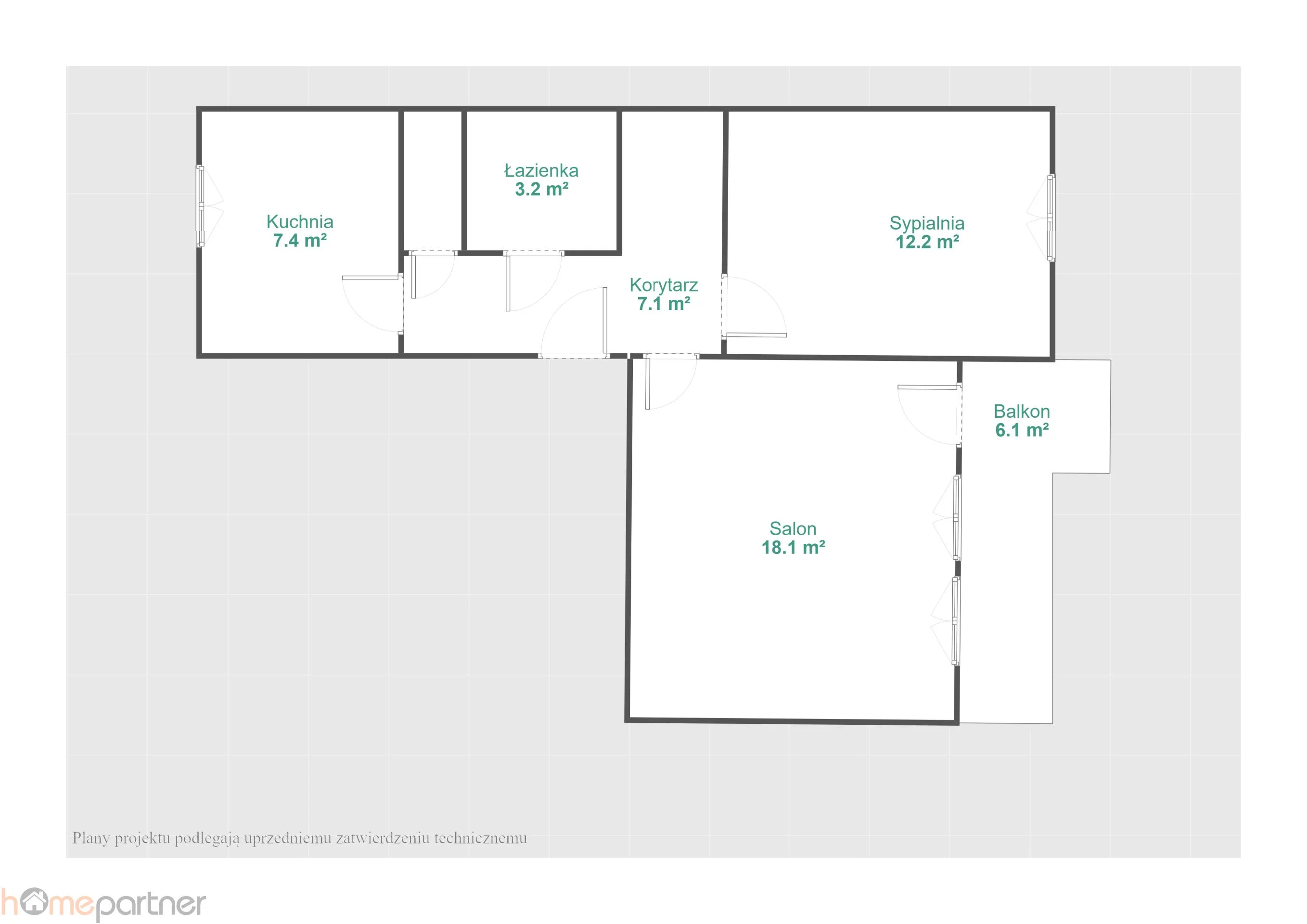
Mieszkanie bardzo przyjemne i zadbane, dwustronne, z dużym balkonem i oddzielną kuchnią.
Układ pomieszczeń, pozwalający na komfortowe mieszkanie dla pary lub znajomych.
Układ pomieszczeń:
- salon
- sypialnia
- kuchnia
- łazienka z wanną
- wc
Z salonu wyjście na spory balkon. W sypialni nowe meble- wbudowana obszerna szafa, biurko oraz rozkładana wersalka.
Oddzielna kuchnia umeblowana i wyposażona- płyta gazowa Siemens, elektryczny piekarnik Siemens duża lodówka Liebherr, zmywarka 40 cm Siemens, pochłaniacz. Meble drewniane i granitowe blaty.
Łazienka z wanną i pralką Bosch na wyposażeniu.
W salonie rozkładana wersalka z pojemnikiem na pościel, meblościanka, stół z 6 krzesłami, telewizor.
Na podłogach mozaika parkietowa, w kuchni i w łazience kafle.
Do użytku wózkownia i rowerownia.
Budynek zadbany, czysta klatka schodowa. Na osiedlu wiele ogólnodostępnych miejsc postojowych. Mieszkanie znajduje się na 4 piętrze, kameralnego 4-pietrowego bloku.
Czynsz najmu: 2200 zł
Opłaty eksploatacyjne ok. 900 zł
Kaucja 3100 zł
BUDYNEK
Budynek z lat 80, klatka zadbana i czysta. Na osiedlu dużo miejsc parkingowych oraz duże odległości między budynkami. Wokół wiele terenów zielonych m.in. Park Zachodni, Grobla Kozanowska. Duże odległości między budynkami, bezpieczna okolica.
LOKALIZACJA I KOMUNIKACJA
Kozanów to osiedle dobrze skomunikowane z centrum miasta oraz ma bliski dostęp do Autostradowej Obwodnicy Wrocławia.
Szybkie i bezpośrednie połączenia komunikacyjne do centrum tramwajami 12 i 18 (20 min). Autobusy 102, 127, 104, 126, 127, 241, 245, C.
Błyskawiczny dojazd do obwodnicy AOW, ok.10 minut. Szeroko rozwinięta infrastruktura i wiele terenów zielonych sprawiają, ze miejsce jest przyjazne młodym, lubiącym aktywnie spędzać wolny czas.
Zalety oferty:
- przystępny czynsz najmu
- osobna kuchnia, dwa niezależne pokoje
- dobrze wyposażona kuchnia
- mieszkanie dwustronne, duży balkon
- dobra komunikacja i infrastruktura w pobliżu
Zapraszam do rozmów i obejrzenia mieszkania www .home-partner.com.pl Tel. +48 889 759 863
Feel free to talk and see the apartment.
For more information please call us +48 889 759 863.
Por favor contáctenos para conocer más sobre la oferta y ver el apartamento. Podemos ayudar con todos los trámites. Para más información por favor llámanos +48 889 759 863.
Treść niniejszego ogłoszenia nie stanowi oferty handlowej w rozumieniu Kodeksu Cywilnego.
Oferta wysłana z programu IMO dla biur nieruchomości