MIESZKANIE 4-POKOJOWE, 2-KONDYGNACYJNE, UL. KUTRZEBY
Rynek pierwotny, bez PCC i prowizji
Możliwość zakupu również przez obcokrajowców
MIESZKANIE GOTOWE DO ODBIORU
W ofercie również mieszkania wykończone!
Possibility of purchase also by foreigners!
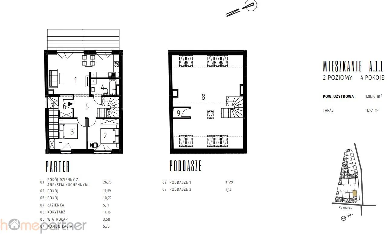
Na sprzedaż mieszkanie 2-kondygnacyjne z bardzo przestrzenną antresolą, idealne dla rodziny o powierzchni 128,10 m2, znajdujące się na 1 piętrze budynku zlokalizowanego przy ul. Kutrzeby.
Mieszkanie składa się z:
POZIOM 0:
- salonu z aneksem kuchennym 26,76 m2
- sypialni 11,59 m2
- sypialni 10,79 m2
- łazienki 5,11 m2
- korytarza 11,16 m2
- wiatrołap 3,58 m2
- przedpokoju 5,75 m2
POZIOM 1
- przestrzenna antresola z możliwością podziału na pokoje oraz z przyłączami pod łazienkę 51,02 m2
- pomieszczenie gospodarcze 2,34 m2
Do mieszkania przynależy taras 17,61 m2
Mieszkanie dwustronne, ekspozycja południowo-wschodnia i północno-zachodnia
LOKALIZACJA
Inwestycja na Ołtaszynie to wyjątkowe osiedle stworzone z myślą o tych, którzy pragną łączyć spokój z dynamicznym życiem miejskim. Osiedle zapewnia dobre połączenia komunikacyjne z centrum Wrocławia oraz bliskość do różnorodnych usług i punktów handlowych. Charakteryzuje się nowoczesną architekturą otoczoną zielenią, co czyni je doskonałym miejscem do zamieszkania dla par i rodzin z dziećmi.
KOMUNIKACJA
- 100 m przystanek autobusowy z liniami 112 i 612
- bliskość obwodnicy z szybkim wyjazdem z miasta
STANDARD:
- oszczędna pompa ciepła w cenie
- ogrzewanie podłogowe w całym mieszkaniu
- wypusty pod zamontowanie paneli fotowoltaicznych
- siła pod płytę indukcyjną
- gotowe, betonowe schody
W ofercie również inne powierzchnie mieszkań
Zapraszam do kontaktu
889 759 863
Feel free to contact us, talk and see the apartment. For more information please call us +48 889 759 863.
Por favor contáctenos para conocer más sobre la oferta y ver el apartamento. Podemos ayudar con todos los trámites. Para más información por favor llámanos +48 889 759 863.
Treść niniejszego ogłoszenia nie stanowi oferty handlowej w rozumieniu Kodeksu Cywilnego.
Oferta wysłana z programu IMO dla biur nieruchomości