PRZESTRZENNE MIESZKANIE Z OGRODEM W CICHEJ OKOLICY
Brak prowizji i podatku PCC
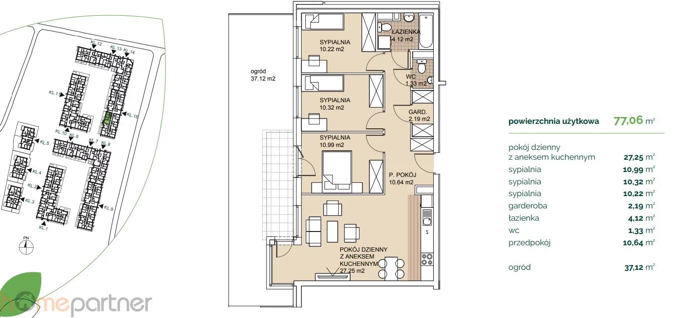
Na sprzedaż mieszkanie o powierzchni 77,06 m2 znajdujące się na parterze inwestycji na wrocławskim Psim Polu.
Mieszkanie gotowe do odbioru.
Mieszkanie składa się z:
- pokoju dziennego z aneksem kuchennym 27,25 m2
- sypialnia 10,99 m2
- sypialnia 10,32 m2
- sypialnia 10,22 m2
- garderoba 2,19 m2
- łazienka 4,12 m2
- wc 1,33 m2
- przedpokój 10,64 m2
- ogród 37,12 m2
Ekspozycja zachodnia.
INWESTYCJA
Jest to innowacyjna inwestycja mieszkaniowa położona we Wrocławiu. Zlokalizowane w spokojnej okolicy, osiedle to oferuje nie tylko nowoczesne mieszkania, ale także bogate otoczenie zielone, które sprzyja relaksowi i aktywnemu stylowi życia. Inwestycja ta stanowi doskonałe miejsce dla rodzin, par i osób ceniących sobie kontakt z przyrodą.
Osiedle oferuje różnorodność mieszkań, dostosowanych do różnych potrzeb i preferencji mieszkańców. Mieszkania te są nowocześnie zaprojektowane, z dbałością o funkcjonalność i estetykę.
Podsumowując, inwestycja ta, to nie tylko nowoczesne mieszkania, ale także kompleksowa koncepcja życia miejskiego, która łączy w sobie komfort, naturę i doskonałą lokalizację we Wrocławiu. Duża liczba miejsc postojowych oraz pomieszczenie na rowery i wózki dziecięce. Dodatkowo oferujemy możliwość zakupu komórek lokatorskich oraz przynależnego miejsca postojowego.
LOKALIZACJA I KOMUNIKACJA
Szybki dostęp do węzła autostradowego i obwodnicy
W bliskiej okolicy stacja PKP Psie Pole oraz PKP Zakrzów oraz parkingi Park&Ride
- linie autobusowe: D, 130, 111, 150
W pobliżu zaplecze handlowo-usługowe i rekreacyjne, 18 minut pieszo do Biedronki i 20 do Lidla. Nieopodal liczne mniejsze sklepy i punkty usługowe. Dogodny dojazd do Centrum Handlowego Korona około 8 minut samochodem, 5,6 km do obwodnicy.
W odległości około 10 minut spacerem powstaje nowy aquapark przy ul. Wilanowskiej
Ogromną zaletą lokalizacyjną jest bliskość pięknych terenów zieleni z jeziorkami i terenami spacerowymi - Parku Pawłowickiego i Parku Szczodre.
To przyjazne otoczenie dla zwolenników aktywnego wypoczynku, z dala od miejskiego zgiełku.
ZALETY OFERTY:
- dostępne od zaraz
- bliskość pięknych terenów zieleni - Parku Pawłowickiego i Parku Szczodre
- przestrzenny rozkład
- ogród
- szybki dostęp do węzła autostradowego i obwodnicy
W ofercie również inne powierzchnie mieszkań.
Możliwość zakupu miejsca postojowego w garażu podziemnym ( 29 000 zł) lub miejsca zewnętrznego (19 000 zł) i komórek do wybranych mieszkań (4 000 zł/m2).
Zapraszamy do kontaktu w celu uzyskania dodatkowych informacji oraz umówienia się na bezpłatną prezentację nieruchomości: Tel. +48 889 759 863
Feel free to contact us, talk and see the apartment. For more information please call us Tel. +48 889 759 863.
Por favor contáctenos para conocer más sobre la oferta y ver el apartamento. Podemos ayudar con todos los trámites. Para más información por favor llámanos +48 889 759 863.
www.home-partner.com.pl
Treść niniejszego ogłoszenia nie stanowi oferty handlowej w rozumieniu Kodeksu Cywilnego.
Oferta wysłana z programu IMO dla biur nieruchomości