Oferta dodana za pomocą Multiportalu BeBroker
Sprzedaż bezpośrednio od właściciela !
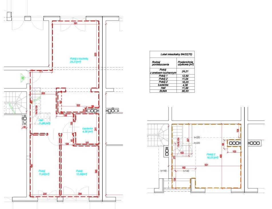
Piękne dwupoziomowe mieszkanie o powierzchni prawie 81 m2 usytuowane jest na 3. piętrze kameralnego, trzypiętrowego budynku z 2012 roku. Mieszkanie po podłodze jest większe ale poniżej skosów 1,4 metra powierzchnia nie jest wliczona do powierzchni użytkowej. Daje to bardzo duże możliwości aranżacji.
Mieszkanie jest w pełni wykończone, zadbane i gotowe do wprowadzenia się. Ekspozycja dwustronna: południe – zachód zapewnia doskonałe nasłonecznienie przez cały dzień.
Rozkład pomieszczeń:
Przestronny salon ( pokój dzienny ) z aneksem kuchennym
Pokój 2
Pokój 3
Pokój 4 na piętrze (z możliwością aranżacji jako garderoba lub dodatkowa sypialnia)
Przedpokój
Łazienka z wanną z możliwością prysznica
Balkon
Lokalizacja:
Mieszkanie położone jest w zielonej, spokojnej okolicy z przewagą niskiej zabudowy – idealne dla rodzin, par oraz osób ceniących ciszę i komfort życia na obrzeżach miasta.
Doskonała komunikacja:
5 minut pieszo do przystanku "Złocień" (komunikacja miejska), szybki dojazd do autostrady A4, tylko 15 minut samochodem do Centrum Handlowego Bonarka.
W okolicy pełna infrastruktura:
Sklepy: Biedronka, Żabka, Pepco, sklepy osiedlowe, punkty usługowe, lokale gastronomiczne, biblioteka, szkoła, żłobek, przedszkole
Opłaty eksploatacyjne:
Czynsz administracyjny: ok. 800 zł/mies. (obejmuje ogrzewanie, wodę ciepłą i zimną, wywóz nieczystości, fundusz remontowy),
Dodatkowo płatna energia elektryczna według zużycia.
Mieszkanie nie wymaga żadnych wkładów finansowych, jest gotowe do wprowadzenia się.
Posiada pełną zabudowę AGD - lodówka, pralka, zmywarka, okap, płyta indukcyjna.
Mieszkanie jest wysokie co daje niesamowity efekt i możliwość pięknej aranżacji.
W salonie, przedpokoju i kuchni piękne płytki, w pokojach deska barlinecka.
Cena jest do lekkiej negocjacji.
Telefon: 604755001