Budynek produkcyjno-usługowo-biurowy w Stanisławie Dolnym gm. Kalwaria Zebrzydowska, na działce o pow. 1,40 ha ok. 5 km od Kalwarii Zebrzydowskiej i ok. 17 km od wjazdu na autostradę A4.
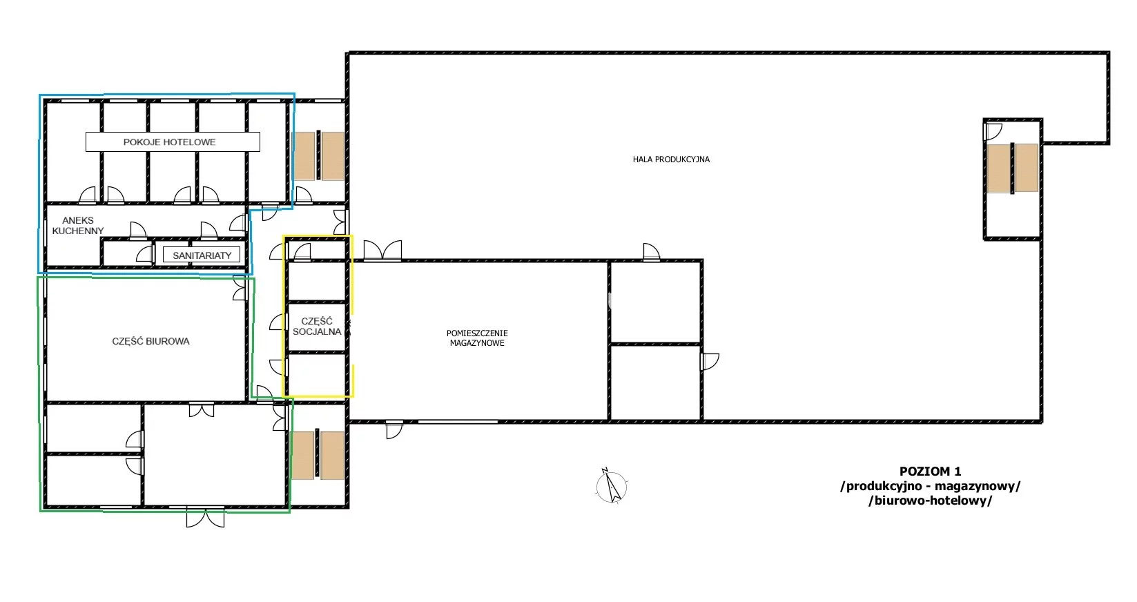
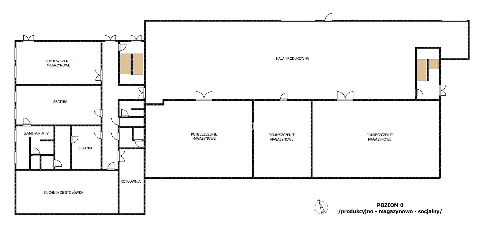
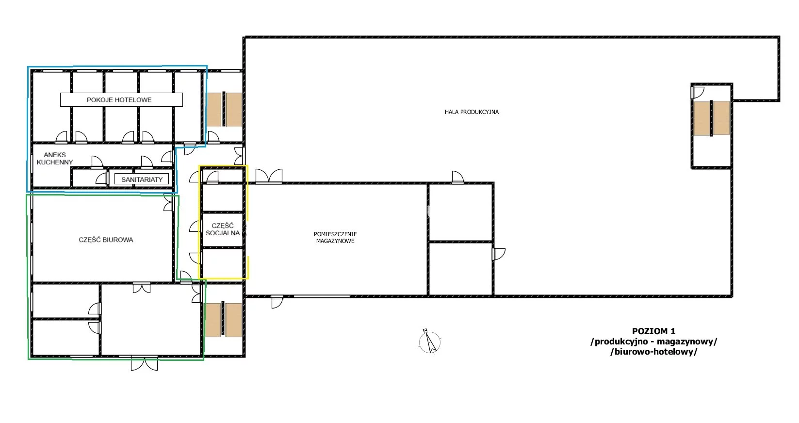
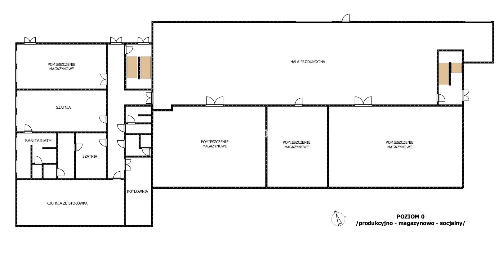
Budynek 2 kondygnacyjny o łącznej powierzchni użytkowej 2951 m 2 , wybudowany w 2010 r., urządzony w wysokim standardzie, usytuowany na ogrodzonej działce o pow. 1,4048 ha z bezpośrednim zjazdem z drogi publicznej. Działka utwardzona kostką brukową na pow. ok. 5000 m 2 . W skład budynku wchodzą 2 hale produkcyjno-usługowe o pow. po 865 m 2 każda. Hale usytuowane są na 1 i 2 kondygnacji. Każda posiada bramę wjazdową (3,2 m x 3,1 m). Wysokość hal od 3,5m do 4,5 m . Na 3 kondygnacjach znajdują się powierzchnie biurowo-magazynowo-socjalne o pow. 407 m 2 każda. Łączna pow. pomieszczeń biurowych wynosi ok. 600 m2, ogółem 11 pomieszczeń (sale konferencyjne, gabinety, sekretariat), 5 pomieszczeń socjalnych i 6 pomieszczeń sanitarnych. Na pozostałej powierzchni znajduje się obecnie 5 pokoi mieszkalnych po 18 m 2 każdy, z zapleczem socjalnym i sanitarnym.
Budynek wybudowany w technologii tradycyjnej, murowany, ocieplony styropianem, okna PCV i aluminium. Ogrzewanie gazowe, w halach nadmuchowe, w pozostałych pomieszczeniach, podłogowe i grzejniki. Podłogi: gres. Budynek klimatyzowany, wentylacja mechaniczna i grawitacyjna, fotowoltaika, alarm, monitoring.
Woda z 2 studni głębinowych, oczyszczalnia ścieków, 2 hydranty, własny zbiornik p-poż (210m 3 ), transformator - 100 kW.
Budynek częściowo wynajmowany, z możliwością przedłużenia lub wypowiedzenia umowy (3-miesiące).
Dodatkowo pozwolenie na budowę hali o pow. 1200 m 2 , w tym hala wysokiego składowania: 800 m 2 i na 2 kondygnacjach pow. biurowa po 200 m 2 na każdej kondygnacji (h=4m), lub halę bez pow. biurowej o pow. 1000 m 2 , o wysokości 8 m.
Szczegóły oferty:
+48 502 104 545
::DODATKOWE INFORMACJE
Prąd: jest
Gaz: tak - miejski
Woda: tak - własna
Dojazd: asfalt
Otoczenie: panorama
Ogrzewanie: gazowe
Kanalizacja: własna oczyszczalnia
Alarm: TAK
Internet: TAK
Komunikacja publ.: bus
Klimatyzacja: TAK
Recepcja: TAK
Sieć komputerowa: TAK
Sufity podwieszane: TAK
Wysokość kondygnacji [m]: 3,5-4,5
Możliwość parkowania: tak
Własny parking: TAK
Naziemn. miejsc parking.: 30
Wejście: od ulicy
Podłogi: gres
Położenie obiektu: na obrzeżach miasta
Teren ogrodzony: TAK
Sala konferencyjna: TAK
Kategoria biurowca: A
Pow. całk. budynku [m2]: 2951
Pow. całk. biurowa [m2]: 600
Pow. całk. handlowa [m2]: 1730
Opłaty wg liczników: prąd, gaz
Rok budowy: 2010
Liczba kondyg. biurowych: 2
Liczba pomieszczeń biurowych: 11
Powierzchnia pomieszczeń biurowych od [m2]: 600
Liczba pomieszczeń magazynowych: 2
Liczba pomieszczeń socjalnych: 5
Liczba pomieszczeń sanitarnych: 6
::LINK DO STRONY
https://sadurscy.pl/offer/BS5-BS-311855
Zobacz Wirtualny Spacer: https://sb360.online/akvxga
::KONTAKT DO AGENTA
Dariusz Kornaś
+48 502-104-545
Zapytaj o ofertę
::DANE BIURA
Oddział BS5, Nowa Huta
Bracia Sadurscy Dariusz Sadurski
Os. Kazimierzowskie 36
31-844 Kraków
12 265 10 29
Pośrednik odpowiedzialny zawodowo za wykonanie umowy pośrednictwa: Dariusz Sadurski (licencja nr: 803)