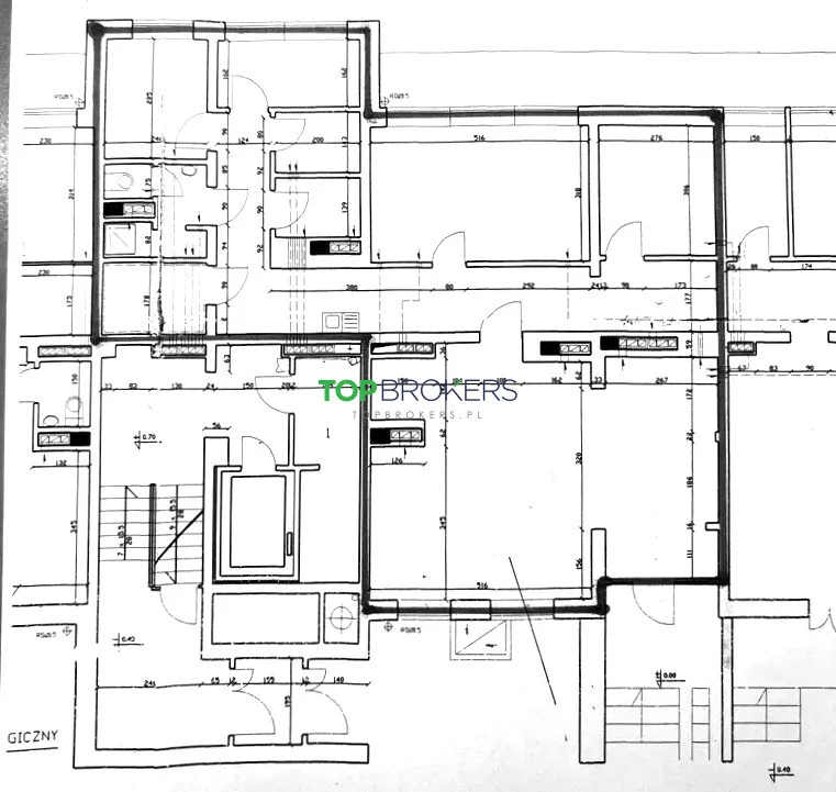
Do wynajęcia lokal usługowy 116,5 m2, parter/12 w budynku z 1991 r., Wilanów Wysoki.
Lokal wykończony, duża witryna i miejsce na szyld, własne wejście z chodnika, idealny na klinikę terapeutyczną, punkt spotkań z klientami, salon piękności, gabinet kosmetyczny, gabinet stomatologiczny, szkołę językową, biuro projektowe, itp.
Cena: 7573 zł netto + media wg zużycia. Wymagana kaucja. Właściciel wystawia faktury VAT.
W okolicy dużo budynków mieszkalnych, liczne sklepy i punkty usługowe, paczkomat, przedszkole, szkoła, kluby sportowe, duży ruch samochodowy oraz pieszy. Blisko przystanki autobusowe i tramwajowe.
Lokal to:
* 4 niezależne pomieszczenia biurowe/gabinety;
* łazienka: prysznic, wc;
* toaleta: wc;
* pomieszczenie socjalne;
* magazynek.
Bezpłatny parking po drugiej stronie ulicy.
Oferta biura nieruchomości, prowizja płatna dopiero po podpisaniu umowy najmu. Więcej propozycji na naszej stronie topbrokers(kropka)pl