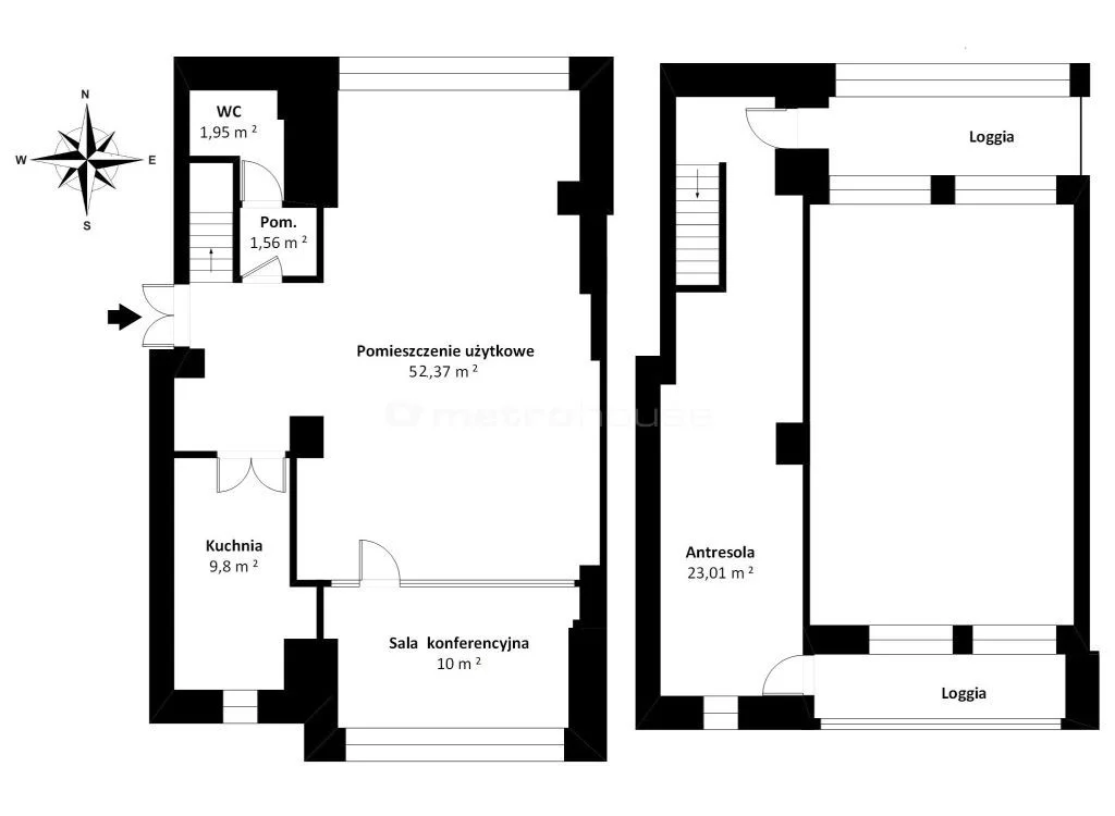
Oferuję do wynajęcia lokal położony w sercu Starego Mokotowa przy ulicy Rakowieckiej. Lokalizacja charakteryzuje się doskonałą komunikacją (metro, autobus, tramwaj) oraz zapleczem handlowym. Lokal ponad sto metrów położony na parterze przedwojennego budynku. Doskonale sprawdzi się na siedzibę firmy na przykład biuro księgowe, agencję reklamową, kancelarię prawną lub biuro architektoniczne, najlepiej na nieuciążliwe usługi. Kilka lat temu w lokalu był przeprowadzony generalny remont i w dalszym ciągu lokal pozostaje w bardzo dobrym stanie technicznym i nie wymaga prac remontowych. Lokal składa się z otwartej dużej powierzchni (open space) wydzielonej sali konferencyjnej, na parterze znajduje się również kuchnia i łazienka. Druga część lokalu to antresola około 23 m powierzchni, gdzie znajdziemy cichą część z możliwością zagospodarowania na gabinet lub osobną część biura, oraz wyjście na dwa niewielkie balkony. Lokal w głównej części bardzo wysoki, prawie 5m. W lokalu zainstalowana klimatyzacja oraz instalacja alarmowa. Do czynszu najmu należy doliczyć czynsz administracyjny 1300 złotych obejmujący wywóz śmieci. Podana kwota czynszu netto. Vis a vis budynku znajduje się Instytut Biotechnologii, gdzie istnieje możliwość wynajęcia miejsca postojowego.
Czy wiesz, że możemy przygotować dla Ciebie prezentację on-line nieruchomości? Skontaktuj się z naszym Agentem i zapytaj o szczegóły.
Pomimo, iż Doradcy Metrohouse przykładają szczególną staranność do rzetelnego prezentowania informacji o nieruchomości, nie zawsze jest możliwa weryfikacja wszystkich danych przekazanych od osób trzecich. Niniejsza prezentacja oferty nie jest ofertą w rozumieniu Kodeksu Cywilnego i ma charakter wyłącznie informacyjny.