Sprzedam parter lokalu usługowego o pow. 327,21 m2 !
Budynek w trakcie podziału na dwie odrębne nieruchomości, każdy z własną Księgą Wieczystą.
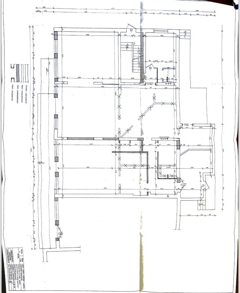
Lokal składa się z następujących pomieszczeń:
- holl z szatnią- 25,27 m2
- WC damskie 7,39
- WC męskie- 5, 73 m2
- pom socjalne- 13,00 m2
- korytarz- 2,38 m2
- Wc przy kotłowni- 1,24 m2
- magazyn opału- 35,87 m2
- pompownia- 4,12 m2
- magazyn- 1,92 m2
- kotłownia- 31,70 m2
- magazyn meblowy- 35,19 m2
Nieruchomość z kompleksem pomieszczeń oraz własnym parkingiem. Lokal jest aktualnie wynajmowany pod różne rodzaje działalności: sklep, mała gastronomia.
Większość lokali z własnymi pomieszczeniami sanitarnymi pozostałe mają dostęp do pomieszczeń sanitarnych znajdujących w częściach wspólnych.
Lokal posiada własne podliczniki prądu.
Lokal posiada bezpośrednie wejście od ulicy z witrynami, a do pozostałych poprzez klatkę schodową.
Budynek w świetnym stanie technicznym . Wykonano remont dachu wraz z wymianą pokrycia dachu w 2018/2019 roku, wykonano nową elewację w 2023 roku. Ogrzewanie i woda z sieci miejskiej, kanalizacja miejska, gaz ziemny, prąd , siła. Ogrzewanie piecem gazowym.
Doskonała okazja na zakup nieruchomości z przygotowanym i sprawdzonym biznesem. Kubatura budynku oraz posadowienie w samym centrum miasta gwarantuje bezpieczną lokatę kapitału a fakt, że lokal jest od kilkunastu lat w ciągłym najmie tylko to potwierdza.
Jeśli myślałeś o inwestycji nie przegap tej oferty.
Położenie miasta, bliskość jezior i dużego kompleksu leśnego i zabytkowy układ urbanistyczny, estetyka i kameralność, stwarzają dobre warunki do rekreacji i wypoczynku. Okolice miasta, jak i Gmina Lidzbark charakteryzują się wysokimi walorami przyrodniczymi. Stanowią wymarzone miejsce wypoczynku i rekreacji dla miłośników wędkarstwa, kajakarstwa, grzybobrania, wycieczek pieszych, rowerowych, a także konnych.
Niewątpliwą atrakcją jest zmodernizowana plaża miejska, z nowymi pomostami o 3-krotnie większej powierzchni, z wieżą do skoków oraz jedną z najdłuższych w województwie zjeżdżalni wodnych na świeżym powietrzu usytuowaną na brzegu jeziora. Od plaży prawym brzegiem jeziora Lidzbarskiego prowadzi promenada, dochodząca do parku sportowo-rekreacyjnego, miejsca relaksu, zabawy dla dzieci, imprez plenerowych oraz początku tras pieszych i rowerowych.
Gmina posiada ciekawe tereny, które przyciągają widokami, bazę noclegową i gastronomiczną, a także bazę agroturystyczną. Na terenie gminy zlokalizowane są ośrodki wczasowe na około 2000 miejsc. Charakterystyczną cechą regionu jest różnorodność cech środowiska przyrodniczego, co uwidacznia się w bogactwie flory i fauny, a także w zróżnicowaniu krajobrazu. Ważnym elementem przyrodniczym regionu są jeziora. Większość jezior leży w ciągu rzeki Wel. Największy ruch turystyczny obserwuje się nad jeziorami: Lidzbarskim, Piaseczno i Kiełpińskim, wokół których zlokalizowano ośrodki wczasowe.
Na obszarze parków krajobrazowych, w poszczególnych nadleśnictwach wyznaczone zostały również dydaktyczne ścieżki przyrodnicze.
Miasto zdobyło w roku 2012 w plebiscycie organizowanym przez Gazetę Olsztyńską tytuł Letniej stolicy Warmii i Mazur"
Zapraszam!
Bogumił Urbanowski
Tel: 601 428 936
E-mail:
Zapytaj o ofertę
"Właścicielem ogłoszenia wraz z jego elementami jest Freedom Nieruchomości Sp. z o.o. lub podmioty współpracujące. Wszelkie prawa zastrzeżone. Kopiowanie, rozpowszechnianie oraz korzystanie z niniejszych materiałów w jakikolwiek inny sposób wykraczający poza dozwolony użytek określony przepisami ustawy z 4 lutego 1994 r. o prawie autorskim i prawach pokrewnych (Dz. U. 1994, nr 24 poz. 83 z późn. zm.) bez pisemnej zgody Freedom Nieruchomości Sp. z o.o. lub podmiotów współpracujących jest zabronione i może stanowić podstawę odpowiedzialności cywilnej oraz karnej.
Ponadto niniejsze materiały stanowią tajemnicę przedsiębiorstwa Freedom Nieruchomości Sp. z o.o. lub podmiotów współpracujących w rozumieniu ustawy z dnia 16 kwietnia 1993 r. o zwalczaniu nieuczciwej konkurencji (Dz. U. z 2003 r., Nr 153, poz. 1503 z późn. zm.). Niniejsze ogłoszenie nie stanowi oferty w rozumieniu Kodeksu Cywilnego, lecz ma charakter informacyjny."
Oferta wysłana z programu dla biur nieruchomości ASARI CRM (asaricrm.com)