Mam przyjemność zaprezentować Państwu wyjątkowy lokal biurowo-usługowy na wynajem, o powierzchni 300 m², zlokalizowany w Krakowie, w dzielnicy Krowodrza, przy skrzyżowaniu ulic Lea i Piastowskiej.
To doskonała przestrzeń do prowadzenia działalności, dzięki swojej świetnej lokalizacji, funkcjonalnemu układowi oraz wysokiemu standardowi wykończenia.
LOKALIZACJA:
Nieruchomość położona jest w jednym z najbardziej strategicznych punktów Krakowa, na skrzyżowaniu dwóch głównych ulic, co gwarantuje łatwy dostęp do najważniejszych arterii komunikacyjnych i umożliwia szybki dojazd do centrum miasta. Okolica charakteryzuje się dużym natężeniem ruchu pieszych oraz pojazdów, co zapewnia wysoką widoczność lokalu oraz łatwość dotarcia do niego. Dodatkowo, w bliskiej odległości znajdują się przystanki tramwajowe i autobusowe, co sprawia, że dojazd komunikacją publiczną jest bardzo wygodny.
W najbliższym otoczeniu znajdują się liczne punkty usługowe, sklepy, restauracje oraz instytucje kulturalne i edukacyjne, w tym uczelnie wyższe, co czyni tę lokalizację atrakcyjną zarówno dla pracowników, jak i klientów. Dzięki dogodnemu połączeniu z głównymi drogami oraz bliskości do centrum, jest to miejsce, które łączy dynamiczne, miejskie otoczenie z cichszą, bardziej kameralną przestrzenią.
UKŁAD LOKALU:
Piętro -1 (w poziomie piwnicy):
Serwerownia - przestrzeń idealna do przechowywania sprzętu IT.
Schowek - dodatkowa przestrzeń do przechowywania.
Kuchnia - wyposażona w niezbędny sprzęt AGD.
Sala wykładowa - przestronna, idealna do organizowania szkoleń, warsztatów czy spotkań biznesowych.
Łazienka z prysznicem - komfortowa przestrzeń sanitarna.
Przedpokój - przestronny i funkcjonalny.
Piętro 0 (parter):
Pokój I - mniejszy, z wyjściem na ogródek, idealny na biuro.
Pokój II - większy, również z wyjściem na ogródek, przestronny i funkcjonalny.
Toaleta - dla wygody użytkowników.
Duża sala - przestronna, z możliwością aranżacji według potrzeb najemcy.
Korytarz - łączący wszystkie pomieszczenia.
Recepcja/poczekalnia - miejsce powitalne, doskonałe na spotkania z klientami.
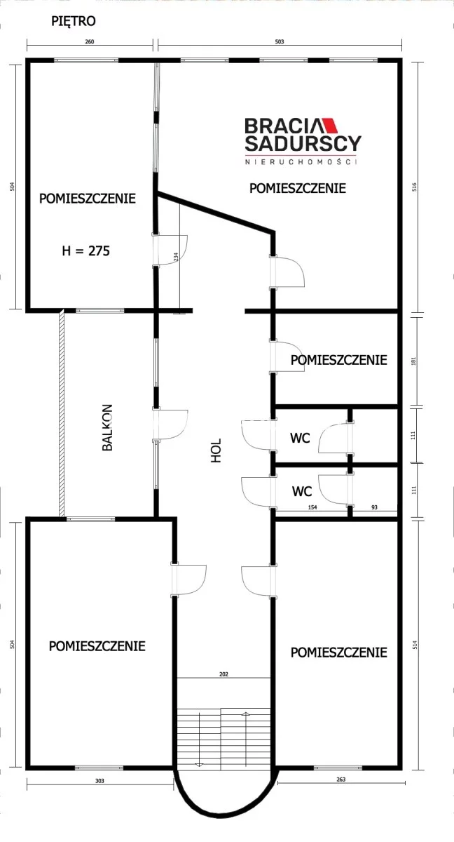
Piętro 1 :
Pokój I - duży, idealny na biuro, gabinet.
Pokój II - bardzo duży, z możliwością podziału na mniejsze przestrzenie.
Pokój magazynowy - mały, bez okna, idealny na przechowywanie.
Toaleta I oraz Toaleta II - dwie oddzielne toalety dla wygody użytkowników.
Pokój III - duży, przestronny, do dowolnej aranżacji.
Balkon - przestronny, z widokiem na okolicę.
Korytarz - przestronny, zapewniający dostęp do wszystkich pomieszczeń.
DODATKOWE INFORMACJE:
Miejsca parkingowe: 5 miejsc parkingowych w cenie wynajmu, zapewniając wygodny dostęp do lokalu.
Monitoring: system monitoringu zapewniający bezpieczeństwo.
Klimatyzacja: we wszystkich pomieszczeniach, co zapewnia komfort w każdej porze roku.
Ogródek: do wyłącznej dyspozycji najemcy - idealne miejsce na przerwy w pracy lub spotkania na świeżym powietrzu.
Open space: możliwość przekształcenia przestrzeni w układ typu open space.
Kuchnia/pomieszczenie socjalne: dla wygody pracowników.
Łazienki: 4 osobne toalety oraz 1 łazienka z prysznicem.
Standard: budynek po generalnym remoncie, gotowy do wprowadzenia.
CENA:
Cena wynajmu: 19 500 zł netto miesięcznie + 23%VAT
Dodatkowe opłaty: prowizja dla biura, media według zużycia (ogrzewanie gazowe), kaucja zwrotna.
To doskonała oferta dla firm poszukujących funkcjonalnego i prestiżowego lokalu biurowego w sercu Krakowa. Serdecznie zapraszam do kontaktu i umówienia się na prezentację, aby osobiście przekonać się o wszystkich zaletach tej nieruchomości.
Zapraszam do kontaktu oraz na prezentacje!
Dariusz Zieliński
tel: 503-112-787
::DODATKOWE INFORMACJE
Rodzaj budynku: biurowiec
Dozór budynku: monitoring
Gaz: jest
Woda: piecyk gazowy
Dojazd: asfalt
Otoczenie: działki zabudowane
Ogrzewanie: centralne
Linie telefoniczne: TAK
Alarm: TAK
Internet: TAK
Komunikacja publ.: autobus miejski, autobus
Winda: NIE
Usytuowanie: środkowe
Drzwi antywłamaniowe: TAK
Klimatyzacja: TAK
Możliwość parkowania: tak
Własny parking: TAK
Naziemn. miejsc parking.: 4
Położenie lokalu: ruchliwa ulica
Witryna wystawowa: od ulicy
Wejście: od ulicy
Liczba wejść: 1
Min. okres naj. (mies.): 12
Opłaty wg liczników: woda, prąd
Stan lokalu: bardzo dobry
Okna: PCV
Instalacje: dobre
Powierzchnia użytkowa [m2]: 300
Rok budowy: 2000
Rodzaj lokalu: wielopoziomowy
Przeznaczenie lokalu: usługowy, biurowy
Liczba pokoi: 8
Liczba kondyg. biurowych: 3
Typ kaucji: do uzgodnienia
::LINK DO STRONY
https://sadurscy.pl/offer/BS2-LW-308046
::KONTAKT DO AGENTA
Dariusz Zieliński
+48 503-112-787
Zapytaj o ofertę
::DANE BIURA
Oddział BS2, Rynek Pierwotny
Przewóz 47
30-081 Kraków
12 630-90-45
Pośrednik odpowiedzialny zawodowo za wykonanie umowy pośrednictwa: Dariusz Sadurski (licencja nr: 803)
--------------------------
::GRATIS | Nasza prowizja zawiera: koszt przedwstępnej notarialnej umowy sprzedaży nieruchomości z rynku wtórnego.
::GWARANCJA | Gwarancja zwrotu zadatku. Więcej informacji na sadurscy.pl/zwrot-zadatku/
Oferta wysłana z systemu Galactica Virgo