Do wynajęcia przestronny lokal użytkowy 85 m² – Brodnica, ul. Długa – z własnym parkingiem!
Oferuję do wynajęcia lokal użytkowy o powierzchni 85 m², położony w Brodnicy przy ul. Długiej, w bardzo dogodnej lokalizacji – blisko trasy wyjazdowej na Warszawę oraz obwodnicy Brodnicy, ok. 400 metrów od ronda.
Duży atut – własny parking na 4–5 samochodów, co zapewnia łatwy dostęp dla klientów i pracowników.
Opis lokalu:
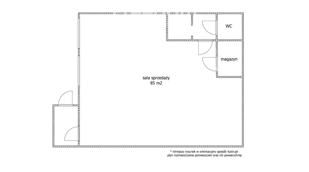
- Powierzchnia całkowita: 85 m²
- sala sprzedaży: ok. 77 m²
- zaplecze (szatnia, magazynek, WC i łazienka): ok. 8 m²
- jasne, ustawne pomieszczenia,
- zaplecze socjalne i sanitarne,
- niezależne wejście,
- dostępne wszystkie media (prąd, woda, ogrzewanie gazowe).
Atuty:
- doskonała lokalizacja przy ruchliwej ulicy, w pobliżu obwodnicy Brodnicy, trasy na Warszawę i ul. Podgórnej,
- łatwy dojazd z każdej części miasta,
- własny parking na 5 samochodów przed budynkiem.
- spokojna, rozwijająca się okolica,
- dogodny dojazd i widoczność z ulicy,
- możliwość adaptacji wnętrza pod różne rodzaje działalności (biuro, gabinet, sklep, punkt usługowy, magazyn).
Udogodnienia i wyposażenie:
- ogrzewanie w cenie najmu,
- woda i prąd płatne wg zużycia,
- duże okna witrynowe – doskonała ekspozycja i widoczność lokalu,
- możliwość podłączenia światłowodu,
- łatwy dostęp dla klientów,
Idealny pod: sklep, biuro, gabinet, salon kosmetyczny, punkt usługowy lub inną działalność handlowo-usługową.
Szczegóły oferty: FREEDOM Iława, ul. Kopernika 5, Katarzyna Jakubowska, tel. 572135403
Cena najmu: 3300 zł / miesiąc + opłaty eksploatacyjne
Przy wynajmie nieruchomości należy uwzględnić koszty okołotransakcyjne.
"Właścicielem ogłoszenia wraz z jego elementami jest Freedom Nieruchomości Sp. z o.o. lub podmioty współpracujące. Wszelkie prawa zastrzeżone. Kopiowanie, rozpowszechnianie oraz korzystanie z niniejszych materiałów w jakikolwiek inny sposób wykraczający poza dozwolony użytek określony przepisami ustawy z 4 lutego 1994 r. o prawie autorskim i prawach pokrewnych (Dz. U. 1994, nr 24 poz. 83 z późn. zm.) bez pisemnej zgody Freedom Nieruchomości Sp. z o.o. lub podmiotów współpracujących jest zabronione i może stanowić podstawę odpowiedzialności cywilnej oraz karnej.
Ponadto niniejsze materiały stanowią tajemnicę przedsiębiorstwa Freedom Nieruchomości Sp. z o.o. lub podmiotów współpracujących w rozumieniu ustawy z dnia 16 kwietnia 1993 r. o zwalczaniu nieuczciwej konkurencji (Dz. U. z 2003 r., Nr 153, poz. 1503 z późn. zm.). Niniejsze ogłoszenie nie stanowi oferty w rozumieniu Kodeksu Cywilnego, lecz ma charakter informacyjny."
Oferta wysłana z programu dla biur nieruchomości ASARI CRM (asaricrm.com)