Ta wyjątkowa oferta jest idealnym wyborem dla osób szukających miejsca, gdzie mogą zbudować własny dom lub zainwestować w nieruchomości. Dzięki świetnej lokalizacji, przystępnej cenie i możliwości podziału działki, ten teren nie będzie długo dostępny na rynku. Nie przegap tej wyjątkowej okazji - skontaktuj się z nami już dziś!
Warto zwrócić uwagę na dostępność mediów, w tym gazu ziemnego, które znajdują się w drodze, co znacznie ułatwi prace budowlane i późniejsze użytkowanie. Ponadto, dostęp do działki jest zapewniony przez asfaltową drogę dojazdową, co czyni tę lokalizację jeszcze bardziej atrakcyjną.
Działka znajduje się w malowniczej okolicy, w otoczeniu natury i z łatwym dostępem do pobliskiego jeziora, które jest doskonałym miejscem na spędzanie wolnego czasu na łonie natury. To idealne miejsce dla tych, którzy cenią sobie ciszę, spokój i chcą uciec od miejskiego zgiełku.
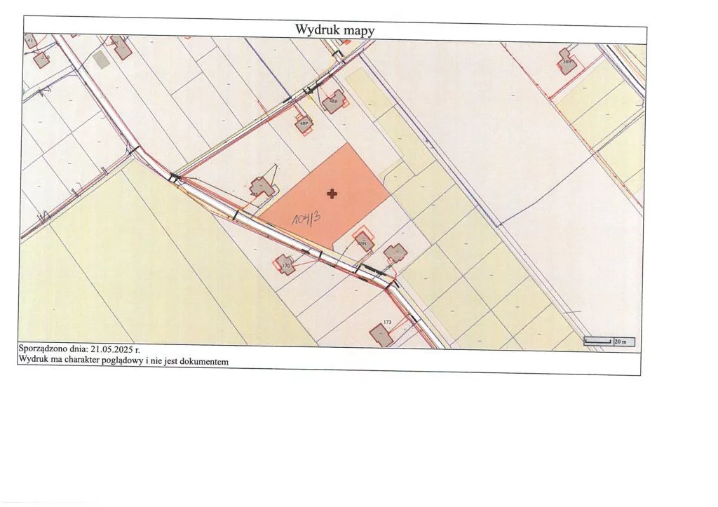
Sprzedaż działki budowlanej za 382 000 zł w Szałkowie o powierzchni 4534 mkw , w bliskim sąsiedztwie Iławy. Ta przestronna parcela ma możliwość podziału, co czyni ją idealnym wyborem dla tych, którzy myślą o inwestycji lub budowie domu marzeń blisko jeziora. Teren ten oferuje około 80 zł za metr kwadratowy, co jest bardzo dobrą ceną biorąc pod uwagę doskonałą lokalizację i dużą powierzchnię.
Czy wiesz, że możemy przygotować dla Ciebie prezentację on-line nieruchomości? Skontaktuj się z naszym Agentem i zapytaj o szczegóły.
Pomimo, iż Doradcy Metrohouse przykładają szczególną staranność do rzetelnego prezentowania informacji o nieruchomości, nie zawsze jest możliwa weryfikacja wszystkich danych przekazanych od osób trzecich. Niniejsza prezentacja oferty nie jest ofertą w rozumieniu Kodeksu Cywilnego i ma charakter wyłącznie informacyjny.