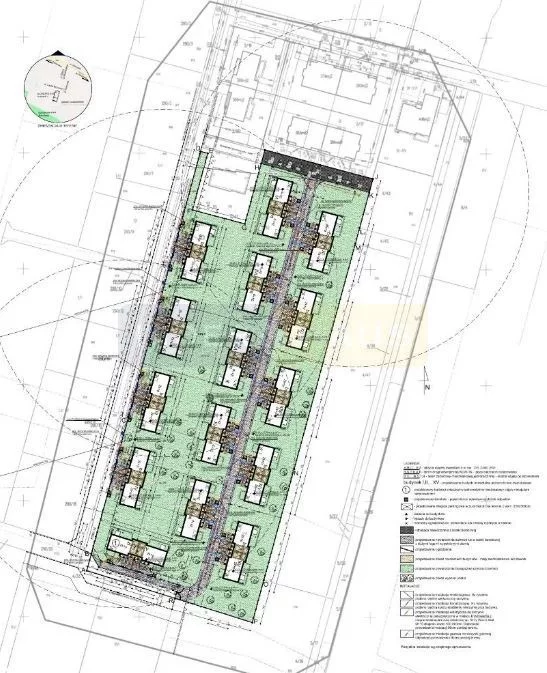
Działki budowlane w uroczym, cichym , spokojnym miejscu z pełną infrastrukturą dojazdową i ze wszystkimi mediami. 800m od przystanku autobusowego ZTM. 10km od stacji Merto Młociny z koncepcją zabudowy na 30 domów dwulokalowych o pow. ok. 160m2 każdy w otulinie Puszczy Kampinoskiej objęte MPZP który przewiduje :
1) przeznaczenie terenu:
a) podstawowe: zabudowa mieszkaniowa jednorodzinna,
b) uzupełniające: zabudowa usługowa w zakresie usług nieuciążliwych;
2) zasady ochrony i kształtowania ładu przestrzennego:
a) budynki mieszkalne w zabudowie wolnostojącej lub bliźniaczej,
b) budynki usługowe w zabudowie wolnostojącej lub jako lokale usługowe wbudowane w budynki mieszkalne
jednorodzinne,
c) budynki garażowe i gospodarcze wolnostojące, wbudowane lub dobudowane do budynku mieszkalnego, usługowego,
mieszkalno-usługowego;
3) tereny zabudowy mieszkaniowej jednorodzinnej oznaczone symbolem MN o numerach od 1 do 11 położone są w
granicach otuliny Kampinoskiego Parku Narodowego i w granicach Warszawskiego Obszaru Chronionego Krajobrazu,
obowiązują ustalenia zawarte w §7 ust. 2;
4) dla fragmentu terenu zabudowy mieszkaniowej jednorodzinnej oznaczonego symbolem MN-10, znajdującego się w strefie
od granicy głównego kompleksu Kampinoskiego Parku Narodowego, obowiązują ustalenia zawarte w §6 pkt 2 lit. c oraz
w §11 pkt 1;
5) zasady kształtowania zabudowy i zagospodarowania terenu:
a) wskaźnik powierzchni biologicznie czynnej w granicach działki budowlanej – minimalnie 70% powierzchni działki
budowlanej,
b) wskaźnik powierzchni zabudowy w granicach działki budowlanej – maksymalnie 20% powierzchni działki budowlanej,
c) wskaźnik maksymalnej intensywności zabudowy w granicach działki budowlanej - 0,6,
d) wskaźnik minimalnej intensywności zabudowy w granicach działki budowlanej – 0,05,
e) maksymalna wysokość budynku mieszkalnego, usługowego, mieszkalno-usługowego – 11 m, maksymalnie 2
kondygnacje nadziemne oraz poddasze użytkowe,
f) maksymalna wysokość wolnostojącego budynku garażowego, gospodarczego – 6 m, maksymalnie 1 kondygnacja
nadziemna,
g) maksymalna wysokość: budowli, obiektów małej architektury – 11 m,
h) nieprzekraczalne linie zabudowy zgodnie z rysunkiem planu,
i) dachy dwuspadowe lub wielospadowe o kącie nachylenia głównych połaci dachu od 20º do 45º, przy czym główne
połacie dachu muszą posiadać jednakowy spadek;
6) szczegółowe zasady i warunki scalania i podziału nieruchomości:
a) minimalna powierzchnia działki:
- 1200 m2 dla budynków wolnostojących,
- 800 m2 dla budynków w zabudowie bliźniaczej lub dla działek podłączonych do zbiorczej sieci kanalizacyjnej,
b) minimalna szerokość frontu działki:
- 20 m dla budynków wolnostojących,
- 10 m dla budynków w zabudowie bliźniaczej;
Zapraszam na prezentację .
EKSTRA OFERTY NA STRONIE LIDERHAUS
Informacje zamieszczone na stronie nie stanowią oferty, a jedynie mają charakter reklamowy i poglądowy. Informacje te są jedynie zaproszeniem do zawarcia umowy (art. 71 Kodeksu cywilnego).
Świadczymy usługi w oparciu o umowę pośrednictwa, która gwarantuje Państwu bezpieczeństwo transakcji oraz opiekę doradcy przez okres trwania współpracy. Za wykonaną usługę pobieramy wynagrodzenie zgodnie z warunkami uzgodnionymi w zawartej umowie (za wyjątkiem umów w programie 0%).
Oferta wysłana z programu dla biur nieruchomości ASARI CRM (asaricrm.com)