D ziałka usługowo - inwestycyjna z pnb w Chrzanowie
Oferujemy na sprzedaż działkę budowlaną położoną w Chrzanowie przy ul. Śląskiej (głównej drodze prowadzącej do Jaworzna), w pobliżu zjazdu z autostrady A4.
Działka o powierzchni 1155 m 2 , w kształcie prostokąta o wymiarach z ok. 21 x 54 m. Teren płaski, niezabudowany i niezadrzewiony.
Nieruchomość posiada prawomocne pozwolenie na budowę z pełną dokumentacją do zaplanowanej inwestycji tj. budowy budynku usługowo - handlowego wraz z infrastrukturą techniczną, z uwzględnieniem budowy zjazdu publicznego z drogi gminnej.
OPIS INWESTYCJI
Planowana inwestycja ma polegać na budowie budynku usługowo - handlowego o nw. parametrach:
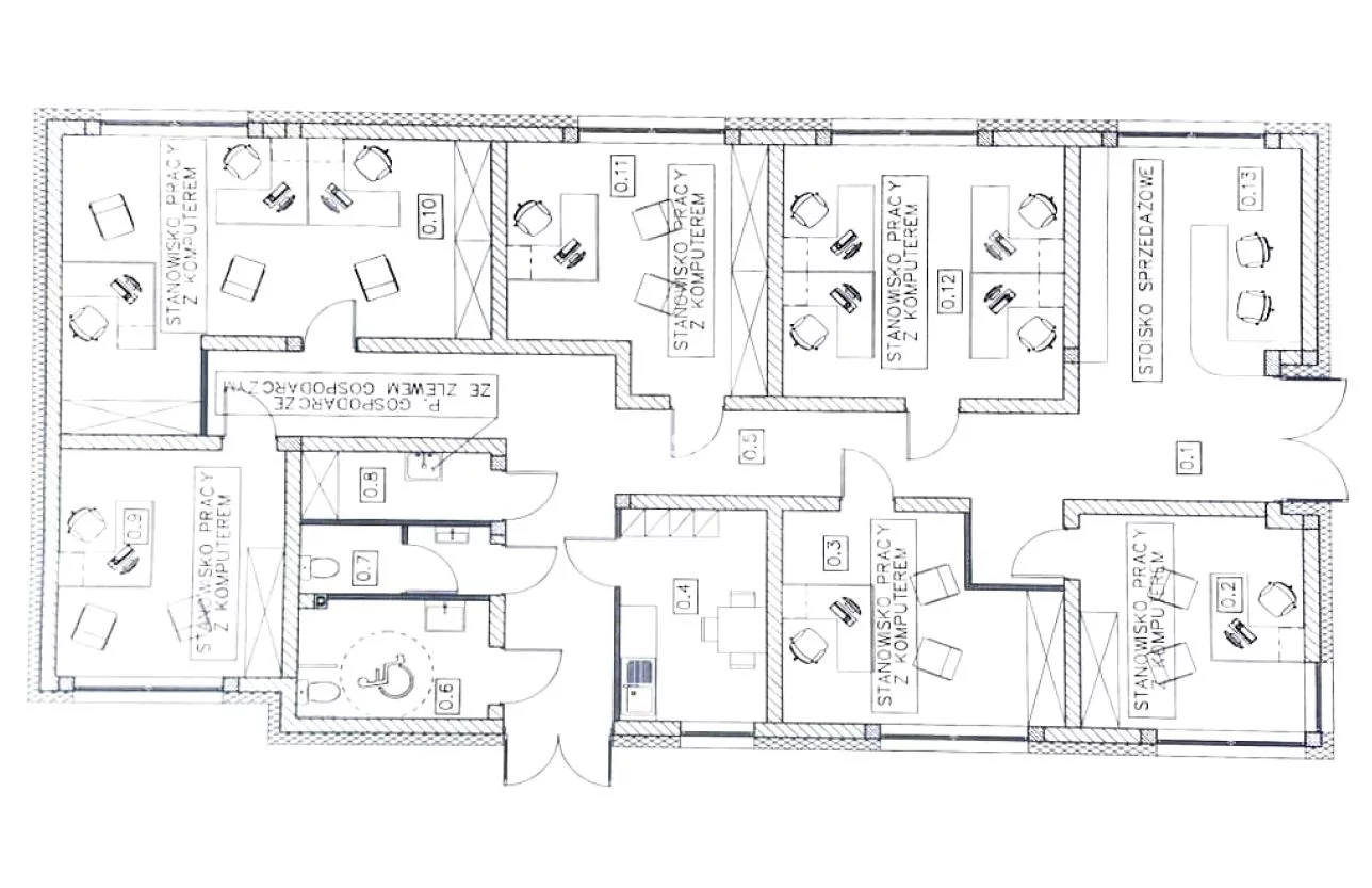
1. Zestawienie powierzchni użytkowej budynku:
pow. zabudowy - 230 m 2
kubatura - 724 m3
pow. całkowita - 179,58 m 2
pow. użytkowa - 179,58 m 2
2. Rozkład pomieszczeń:
hol - 3,93 m 2
biuro - 13,2 m 2
biuro - 14,86 m 2
pom. socjalne - 8,88 m 2
komunikacja - 32,15 m 2
wc - 6,29 m 2
wc - 3,6 m 2
pom. gospodarcze - 3,6 m 2
biuro - 14,42 m 2
biuro - 28,09 m 2
biuro - 16,97 m 2
biuro - 20,24 m 2
pom. handlowe - 13,35 m 2
RAZEM: 179,58 m 2
Przy budynku zaplanowano wykonanie 8 miejsc postojowych.
WARUNKI ZABUDOWY
Decyzja o warunkach zabudowy przewiduje nw. parametry:
- powierzchnia inwestycji - 70%
- powierzchnia biologicznie czynna - min. 30%
- wysokość budynku - 11 m (co pozwala na ewentualną rozbudowę planowanego budynku)
MEDIA:
- prąd, woda, gaz, kanalizacja - znajdują się przy działce
- wydano warunki przyłączy dla wszystkich mediów
- światłowód przy działce
INNE:
działka utwardzona ok. 10 lat temu kamieniem
FORMA WŁASNOŚCI:
uregulowana, bez obciążeń
Biuro pomaga bezpiecznie przeprowadzić transakcję.
Szczegóły oferty
798 352 683
Zapytaj o ofertę
::DODATKOWE INFORMACJE
Prąd: na działce
Gaz: w ulicy
Woda: w ulicy
Dojazd: asfalt
Otoczenie: działki zabudowane
Kanalizacja: w ulicy
Komunikacja publ.: autobus
Odległość do komunikacji publicznej [m]: 10
Odległość od centrum [m]: 2000
Odl. do sklepu [m]: 750
Odl. do szkoły [m]: 4000
Odl. do przedszkola [m]: 600
Wymiary działki [m]: 54x21 m
Zagosp. działki: niezagospodarowana
Ukształtowanie działki: płaska
Kształt działki: prostokąt
Ogrodzenie działki: częściowo ogrodzona
Warunki zabudowy: prawomocne pozwolenie na budowę
Zabudowa działki: brak
Grunt utwardzany: TAK
::LINK DO STRONY
https://sadurscy.pl/offer/BS5-GS-300443
Zobacz Wirtualny Spacer: https://panoramy.galactica.pl/virgo/447589
::KONTAKT DO AGENTA
Marek Wawrzeń
+48 798-352-683
Zapytaj o ofertę
::DANE BIURA
Oddział BS5, Nowa Huta
Bracia Sadurscy Dariusz Sadurski
Os. Kazimierzowskie 36
31-844 Kraków
12 265 10 29
Pośrednik odpowiedzialny zawodowo za wykonanie umowy pośrednictwa: Marek Wawrzeń (licencja nr: 26458)