ZDJĘCIA W OGŁOSZENIU NALEŻĄ DO WŁAŚCICIELA OFERTY
ULICA TYNIECKA - REJON ZAKRZÓWKA / oferta również dla inwestora /
Oferujemy do sprzedaży dom w zabudowie bliźniaczej o pow. około 280 m2 / budynek nie posiada wspólnych elementów konstrukcyjnych z budynkiem sąsiednim /.
Z uwagi na planowaną rozbudowę i nadbudowę, dla budynku przeprowadzono ocenę stanu technicznego konstrukcji i elementów budynku z uwzględnieniem stanu podłoża gruntowego. Ocena jest pozytywna.
Budynek został wzniesiony metodą tradycyjną, z pustaków z wieńcem żelbetowym. Fundamenty stanowią ławy żelbetowe gr. 40 cm i szerokości 70 cm pod ścianami zewnętrznymi i 80 cm pod ścianami wewnętrznymi nośnymi. Ściany zewnętrzne murowane, gr. 40 cm, ściany wewnętrzne 25 cm. Stropy żelbetowe, płytowe gr. 12 cm.
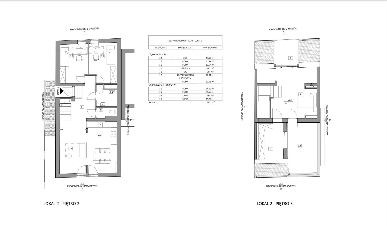
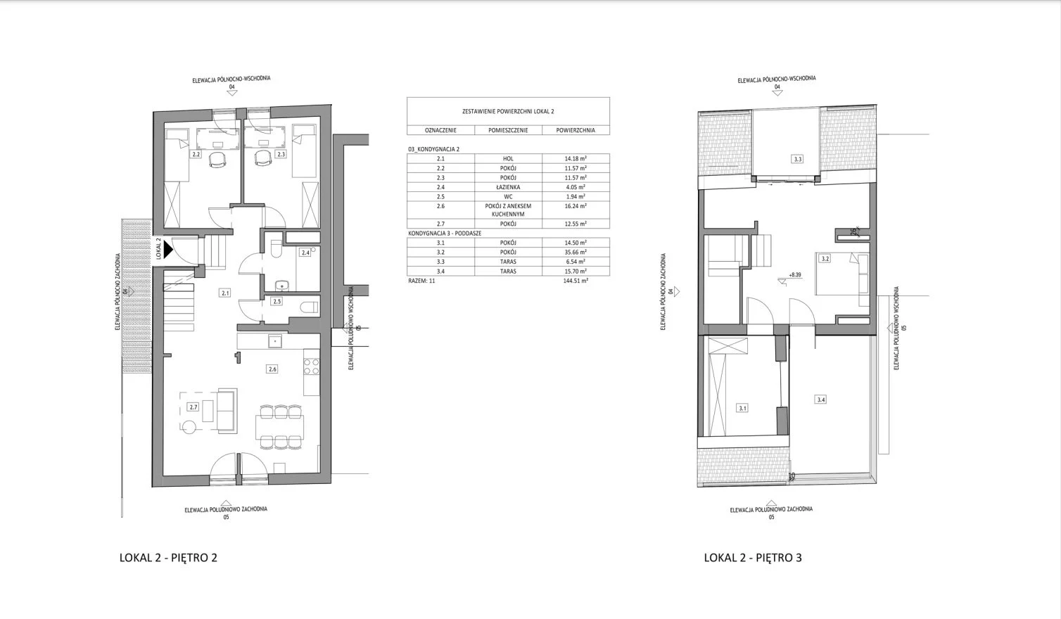
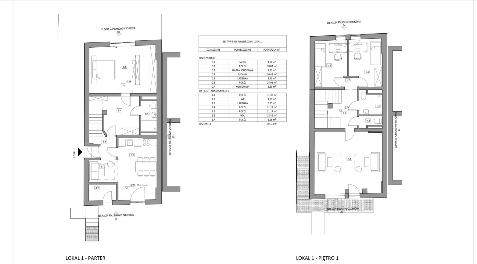
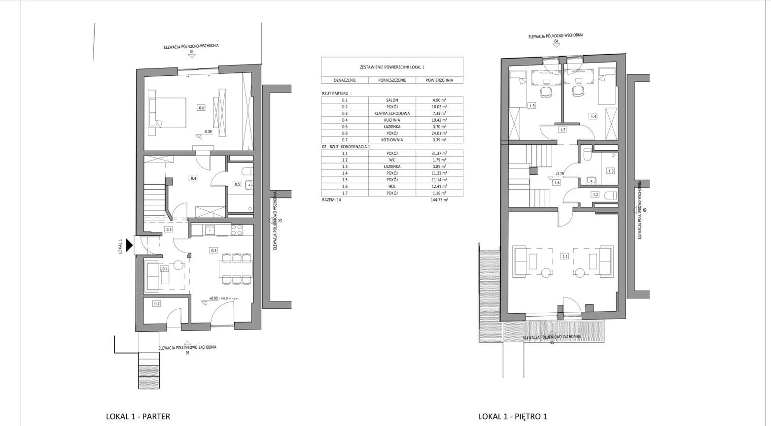
Posiadamy koncepcję architektoniczną przebudowy i rozbudowy budynku, której realizacja pozwoli na uzyskanie 4 mieszkań o pow. po 80 m2 lub 8 po 37 m2. Likwidacja istniejących widokowych tarasów pozwoli uzyskać dodatkowo mieszkania o pow. około 80 m2.
Na terenie posesji znajduje się również parterowy dom z lat 50-tych o pow. około 140 m2, z garażem, którego nadbudowa pozwoli uzyskać dwa kolejne mieszkania o pow. około 95 i 55 m2.
Doskonała lokalizacja, do przystanku autobusowego linii 112 / dojazd do Ronda Grunwaldzkiego / 203 / dojazd do pętli autobusowej i tramwajowej przy Czerwonych Makach / 30 m. Z górnych kondygnacji przepiękny widok na zakole Wisły, Las Bielańsko Tyniecki, Klasztor Kamedułów. Wokół tereny rekreacyjne, m. innymi ścieżka rowerowa do Tyńca, baseny na Zakrzówku. Bardzo blisko do Kampusu UJ oraz szeregu firm o profilu IT położonych na Ruczaju.
Prezentacja nieruchomości po podpisaniu umowy pośrednictwa jest bezpłatna.
Kontakt : Adam +48 510 131 177
Zapytaj o ofertę
::DODATKOWE INFORMACJE
Prąd: w budynku
Gaz: tak - miejski
Woda: jest
Dojazd: asfalt
Otoczenie: działki zabudowane
Ogrzewanie: gazowe
Kanalizacja: w ulicy
Komunikacja publ.: autobus miejski
Okna: PCV
Instalacje: niewymienione
Balkon: mały
Wymiary działki [m]: 10 x 50
Zagosp. działki: zagospodarowana
Ukształtowanie działki: płaska
Kształt działki: prostokąt
Rodzaj domu: bliźniak
Stan wybudowania: Pod klucz
Typ elewacji: tynk zwykły
Podst. materiał budowlany: beton, pustak
Pokrycie dachu: dachówka
Stan budynku: do remontu
Podpiwniczenie: nie
Garaż: garaż
Ogrodzenie działki: siatka
Rok budowy: 1991
Liczba pokoi: 9
Wysokość pomieszczeń [m]: 2,5000
Liczba sypialni: 4
Podłogi pokoi: panele
Ściany pokoi: zwykłe
::LINK DO STRONY
https://sadurscy.pl/offer/BS1-DS-309523
::KONTAKT DO AGENTA
Adam Kubala
+48 510-131-177
Zapytaj o ofertę
::DANE BIURA
Oddział BS1, Kapelanka
Kapelanka 1A/1
30-347 Kraków
12 429-25-12