Sprzedam dom w Janówku Drugim gmina Jabłonna.
Budynek o powierzchni użytkowej 233.00 m2 (powierzchnia całkowita 253.52m2) oraz niezależny, dwustanowiskowy, murowany garaż położone na działce o powierzchni 1500 m2.
Budynek oddany do użytkowania.
Budynek w stanie deweloperskim, wybudowany z dwóch warstw cegły ceramicznej, pomiędzy cegłami oraz na zewnątrz warstwa styropianu, wykonane tynki i posadzki, okna plastikowe w kolorze dąb rustykalny, drzwi zewnętrzne drewniane, elewacja w kolorze beżowym, na dachu blachodachówka w kolorze ceglastym, dach ocieplony wełną mineralną.
W budynku rozprowadzona instalacje elektryczna, wodociągowo-kanalizacyjna, C.O. oraz instalacja przygotowana do podłączenia paneli solarnych. Budynek posiada własne ujęcie wody ze studni głębinowej i własne szambo, natomiast w tej chwili trwają prace przyłączeniowe wody i kanalizacji w ulicy, wkrótce będzie można przyłączyć budynek do mediów gminnych.
W budynku zamontowane drewniane drzwi z przeszkleniem oraz kamienne parapety.
Na parterze kuchnia z oknem od ulicy, przestronny salon z wyjściem na taras wyłożony kostką oraz aneks kominkowy, duży gabinet z dwoma oknami, łazienka z oknem, wyłożona glazurą i terakotą, wykonany odpływ do prysznica i stelaż podtynkowy do miski wc, duży wiatrołap i kotłownia.
Parter:
- wiatrołap: 5.50 m2
- kuchnia z jadalnią: 30.90 m2
- pokój dzienny: 31.30 m2
- aneks kominkowy: 12.60 m2
- pokój: 18.00 m2
- łazienka: 4.4 m2
- kotłownia: 4.5 m2
- hall + ½ klatka schodowa: 17.60 m2 + 3.50 m2
Razem parter: 128.30 m2
Na piętrze pięć ustawnych, dobrze doświetlonych sypialni, w tym jedna z dużym balkonem wyłożonym płytkami, duża, widna łazienka z dwoma oknami, wykonaną glazurą i terakotą, miejscem na dużą wannę lub jacuzzi oraz miskę wc i bidet.
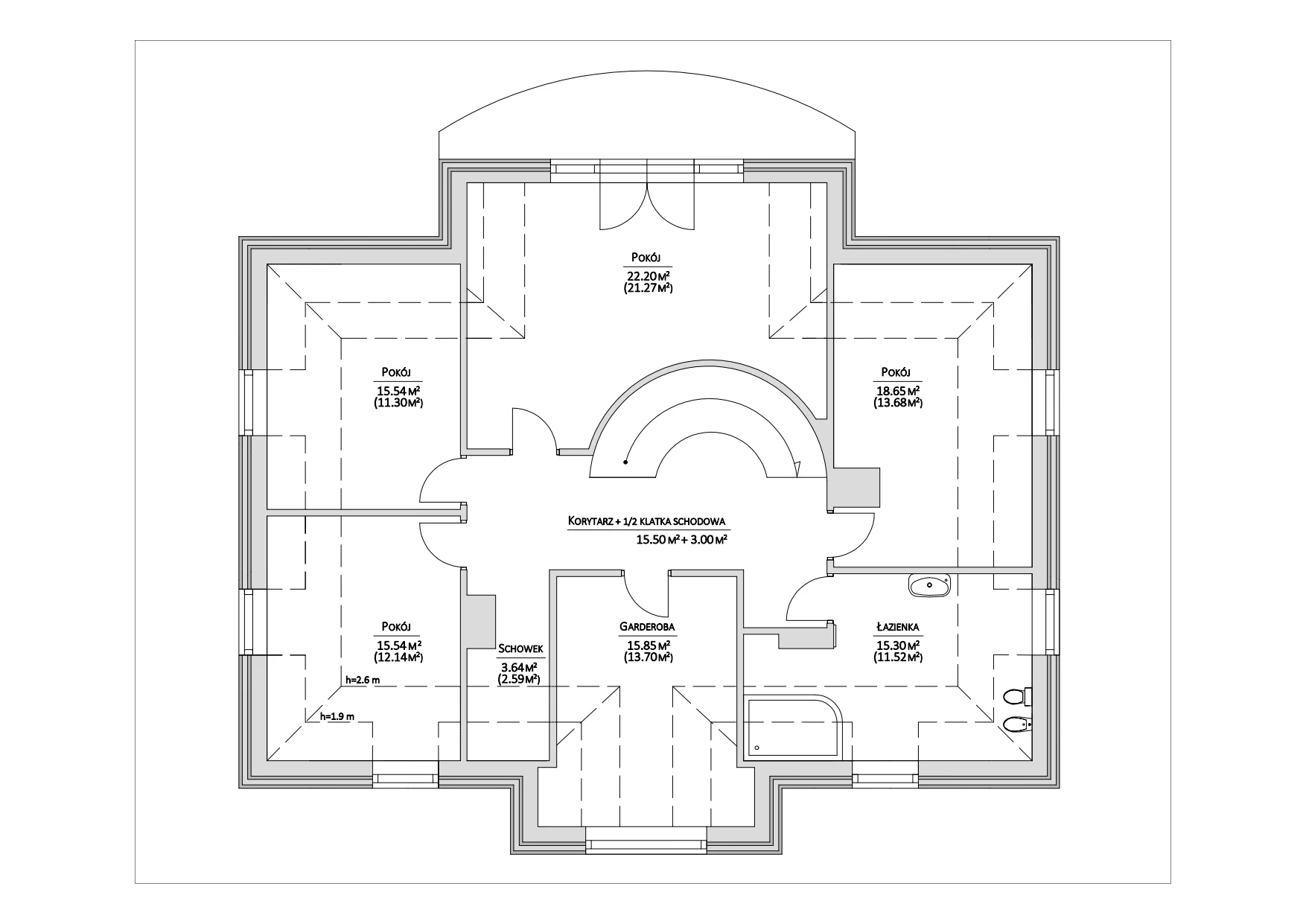
Poddasze:
- pokój: 15.54 m2 (12.14 m2)
- pokój: 15.54 m2 (11.30 m2)
- pokój: 22.20 m2 (21.27 m2)
- pokój: 18.65 m2 (13.68 m2)
- garderoba: 15.85 m2 (13.70 m2)
- łazienka: 15.30 m2 (11.52 m2)
- schowek: 3.64 m2 (2.59 m2)
- korytarz + ½ klatka schodowa: 15.50 m2 + 3.00 m2
Razem poddasze: 125.22 m2 (104.70 m2)
Powierzchnia użytkowa budynku 233.00 m2, powierzchnia całkowita 253.52 m2.
Cicha i spokojna, zielona okolica, blisko las, stacja PKP w odległości ok. 1500 m, blisko do trasy Warszawa – Nowy Dwór Mazowiecki.