Domy jednorodzinne pod Krakowem
Bracia Sadurscy to oficjalny przedstawiciel handlowy dewelopera - kupując z nami nie płacisz prowizji i ukrytych kosztów.
Prezentuję Państwu ofertę nowoczesnych i funkcjonalnych domów położonych na działkach od 300 m2 do 710 m2. Osiedle składa się z 19 domów wolnostojących o powierzchni użytkowej 104,24 m2, w miejscowości Przeginia Duchowna.
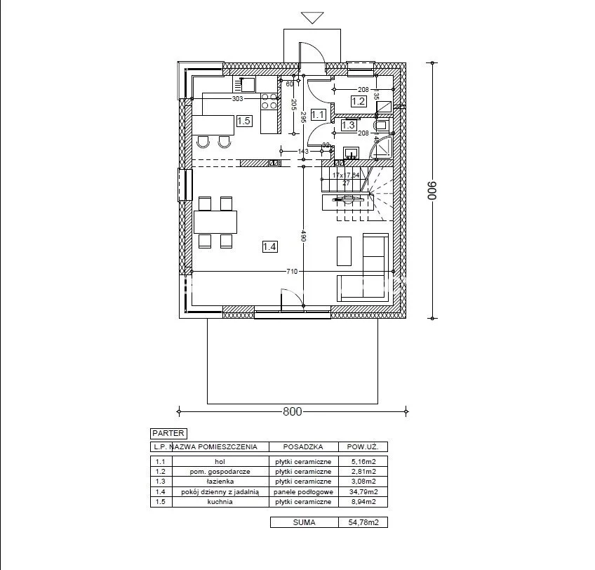
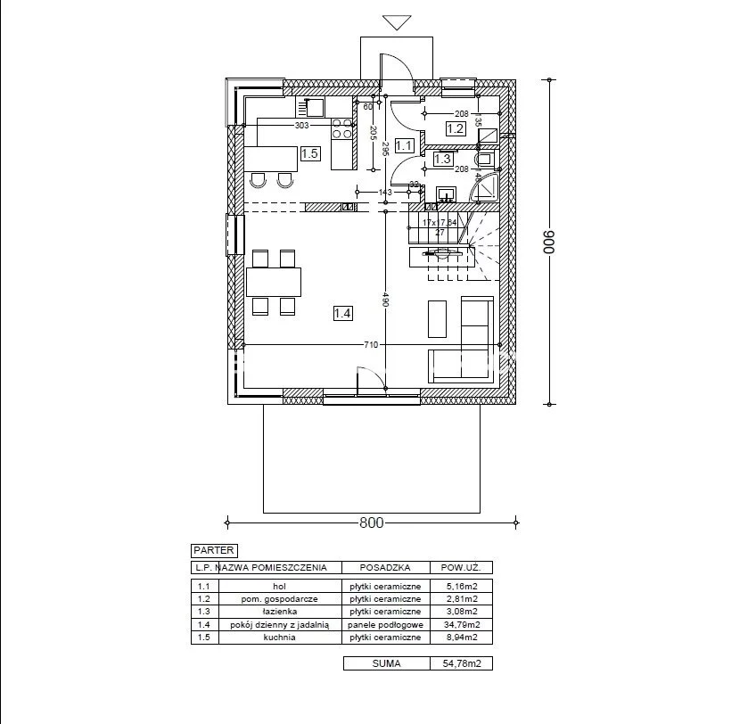
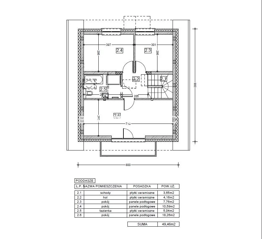
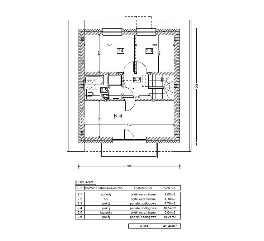
Rozkład domu:
Parter
1. Hol - 5,16 m2
2. Pomieszczenie gospodarcze - 2, 81 m2
3. Łazienka - 3,08 m2
4. Pokój dzienny z jadalnią - 34,79 m2
5. Kuchnia - 8,94
Poddasze
1. Schody - 3,65 m2
2. Hol - 4,16 m2
3. Pokój - 7,76 m2
4. Pokój - 10,59 m2
5. Pokój - 18,26 m2
6. Łazienka - 5,04 m2
Osiedle usytuowane jest w otoczeniu zieleni, lasów, a jednocześnie w miejscu dobrze skomunikowanym z miastem. W pobliżu przystanek autobusowy, tereny rekreacyjne, placówki edukacyjne ( dwie szkoły podstawowe, przedszkola ), stacja benzynowa, sklepy, ośrodek zdrowia.
Termin zakończenia budowy w stanie deweloperskim grudzień 2024r.
Stan deweloperski:
- budynek wykonany technologią tradycyjną: ściany nośne - POROTHERM 25 cm, ścianki działowe - pustak ceramiczny POROTHERM 11,5 cm
- elewacja: ocieplenie - styropian 20 cm + tynk akrylowy
- fundamenty betonowe z hydroizolacją i ociepleniem 15 cm
- pokrycie: dachówka ceramiczna, okna dachowe FAKRO, rynny PCV
- podbitka dachu drewniana
- kominy wykonane systemem
- okna plastik w kolorze
- drzwi wejściowe ocieplane
- podłogi: wylewki i izolacje
- ściany: tynki maszynowo-gipsowe
- poddasze ocieplone: wełna 30 cm, konstrukcja metalowa, płyty gipsowo-kartonowe
- zamontowane schody strychowe
- barierki metalowe na balkonach
- parapety wewnętrzne: kamień naturalny
- przyłącz prądu, wody, kanalizacji i gazu wraz z wykonanymi instalacjami w budynku
- wentylacja mechaniczna
- wykonana instalacja antenowa
- kocioł z zamkniętą komorą spalania
- ogrzewanie podłogowe
- zamontowany zestaw podtynkowy GEBERIT
- alarm z powiadomieniem jednostki interwencyjnej
- budynek oddany do użytkowania - ODBIÓR TECHNICZNY
- bez drzwi wewnętrznych, podłóg, szpachlowania, malowania, białego montażu
- podjazd oraz opaski wokół budynku wyłożone kostką brukową
- działka ogrodzona powlekaną siatką
- brama wjazdowa i furtka
- taras z widokiem na ogród wyłożony kostką brukową
- teren wokół budynku wstępnie uporządkowany i zniwelowany
- okolica spokojna, przewaga terenów zielonych
Zdjęcia poglądowe z innej lokalizacji.
W celu uzyskania bliższych informacji zapraszam do kontaktu:
Maria Śmiech
Tel: +48 500-673-615
E-mail:
Zapytaj o ofertę
::DODATKOWE INFORMACJE
Kategoria oferty: Pewny Partner, Mieszkania dla rodzin z dziećmi
Prąd: jest
Gaz: jest
Woda: jest
Dojazd: kostka brukowa
Otoczenie: panorama
Ogrzewanie: podłogowe
Kanalizacja: tak
Komunikacja publ.: bus, autobus podmiejski
Okna: PCV
Instalacje: ELEKTRYCZNA, WODNA, GAZOWA
Balkon: jest
Liczba balkonów: 1
Tarasy: taras duży
Liczba tarasów: 1
Zagosp. działki: częściowo zagospodarowana
Ukształtowanie działki: płaska
Kształt działki: prostokąt
Rodzaj domu: jednorodzinny
Stan wybudowania: Stan deweloperski
Typ elewacji: styropian + klej
Pokrycie dachu: dachówka cementowa
Powierzchnia użytkowa [m2]: 104,2400
Stan budynku: do wykończenia
Ogrodzenie działki: siatka w ramach
Rok budowy: 2024
Liczba pokoi: 4
Liczba sypialni: 3
Powierzchnia pokoi [m2]: 34,79 ; 18,26 ; 10,59 ; 7,76 ;
Podłogi pokoi: wylewka betonowa
Ściany pokoi: tynk gipsowy
Wystawa okien - pokoje : Wsch, Zach, Pn, Pd
Typ kuchni: jasna z oknem
Rodzaj kuchni: kuchnia jasna, osobno
Powierzchnia kuchni [m2]: 8,94
Podłoga kuchni: wylewka betonowa
Wystawa okien - kuchnia: Wsch, Zach, Pn, Pd
Liczba łazienek: 2
Powierzchnia łazienki [m2]: 5,04 ;3,08
Podłoga łazienki: wylewka
Ściany łazienki: tynk gipsowy
Liczba przedpokoi: 2
Powierzchnia przedpokoi [m2]: 5,16 ; 4,16
Podłoga przedpokoi: wylewka betonowa
Ściany przedpokoi: tynk gipsowy
::LINK DO STRONY
https://sadurscy.pl/offer/BS2-DS-299882
::KONTAKT DO AGENTA
Maria Śmiech
+48 500-673-615
Zapytaj o ofertę
::DANE BIURA
Oddział BS2, Rynek Pierwotny
Przewóz 47
30-081 Kraków
12 630-90-45
--------------------------
::GRATIS | Nasza prowizja zawiera: koszt przedwstępnej notarialnej umowy sprzedaży nieruchomości z rynku wtórnego.
::GWARANCJA | Gwarancja zwrotu zadatku. Więcej informacji na sadurscy.pl/zwrot-zadatku/
Oferta wysłana z systemu Galactica Virgo