Dom wolnostojący w Inwałdzie - nowoczesna stodoła z antresolą
Oferujemy do sprzedaży wyjątkowy, energooszczędny dom wolnostojący w Inwałdzie, powiat wadowicki - w wyjątkowym miejscu, które łączy w sobie urok małej, wypoczynkowej miejscowości z bogatą ofertą rozrywkową i edukacyjną.
Ta nowoczesna nieruchomość, zaprojektowana w stylu stodoły z antresolą, łączy w sobie komfort, funkcjonalność i ekologiczne rozwiązania.
Dom zbudowany w stylu nowoczesnej stodoły z antresolą o powierzchni 145,16 m² ( powierzchnia użytkowa: 125,89 m² ) posadowiony na działce o powierzchni 18,04 a , w ramach wyjątkowej inwestycji, która docelowo obejmie 12 domów jednorodzinnych o nowoczesnym i minimalistycznym designie.
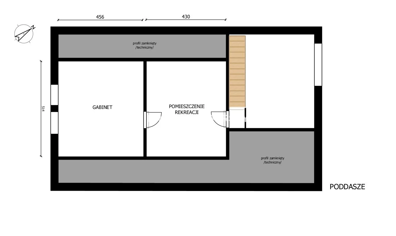
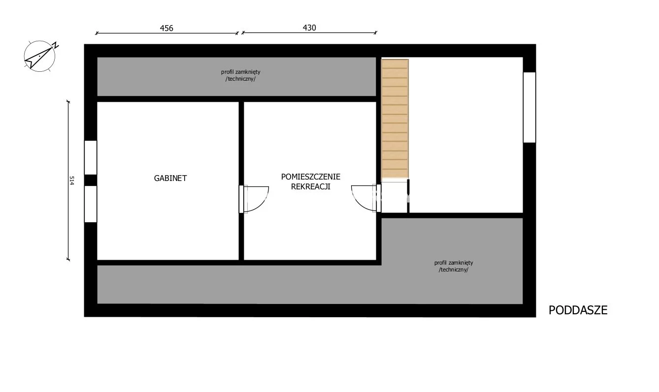
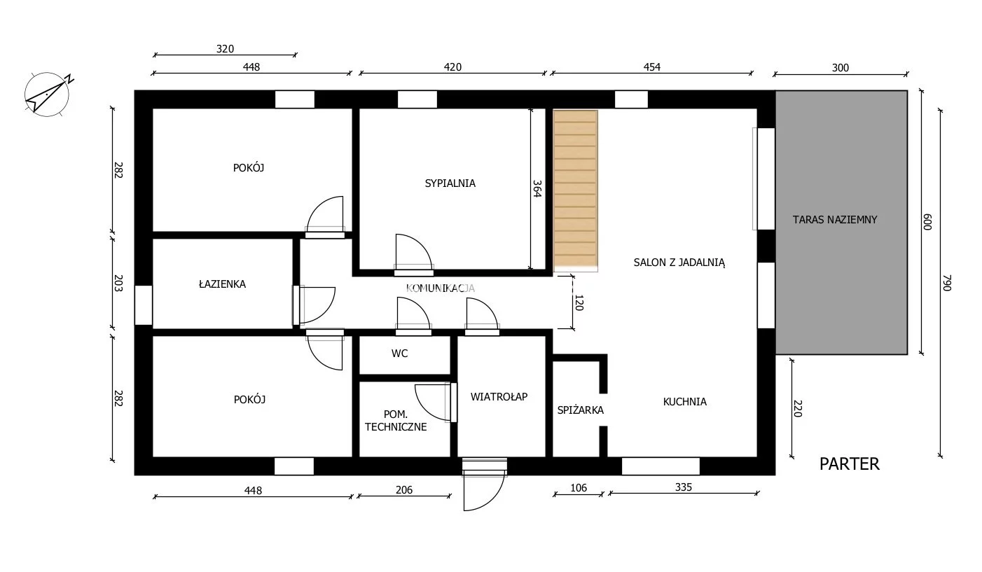
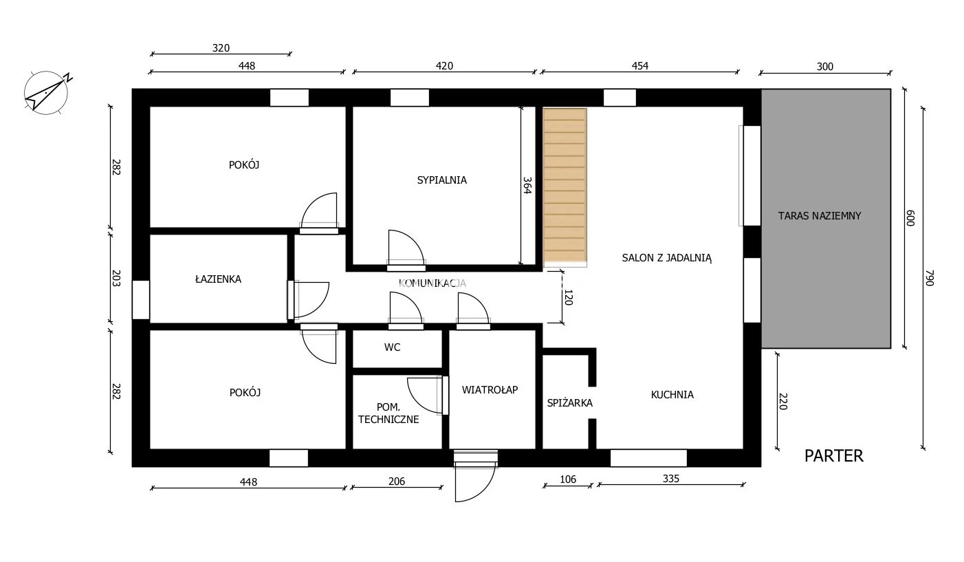
ROZKŁAD POMIESZCZEŃ
Dom oferuje przestronny układ z dużą strefą dzienną i elastyczną aranżacją poddasza .
Na parterze znajdują się:
salon z jadalnią (20,58 m²)
kuchnia (9,76 m²) ze spiżarką (2,31 m²)
trzy pokoje (12,43 m², 12,43 m², 15,04 m²)
dwie łazienki (1,83 m², 6,39 m²)
pomieszczenie techniczne, wiatrołap i komunikacja
taras naziemny (18,00 m²)
Poddasze obejmuje pomieszczenie rekreacyjne (13,67 m²) i gabinet (14,49 m²).
OPIS TECHNICZNY, MEDIA I INSTALACJE
Budynek wybudowany w stanie deweloperskim wyróżnia się wysoką jakością materiałów i wykonania oferując:
energooszczędne rozwiązania: fotowoltaika (5,18 kWp), rekuperacja
ogrzewanie: elektryczne folie grzewcze (z opcją zmiany na wodne ogrzewanie podłogowe, zasilane pompą ciepła)
stolarka okienna: Aluplast ID 8000 z ciepłym montażem
rolety zewnętrzne podtynkowe z silnikami radiowymi (parter)
pełne instalacje: elektryczna, TV, internet, wodno-kanalizacyjna
zagospodarowanie terenu (ogrodzenie panelowe z 3 stron (bez frontu, bramy i furtki) oraz utwardzony podjazd
DOJAZD I NAJBLIŻSZA OKOLICA
Osiedle położone jest w cichej, m alowniczej okolicy z widokiem na okoliczne wzgórza . W pobliżu znajdują się liczne udogodnienia:
sklepy - 550 m
trzy przedszkola - do 3 km
dwa baseny (otwarty i kryty) - 3,4 km
Inwałd Park - kompleks 5 parków tematycznych, który zapewnia rozrywkę przez cały rok - 3 km
galeria handlowa - 4,8 km
stok narciarski - 11 km
Inwałd znajduje się w malowniczym województwie małopolskim, niedaleko takich miejsc jak Wadowice - rodzinne miasto Jana Pawła II, Kraków - historyczna stolica Polski czy K alwaria Zebrzydowska - znane sanktuarium.
Zamieszkanie w Inwałdzie to wybór spokojnego życia w otoczeniu natury, z jednoczesnym dostępem do niezwykłych atrakcji i możliwości rozwoju. To idealne miejsce dla rodzin z dziećmi , miłośników historii i przyrody oraz osób ceniących sobie połączenie spokoju małej miejscowości z bliskością dużych ośrodków miejskich.
TERMIN DOSTĘPNOŚCI
od zaraz
KUPUJĄCY NIE PŁACI PROWIZJI
BUDYNEK BEZCZYNSZOWY
Biuro pomaga bezpiecznie przeprowadzić transakcję
Szczegóły oferty:
798 352 683
Zapytaj o ofertę
::DODATKOWE INFORMACJE
Prąd: jest
Gaz: brak
Woda: tak - miejska
Dojazd: asfaltowa/kostka
Otoczenie: zabudowa jednorodzinna
Ogrzewanie: elektryczne
Kanalizacja: szambo
Nadaje się na biuro: TAK
Komunikacja publ.: bus
Odl. do sklepu [m]: 550
Odl. do szkoły [m]: 1800
Odl. do przedszkola [m]: 1800
Okna: PCV 3 szyby, ciepły montaż
Instalacje: nowe
Tarasy: taras duży
Liczba tarasów: 1
Powierzchnia balkonów/tarasów [m2]: 18
Zagosp. działki: częściowo zagospodarowana
Ukształtowanie działki: płaska
Kształt działki: prostokąt
Rodzaj domu: wolnostojący
Stan wybudowania: Stan deweloperski
Typ elewacji: baranek
Pokrycie dachu: dachówka betonowa
Powierzchnia użytkowa [m2]: 125,8900
Stan budynku: do wykończenia
Ogrodzenie działki: częściowo ogrodzona
Rok budowy: 2025
Liczba pokoi: 5
Wysokość pomieszczeń [m]: 2,7000
Liczba sypialni: 1
Powierzchnia pokoi [m2]: 20, 15, 14, 12, 12
Podłogi pokoi: wylewka
Ściany pokoi: gładzie gipsowe
Wystawa okien - pokoje : Zach, Wsch, Pd, Pn
Typ kuchni: kuchnia z jadalnią z wyjściem na taras
Rodzaj kuchni: aneks kuchenny połączony z jadalnią i salonem
Powierzchnia kuchni [m2]: 12
Podłoga kuchni: wylewka
Wystawa okien - kuchnia: Wsch, Pn
Typ łazienki: razem z wc
Liczba łazienek: 1
Powierzchnia łazienki [m2]: 6,5
Podłoga łazienki: wylewka
Ściany łazienki: tynk
Wystawa okien - łazienka : Pd
Liczba WC: 1
Powierzchnia WC: 1,8
Podłoga WC: wylewka
Ściany WC: tynk gipsowy
Liczba przedpokoi: 2
Powierzchnia przedpokoi [m2]: 8, 5
Podłoga przedpokoi: wylewka
Ściany przedpokoi: tynk gipsowy
::LINK DO STRONY
https://sadurscy.pl/offer/BS5-DS-306574
Zobacz Wirtualny Spacer: https://sb360.online/r6uary
::KONTAKT DO AGENTA
Marek Wawrzeń
+48 798-352-683
Zapytaj o ofertę
::DANE BIURA
Oddział BS5, Nowa Huta
Bracia Sadurscy Dariusz Sadurski
Os. Kazimierzowskie 36
31-844 Kraków
12 265 10 29
Pośrednik odpowiedzialny zawodowo za wykonanie umowy pośrednictwa: Marek Wawrzeń (licencja nr: 26458)