Nowoczesne Domy na Klinach w Krakowie!
Kameralne osiedle, gdzie nowoczesny design harmonijnie łączy się z funkcjonalnością i komfortem życia. To idealna propozycja dla osób ceniących spokojne otoczenie, prywatność oraz dogodny dostęp do miejskich udogodnień .
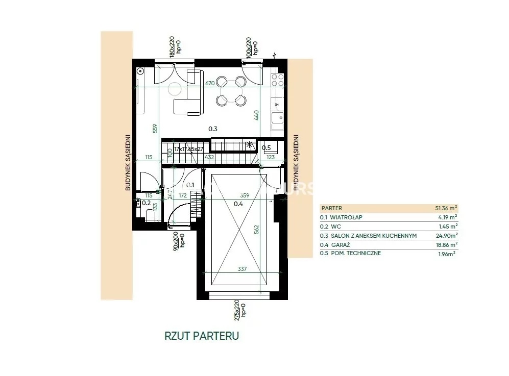
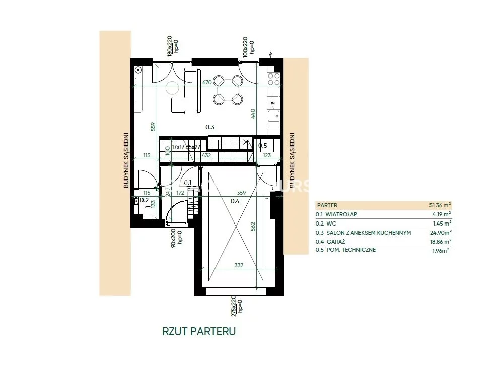
14 przestronnych domów w zabudowie szeregowej o powierzchni ok. 139 m² .
Garaż w bryle budynku oraz dodatkowe miejsce postojowe na zewnątrz.
Działki o powierzchni od 170 do 508 m² - idealne na ogród lub strefę relaksu.
Ogrzewanie podłogowe w całym budynku .
Rolety zewnętrzne sterowane elektrycznie z poziomu smart home.
Lokalizacja:
7,8 km do centrum
9 min. spacerem do przystanku autobusowego
Istotne punkty w okolicy inwestycji:
Przystanek autobusowy (663 m, 9 minut spacerem)
Harmonogram budowy:
Rozpoczęcie prac: marzec 2025
Planowane zakończenie: lipiec 2026
Umowy przenoszące własność: IV kwartał 2026
Nowoczesność i komfort
Prywatność i przestrzeń
Doskonała lokalizacja na krakowskich Klinach
Zamieszkaj w wyjątkowym miejscu!
Skontaktuj się z nami i dowiedz się więcej o inwestycji!
Marek Popiela
T: +48 518-967-677
::DODATKOWE INFORMACJE
Kategoria oferty: Mieszkania dla rodzin z dziećmi
Plac zabaw: TAK
Prąd: jest
Gaz: brak
Woda: ciepła - miejska
Dojazd: ASFALTOWA
Otoczenie: osiedle
Ogrzewanie: C.O. GAZOWE
Kanalizacja: miejska
Alarm: TAK
Internet: TAK
Komunikacja publ.: MPK, tramwaj, autobus
Teren ogrodzony: TAK
Opłaty wg liczników: prąd, gaz
Okna: PCV
Instalacje: nowe
Tarasy: taras
Liczba tarasów: 1
Rodzaj domu: bliźniak
Stan wybudowania: Stan deweloperski
Typ elewacji: styropian
Stan budynku: do wykończenia
Podpiwniczenie: nie
Garaż: garaż
Rok budowy: 2026
Liczba pokoi: 5
Liczba sypialni: 3
Podłogi pokoi: wylewka
Ściany pokoi: zwykłe
::LINK DO STRONY
https://sadurscy.pl/offer/BS2-DS-307844
::KONTAKT DO AGENTA
Marek Popiela
+48 518-967-677
Zapytaj o ofertę
::DANE BIURA
Oddział BS2, Rynek Pierwotny
Przewóz 47
30-081 Kraków
12 630-90-45
--------------------------
::GRATIS | Nasza prowizja zawiera: koszt przedwstępnej notarialnej umowy sprzedaży nieruchomości z rynku wtórnego.
::GWARANCJA | Gwarancja zwrotu zadatku. Więcej informacji na sadurscy.pl/zwrot-zadatku/
Oferta wysłana z systemu Galactica Virgo