OGŁOSZENIE BEZPOŚREDNIE - BEZ PROWIZJI
Na sprzedaż przestronny dom jednorodzinny w stanie deweloperskim z pięknymi widokami!
Zapraszam do zapoznania się z ofertą sprzedaż domu jednorodzinnego o pow. całkowitej 180 m2, pow. użytkowej 130 m2 zlokalizowanego na działce 10 arowej w miejscowości Rupniów, gmina Limanowa, pokój dzienny z kuchnia, 5 sypialni wraz z garderobami, dwie łazienki i toaleta.
Kupujący nieruchomość nie ponosi kosztów prowizji.
Posiadasz nieruchomość na sprzedaż? – zapraszam do współpracy!
Prezentacja możliwa 7 dni w tygodniu.
Informacje zawarte w ogłoszeniu:
1) Główne informacje
2) Dostęp do drogi
3) Media
4) Opis działki
5) Opis domu
6) Opis okolicy
1) Główne informacje:
- dom w stanie deweloperskim, 130 m2 pow. użytkowej, 180 m2 pow. całkowitej (po podłogach)
- pokój dzienny z kuchnią, 5 sypialni wraz z garderobami, dwie łazienki i toaleta.
- działka o powierzchni 998 m² (10 arów)
- rok budowy 2023
- ogrzewanie podłogowe
- prąd, wodociąg gminny, gaz w drodze, szambo
- malownicza miejscowość, działka widokowa, nasłoneczniona
- 10 km Limanowa, 43 Kraków
- 2 km szkoła, sklep
- 6 km nowoprojektowany przystanek PKP Kraków – Nowy Sącz – Zakopane
- możliwość dokupienia kolejnej działki i powiększenie ogrodu
- bez prowizji dla biura, prezentacja możliwa 7 dni w tygodniu, również wieczorami – zadzwoń, napisz i umów spotkanie, zapoznaj się dokumentami domu na miejscu!
2) Dostęp do drogi.
Przedmiotowa działka ma zapewniony dostęp do drogi publicznej poprzez drogę gminną asfaltową. Wjazd na przedmiotową działkę przez drogę prywatną ok 20 m (udział w drodze), utwardzony.
3) Media.
Dom posiada przyłącz energii elektrycznej, przyłącze wodociągowe, szambo, przyłącze gazowe – do realizacji (na działce sąsiedniej)
4) Opis działki.
Przedmiotowa nieruchomość jest zlokalizowana na terenie miejscowości Rupniów, gmina Limanowa, powiat limanowski, województwo małopolskie. Działka o numerze ewidencyjnym 552/2 (identyfikator działki na geoportalu 120707_2.0015.552/2), ma powierzchnie 998 m2 (10 arów) i kształt zbliżony do prostokąta o wymiarach ok 21 x 50 metrów. Działka została wyplantowana, obejście domu prezentuje się jako teren płaski, ogród lekko nachylony. Teren luźno zabudowany domami jednorodzinnymi, z wszystkich okien rozciąga się panoramiczny widok. Istnieje możliwość dokupienia kolejnej działki ok 12 arów i powiększenie ogrodu.
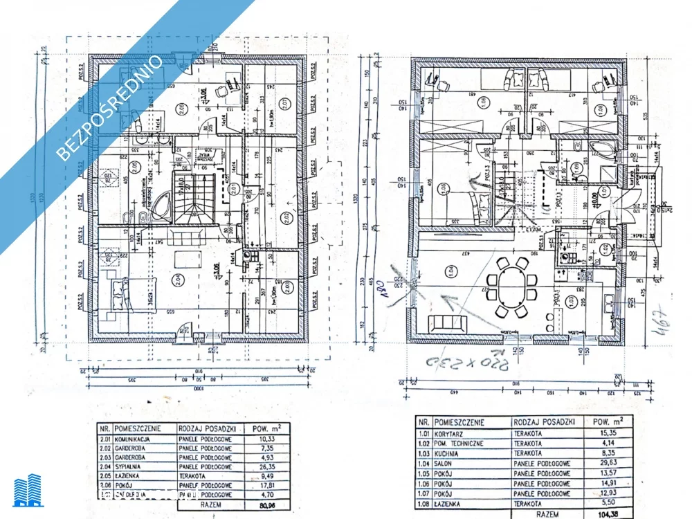
5) Opis domu.
Dom w stanie deweloperskim, 130 m2 pow. użytkowej, 180 m2 pow. całkowitej (po podłogach), z 2023 roku, dwukondygnacyjny (poddasze użytkowe), murowany z pustaka ceramicznego na ławach fundamentowych, niepodpiwniczony. Okna PCV 3 szyby, dach z dachówki, ocieplenie styropian grafitowy 22 cm, ogrzewanie podłogowe
Na parterze znajduję się:
- wiatrołap
- salon z kuchnią
- sypialnia 1
- sypialnia 2
- łazienka nr 1
- toaleta
- kotłownia
Na piętrze znajduje się:
- sypialnia nr 3
- sypialnia nr 4
- sypialnia nr 5 osobną z garderobą
- garderoba
- łazienka nr 2
6) Opis lokalizacji.
Rupniów to miejsce, w którym naprawdę da się odetchnąć. Żyjesz w górach — wychodzisz za próg i od razu możesz iść na spacer w Beskid Wyspowy, wskoczyć na rower, pobiegać czy wybrać się na grzyby. To region z duszą, w którym codzienność łączy się z naturą. Jednocześnie nie jest to odludzie — do szkoły i sklepów masz zaledwie kilka minut, a Limanowa, gdzie załatwisz wszystkie sprawy, leży tylko 10 km dalej.
W okolicy znajdziesz wiele szlaków PTTK i wyciąg Kasina Ski, Termy Gorce, więc weekend bez planu raczej się tu nie zdarza. W niedalekim Tymbarku powstaje nowy przystanek kolejowy na trasie Kraków–Nowy Sącz — dzięki temu wkrótce łatwiej będzie wyskoczyć do miasta czy odwiedzić znajomych.
Rupniów wyróżnia się spośród innych miejscowości w Beskidzie Wyspowym — widoki naprawdę potrafią zatrzymać człowieka w miejscu. To okolica, w której życie płynie spokojnie, a każdy dzień zaczyna się od gór w tle. Idealna równowaga między naturą a wygodą.
(A jeśli ktoś mówi, że nie da się mieć wszystkiego — nie był jeszcze w Rupniowie)
Odległości:
najbliższy sklep spożywczy, szkoła, – 1,9 km
Kraków – 43 km
Limanowa – 10 km
Zapraszam do kontaktu.
W razie jakichkolwiek pytań jestem do dyspozycji.
Posiadasz nieruchomość na sprzedaż? – zapraszam do współpracy!
Prezentacja możliwa 7 dni w tygodniu.
Kupujący nie ponosi kosztów prowizji
Damian Wydra
Agent nieruchomości
tel. 660 735 235
Powyższy opis oferty sporządzany jest na podstawie oględzin nieruchomości oraz informacji uzyskanych od właściciela, może podlegać aktualizacji i nie stanowi oferty określonej w art. 66 i następnych K.C.
Ogłoszenie dodane do wielu portali nieruchomości przez portal www.odwlasciciela.pl