Dom w Przezmarku – gmina Stary Dzierzgoń - usytuowany na 700-metrowej działce, na której – oprócz domu – znajduje się także prawdziwy raj dla majsterkowicza: 23-metrowy budynek gospodarczy.
Przezmark to niezwykle urokliwa miejscowość. W jej centrum znajduje się zamek krzyżacki z XIV-wieczną warownią, malowniczo położoną na półwyspie między jeziorami Motława Wielka i Motława Mała. Obecnie zamek jest w rękach prywatnych, jednak właściciel chętnie oprowadza i opowiada jego historię.
Sam dom przeszedł kapitalny remont – odświeżono kuchnię z salonem, wymieniono wszystkie drzwi wewnętrzne, a łazienka została całkowicie odnowiona (nowe płytki i biały montaż). Pokoje zostały całościowo wykończone i odświeżone. Dodatkowo wykonano elewację w stylu mazurskim, która nadaje budynkowi wyjątkowego charakteru. Z jednego z pokoi prowadzi wyjście na drewniany taras – to kameralna przestrzeń, gdzie w ciszy poranka można usiąść z filiżanką kawy, wsłuchując się w śpiew ptaków i cieszyć się prywatnością otoczenia.
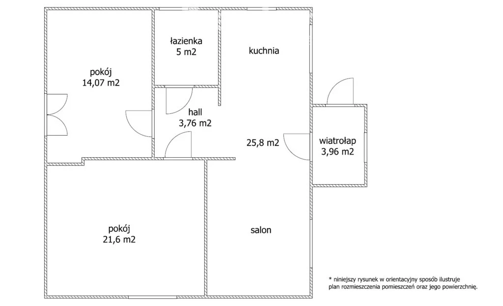
Parter:
- kuchnia z salonem
- przedpokój
- pokój
- łazienka
- sypialnia z wyjściem na taras
Poddasze kryje duży potencjał – można urządzić tam przestrzeń typu open space lub podzielić ją na co najmniej dwa pokoje, w tym jeden z balkonem.
Dom jest częściowo podpiwniczony – znajduje się tam piec C.O. na pelet.
Nieruchomość położona na obrzeżu wsi, w otoczeniu lasów i jezior (do najbliższego 300 m), to doskonała propozycja dla miłośników aktywnego wypoczynku oraz osób szukających harmonii z naturą, ciszy i piękna przyrody.
Świadectwo charakterystyki energetycznej - zapotrzebowanie na energię: EU - użytkową (kWh/m2*rok): 197.14; EK - końcową (kWh/m2*rok): 418.90; EP - nieodnawialną energię pierwotną (kWh/m2*rok): 88.16; EC02 - Wielkość emisji CO2 (t C02/m2*rok): 0.00; UOZE - Udział odnawialnych źródeł energii w zapotrzebowaniu na energię końcową [%]: 99.55;
"Właścicielem ogłoszenia wraz z jego elementami jest Freedom Nieruchomości Sp. z o.o. lub podmioty współpracujące. Wszelkie prawa zastrzeżone. Kopiowanie, rozpowszechnianie oraz korzystanie z niniejszych materiałów w jakikolwiek inny sposób wykraczający poza dozwolony użytek określony przepisami ustawy z 4 lutego 1994 r. o prawie autorskim i prawach pokrewnych (Dz. U. 1994, nr 24 poz. 83 z późn. zm.) bez pisemnej zgody Freedom Nieruchomości Sp. z o.o. lub podmiotów współpracujących jest zabronione i może stanowić podstawę odpowiedzialności cywilnej oraz karnej.
Ponadto niniejsze materiały stanowią tajemnicę przedsiębiorstwa Freedom Nieruchomości Sp. z o.o. lub podmiotów współpracujących w rozumieniu ustawy z dnia 16 kwietnia 1993 r. o zwalczaniu nieuczciwej konkurencji (Dz. U. z 2003 r., Nr 153, poz. 1503 z późn. zm.). Niniejsze ogłoszenie nie stanowi oferty w rozumieniu Kodeksu Cywilnego, lecz ma charakter informacyjny."
Oferta wysłana z programu dla biur nieruchomości ASARI CRM (asaricrm.com)