Bochnia, Śródmieście, ul. Poniatowskiego, kamienica z 2 mieszkaniami, lokalem użytkowym i zapleczem gospodarczym na działce o pow. 1020 m 2 .
Nieruchomość położona bezpośrednio na przeciw dworca kolejowego w Bochni.
Na terenie działki znajduje się kamienica z 1920 r., 2-kondygnacyjna, częściowo podpiwniczona i strychem, z dobudowanymi zabudowaniami gospodarczymi (usługowymi) oraz wolnostojący garaż murowany.
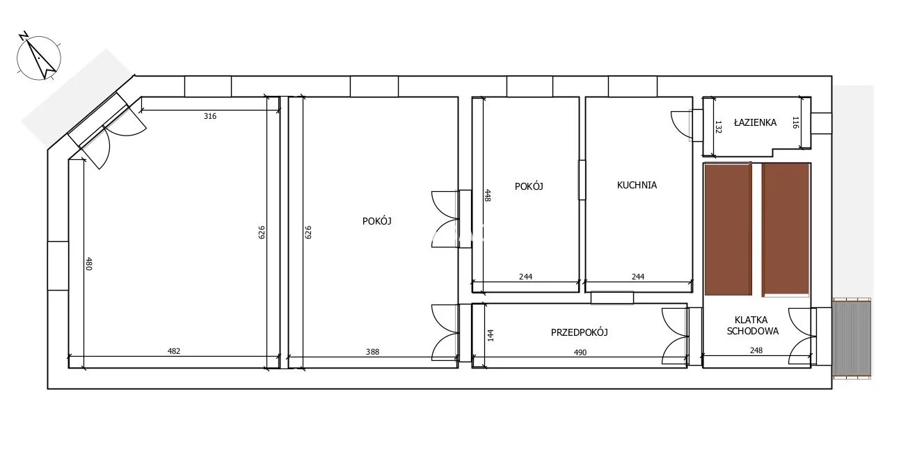
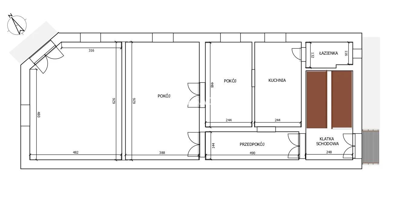
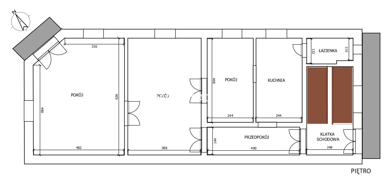
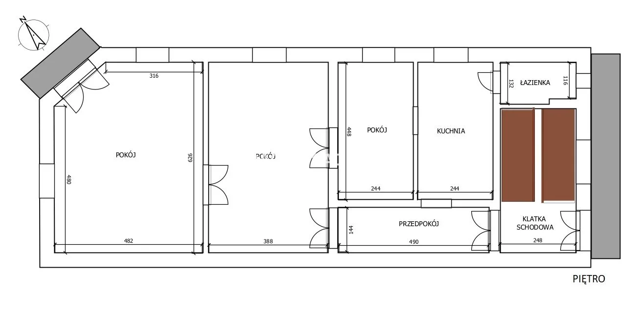
Powierzchnia pierwotnej kamienicy wynosi ok. 240 m 2 , w tym pow. piwnicy ok. 44 m 2 oraz 2 kondygnacje o pow. łącznej ok. 196 m 2 . Na parterze o łącznej pow. ok. 98 m 2 znajduje się mieszkanie 2 pokojowe z osobną kuchnią, łazienka i przedpokojem o pow. ok. 58 m 2 oraz wydzielony lokal użytkowy z odrębnym wejściem, użytkowany dotychczas jako lokal gastronomiczny o pow. ok. 28 m 2 , pierwotnie stanowiący 3 pokój. Na 1 piętrze znajdują się 3 pokojowe mieszkanie z osobną kuchnią, łazienką i przedpokojem o pow. użytkowej ok. 86 m 2 . Wysokość pomieszczeń - 3,3 m.
Każde z mieszkań opomiarowane osobno. W mieszkaniach ogrzewanie centralne z pieca gazowego dwufunkcyjnego, odrębnego dla każdego mieszkania. Woda i kanalizacja z sieci miejskiej. Budynek wybudowany z cegły, stropy między kondygnacyjne belkowe drewniane, nad piwnicą strop Kleina, okna drewniane, dwuszybowe, nowego typu, podłogi w pokojach z deski drewnianej. Wejście do mieszkań wspólną klatką schodową oraz dodatkowe, drugie wejście na poziomie parteru.
W bryle budynku, na poziomie parteru znajdują się 2 pomieszczenia gospodarczo-usługowe o pow. ok. 66 m 2 i ok. 25 m 2 . Lokal o pow. 66 m 2 wykorzystywany jako zaplecze gastronomiczne. Dodatkowo na terenie działki znajduje się garaż murowany o pow. ok. 30 m 2 .
Kamienica poza dotychczasową funkcją mieszkalną, ze względu na położenie i parametry, idealna do prowadzenia szeroko pojętej działalności gospodarczej (gastronomia, biura, hostel, gabinety itp.).
Kamienica objęta ochrona konserwatorską.
Teren nieruchomości objęty jest miejscowym planem zagospodarowania przestrzennego obszaru "Śródmieście" o oznaczeniu 1.US.1 - teren usług sportu i rekreacji o brzmieniu:
W granicach terenu wyznaczonego, poza przeznaczeniem podstawowym dopuszcza się: 1) lokalizację obiektów usługowo-handlowych (obsługi turystyki, informacji turystycznej, gastronomii, handlu detalicznego pamiątkami, artykułami codziennego użytku), 2) realizację zaplecza szatniowo-gospodarczego, 3) remont, odbudowę, rozbudowę, przebudowę i nadbudowę istniejącej zabudowy pod warunkiem zachowania zasad zagospodarowania terenu i kształtowania zabudowy jak dla obiektów nowo realizowanych, 4) realizację urządzeń terenowych i obiektów małej architektury, 5) realizację zieleni urządzonej - zieleńce, skwery, 6) realizację ciągów pieszych i ścieżek rowerowych.
W granicach terenu wyznaczonego, ustala się następujące warunki zagospodarowania terenu i kształtowania zabudowy: 1) maksymalny wskaźnik zabudowy - 50%, 2) dopuszcza się zagospodarowanie terenu co najwyżej trzema inwestycjami, 3) wysokość budynków szatniowo-gospodarczych - do 4,5 m, 4) wysokość pozostałych budynków - do 15 m, 5) obowiązek realizacji w ramach inwestycji ogólnodostępnego placu, 6) zachować minimum 20% powierzchni biologicznie czynnej, 7) obowiązek zabezpieczenia w obrębie terenu miejsc parkingowych jak dla obiektów usługowych zgodnie z § 4 ust. 8 pkt 8 uchwały, 6) zachować warunki § 4 ust. 6 pkt 1 wynikające z położenia w strefie ochrony konserwatorskiej B
Szczegóły oferty:
+48 502 104 545
::DODATKOWE INFORMACJE
Prąd: jest
Gaz: tak - miejski
Woda: piec gazowy dwufunkcyjny
Dojazd: asfalt
Otoczenie: centrum miasta
Ogrzewanie: piec dwufunkcyjny
Kanalizacja: miejska
Komunikacja publ.: bus, autobus miejski, PKS, autobus
Możliwość parkowania: tak
Liczba wejść: 2
Podłogi: deski
Położenie obiektu: centrum
Teren ogrodzony: TAK
Pow. całk. budynku [m2]: 300
Pow. całk. handlowa [m2]: 240
Okna: częściowo wymienione
Instalacje: dobre
Balkon: jest
Liczba balkonów: 2
Ukształtowanie działki: płaska
Rodzaj domu: kamienica wolnostojąca
Typ elewacji: klinkier
Podst. materiał budowlany: cegła
Pokrycie dachu: blacha
Powierzchnia użytkowa [m2]: 196
Stan budynku: do remontu
Podpiwniczenie: częściowo podpiwniczony
Garaż: wolnostojący
Ogrodzenie działki: ogrodzona
Rok budowy: 1920
Liczba pokoi: 6
Wysokość pomieszczeń [m]: 3,3000
Powierzchnia pokoi [m2]: 28,90; 28,90; 24,30; 24,30; 11,65; 11,65
Podłogi pokoi: deska drewniana
Ściany pokoi: zwykłe, malowane
Wystawa okien - pokoje : Pn-Wsch, Pn-Zach
Typ kuchni: oddzielna
Rodzaj kuchni: kuchnia jasna, osobno
Powierzchnia kuchni [m2]: 11,65; 11,65
Podłoga kuchni: panele podłogowe
Wystawa okien - kuchnia: Pn-Wsch
Typ łazienki: razem z wc
Liczba łazienek: 2
Powierzchnia łazienki [m2]: 2,76; 2,76
Glazura łazienki: starszego typu
Podłoga łazienki: terakota
Ściany łazienki: zwykłe, malowane, glazura
Wystawa okien - łazienka : Pd-Wsch
Liczba przedpokoi: 2
Podłoga przedpokoi: deska drewniana
Ściany przedpokoi: zwykłe, malowane, boazeria
::LINK DO STRONY
https://sadurscy.pl/offer/BS5-DS-301630
Zobacz Wirtualny Spacer: https://sb360.online/oiuyl5
::KONTAKT DO AGENTA
Dariusz Kornaś
+48 502-104-545
Zapytaj o ofertę
::DANE BIURA
Oddział BS5, Nowa Huta
Bracia Sadurscy Dariusz Sadurski
Os. Kazimierzowskie 36
31-844 Kraków
12 265 10 29
Pośrednik odpowiedzialny zawodowo za wykonanie umowy pośrednictwa: Dariusz Sadurski (licencja nr: 803)