Szanowni Państwo,
Mam przyjemność zaprezentować nową prestiżową inwestycję w Krakowie, w dzielnicy Wola Justowska.
Jest to oferta, która może zainteresować osoby stawiające na pierwszym miejscu komfort i prywatność.
Lokalizacja zapewnia wygodną komunikację, bliskość centrum miasta, jednocześnie pozwala poczuć przestrzeń i bliskość natury.
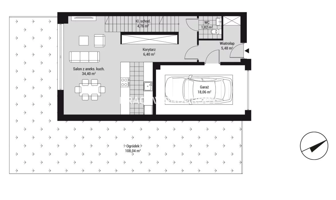
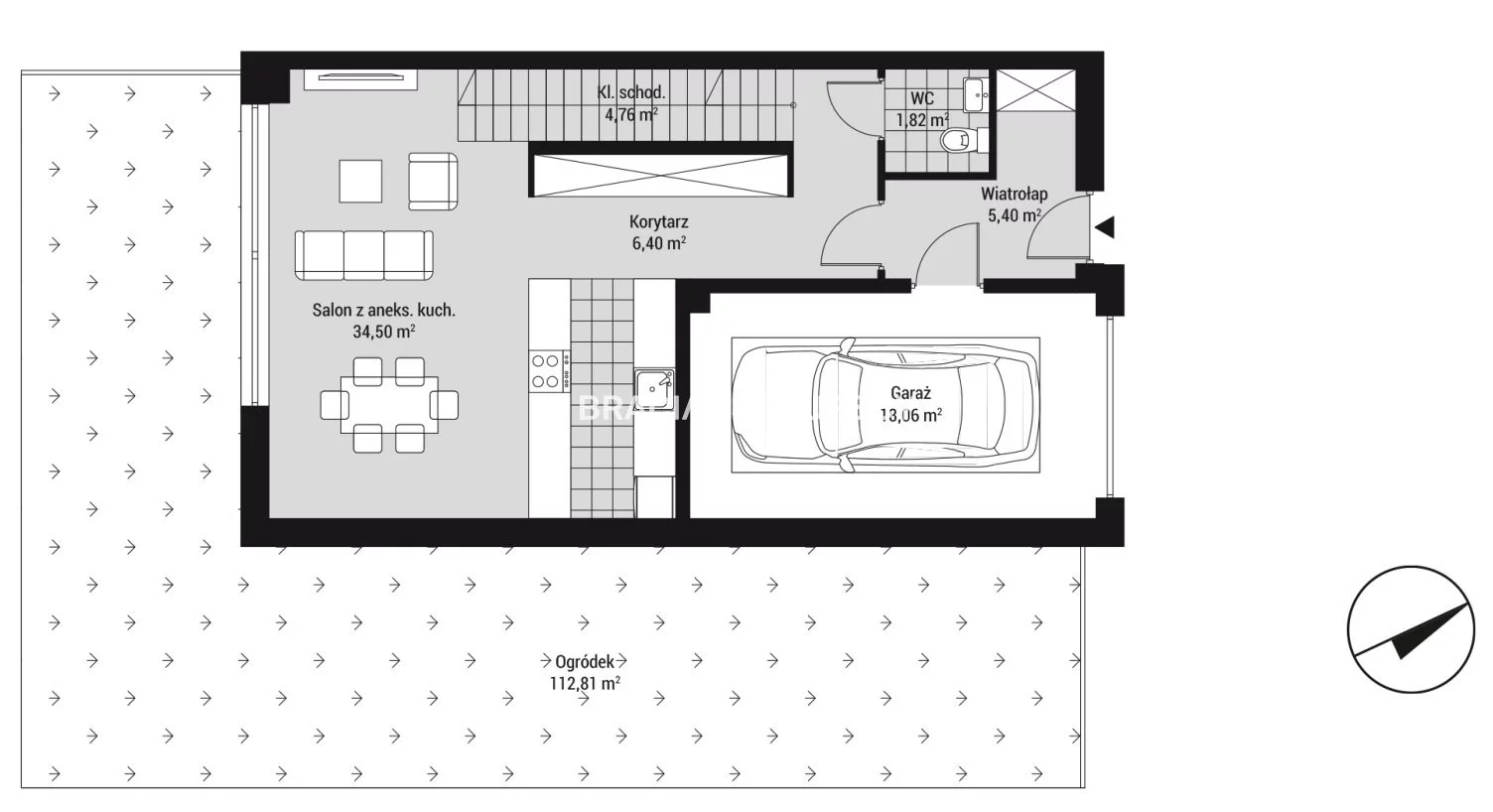
Cała inwestycja składa się z 16 apartamentów (pow. 52 do 90 m2), 2 wille (pow. 116 i 130 m2) oraz 16 domów w zabudowie bliźniaczej (pow. 124 m2).
Aby zapewnić integrację z naturą, przewidziano dla mieszkańców wyjątkowe przestrzenie do odpoczynku, zaczynając od zielonych dziedzińców i ogrodów, kończąc na zielonych tarasach i przestronnych balkonach.
Inwestycja jest tak architektonicznie rozplanowana, by zapewnić mieszkańcom najwyższy poziom komfortu, bezpieczeństwa i prywatności.
Lokalizacja:
Park Decjusza - 15 minut spacerkiem, Las Wolski 9 minut, Rynek Główny 12 minut samochodem, Krakowskie Błonia 12 minut samochodem. W sąsiedztwie niska zabudowa willowa oraz liczne punkty handlowo-usługowe.
Termin zakończenia budowy: IV kwartał 2023 r.
Osoby zainteresowane, serdecznie zapraszam do kontaktu.
Barbara Nazarewicz
+48 515 634 552
Zapytaj o ofertę
::DODATKOWE INFORMACJE
Kategoria oferty: Pewny Partner, Mieszkania dla rodzin z dziećmi
Rodzaj budynku: apartamentowiec
Dozór budynku: brak
Głośność: ciche
Gaz: jest
Woda: jest
Dojazd: asfalt
Otoczenie: zabudowa jednorodzinna
Ogrzewanie: C.O. GAZOWE
Linie telefoniczne: TAK
Alarm: TAK
Internet: TAK
Komunikacja publ.: MPK, autobus
Rozkład: rozkładowe
Usytuowanie: jednostronne
Teren ogrodzony: TAK
Opłaty w czynszu: -
Stan lokalu: deweloperski
Okna: PCV
Instalacje: ELEKTRYCZNA, GAZOWA, TELEFONICZNA, INTERNETOWA
Balkon: taras
Liczba balkonów: 1
Tarasy: taras
Zagosp. działki: zagospodarowana
Ukształtowanie działki: płaska
Kształt działki: prostokąt
Rodzaj domu: bliźniak
Stan wybudowania: Stan deweloperski
Typ elewacji: tynk szlachetny
Podst. materiał budowlany: pustak
Pokrycie dachu: inne
Stan budynku: do wykończenia
Podpiwniczenie: nie
Garaż: garaż
Ogrodzenie działki: częściowo ogrodzona
Rok budowy: 2023
Liczba pokoi: 4
Liczba sypialni: 3
Podłogi pokoi: wylewka
Ściany pokoi: zwykłe
Typ kuchni: aneks kuchenny - połączony z salonem
Rodzaj kuchni: aneks kuchenny
Podłoga kuchni: wylewka
Typ łazienki: razem z wc
Liczba łazienek: 2
Glazura łazienki: bez glazury
Podłoga łazienki: wylewka
Ściany łazienki: zwykłe
Liczba WC: 1
Powierzchnia WC: 1,82
Glazura WC: bez glazury
Podłoga WC: wylewka
Ściany WC: zwykłe
Liczba przedpokoi: 1
Podłoga przedpokoi: wylewka
Ściany przedpokoi: zwykłe
::LINK DO STRONY
https://sadurscy.pl/offer/BS2-DS-282689
::KONTAKT DO AGENTA
Barbara Nazarewicz
+48 515-634-552
Zapytaj o ofertę
::DANE BIURA
Oddział BS2, Rynek Pierwotny
Przewóz 47
30-081 Kraków
12 630-90-45
--------------------------
::GRATIS | Nasza prowizja zawiera: koszt przedwstępnej notarialnej umowy sprzedaży nieruchomości z rynku wtórnego.
::GWARANCJA | Gwarancja zwrotu zadatku. Więcej informacji na sadurscy.pl/zwrot-zadatku/
Oferta wysłana z systemu Galactica Virgo