Na sprzedaż przestronne lokale mieszkalne z ogrodem w stanie deweloperskim o powierzchni całkowitej ok 118 mkw, znajdujące się w nowoczesnym budynku w zabudowie bliźniaczej w Redzie.
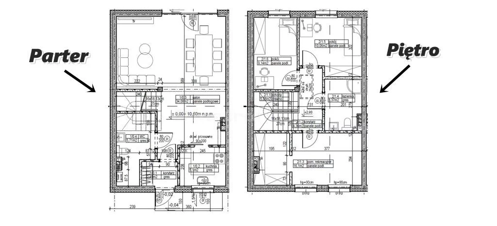
Na parterze znajduje się: przestronny pokój dzienny z wyjściem na taras 34,08 mkw, kuchnia 5,1 mkw, WC 5,71 mkw, korytarz 2,48 mkw.
Na pierwszym piętrze znajdują się: 3 sypialnie w tym 1 z garderobą( 16 mkw, 10 mkw, 9,14 mkw), łazienka 4,36mkw, korytarz 4,36 mkw.
Na poddaszu przestrzeń ok 21 mkw.
Standard wykończenia:
Ściany i sufity zostały wyszpachlowanie, zagruntowane i pomalowane na biało co ułatwia dalsze prace aranżacyjne.
Podłogi: wylewka betonowa gotowa pod panele, parkiet lub płytki
Okna: trzyszybowe, PVC
Instalacje: Elektryczna wyprowadzone punkty do podłączenia oświetlenia i gniazdek
Wodno-kanalizacyjna doprowadzone przyłącza do łazienki i kuchni
Ogrzewanie podłogowe
Wentylacja grawitacyjna
Miejsce postojowe przy budynku
Zakup domu w stanie deweloperskim ma wiele zalet, szczególnie dla osób, które chcą dostosować wnętrze do własnych potrzeb i gustu.
Oto kluczowe atuty takiej inwestycji:
Personalizacja wnętrza według własnych potrzeb i stylu
Energooszczędne technologie nowoczesne ocieplenie, szczelne okna, efektywne ogrzewanie
Nowe instalacje (elektryczna, wodno-kanalizacyjna, grzewcza), co minimalizuje ryzyko usterek
Brak konieczności ponoszenia kosztów demontażu starych elementów wyposażenia
Nowoczesne normy budowlane zapewniają lepszą izolację termiczną i akustyczną
Dom w stanie deweloperskim to świetne rozwiązanie dla osób, które chcą nowoczesnego, energooszczędnego i dostosowanego do własnych potrzeb miejsca do życia.
Reda to dynamicznie rozwijające się miasto w województwie pomorskim, które oferuje doskonałe warunki do życia i inwestowania. Położone w bliskim sąsiedztwie Trójmiasta, stanowi atrakcyjne miejsce zarówno dla rodzin, jak i osób szukających spokojnej okolicy z dobrym dostępem do aglomeracji.
Doskonała lokalizacja i komunikacja:
Bliskość Trójmiasta szybki dojazd do Gdyni, Sopotu i Gdańska
Dogodny dostęp do drogi ekspresowej S6 i obwodnicy Trójmiasta
Kolej Metropolitalna (SKM) zapewniająca szybki transport publiczny
Aquapark Reda jeden z najnowocześniejszych parków wodnych w Polsce
Malownicze tereny zielone i ścieżki rowerowe
Bliskość Zatoki Puckiej i Morza Bałtyckiego świetne warunki do uprawiania sportów wodnych
Miejsce łączące zalety życia w mniejszym mieście z bliskością dużej metropolii
Coraz większe inwestycje w infrastrukturę i przestrzeń publiczną
Reda to świetny wybór dla osób szukających komfortowego miejsca do zamieszkania w pobliżu Trójmiasta, z dostępem do pełnej infrastruktury i bliskością natury.
Możliwość obejrzenia lokalu mieszkalnego po wcześniejszym umówieniu terminu.
Cena od 720 000 zł.
Czy wiesz, że możemy przygotować dla Ciebie prezentację on-line nieruchomości? Skontaktuj się z naszym Agentem i zapytaj o szczegóły.
Pomimo, iż Doradcy Metrohouse przykładają szczególną staranność do rzetelnego prezentowania informacji o nieruchomości, nie zawsze jest możliwa weryfikacja wszystkich danych przekazanych od osób trzecich. Niniejsza prezentacja oferty nie jest ofertą w rozumieniu Kodeksu Cywilnego i ma charakter wyłącznie informacyjny.