NOWE DOMY WOLNOSTOJĄCE GM. NIEPOŁOMICE
STAN SUROWY OTWARTY.
Prezentowana inwestycja to dom położony w miejscowości Wola Batorska w gm. Niepołomice. Nieruchomość o powierzchni całkowitej 216,48 m2 (powierzchnia użytkowa wynosi 193,37 m2). Dom parterowy z użytkowym poddaszem. Położony jest na działce 1000 m2.
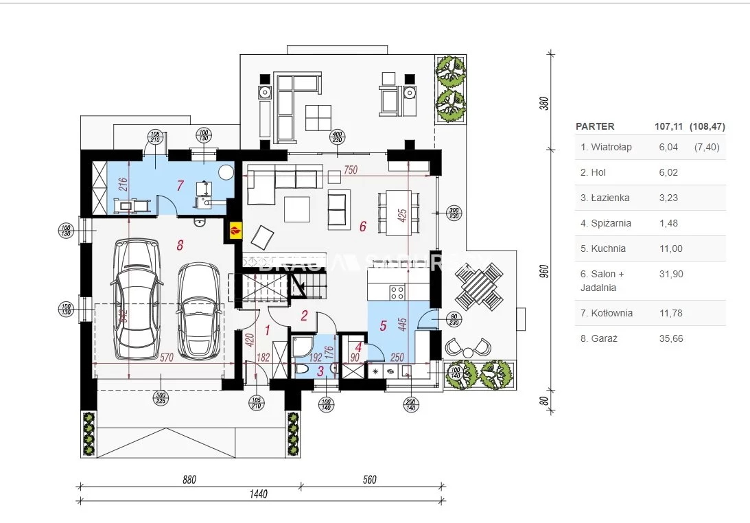
Parter składa się z wiatrołapu, łazienki, spiżarni, kuchni, salonu z jadalnią, kotłowni i garażu. Na poddaszu znajdują się cztery sypialnie, pralnia, garderoba, łazienka.
Dom budowany do stanu surowego otwartego z możliwością doprowadzenia do stanu deweloperskiego. Media na działce: prąd, gaz, kanalizacja.
Cicha, spokojna miejscowość, sąsiedztwo zabudowy jednorodzinnej i zielonych terenów. W okolicy znajduje się przystanek (bus i autobus), sklepy, szkoła, stacja paliw, centrum handlowe. Do granicy Krakowa ok. 5 km.
Dom budowany według projektu firmy ARCHON "Dom Aurorach 7 G2"
Możliwość zakupu w stanie surowym zamkniętym w cenie 1.080.000 zł lub doprowadzenie do stanu deweloperskiego w cenie 1.380.000 zł.
Polecam serdecznie i zapraszam do kontaktu:
Marek Popiela
+48 518 967 677
Zapytaj o ofertę
pl
::DODATKOWE INFORMACJE
Kategoria oferty: Mieszkania dla rodzin z dziećmi
Prąd: na działce
Gaz: jest
Woda: jest
Dojazd: asfalt
Otoczenie: zabudowa jednorodzinna
Ogrzewanie: inne
Kanalizacja: tak
Linie telefoniczne: TAK
Komunikacja publ.: bus, autobus
Instalacje: brak
Balkon: jest
Liczba balkonów: 1
Tarasy: taras
Liczba tarasów: 1
Zagosp. działki: niezagospodarowana
Ukształtowanie działki: płaska
Kształt działki: nieregularny
Rodzaj domu: wolnostojący
Stan wybudowania: Stan surowy otwarty
Typ elewacji: brak
Podst. materiał budowlany: pustak ceramiczny
Pokrycie dachu: dachówka ceramiczna
Powierzchnia użytkowa [m2]: 193,3700
Stan budynku: do wykończenia
Podpiwniczenie: nie
Garaż: na jeden samochód
Ogrodzenie działki: brak
Rok budowy: 2026
Liczba pokoi: 5
Liczba sypialni: 4
Powierzchnia pokoi [m2]: 11,7; 12,26; 15,43; 11,71
Podłogi pokoi: inne
Ściany pokoi: inne
Typ kuchni: aneks kuchenny
Rodzaj kuchni: aneks kuchenny połączony z jadalnią i salonem
Podłoga kuchni: inne
Typ łazienki: razem z wc
Liczba łazienek: 2
Powierzchnia łazienki [m2]: 7,2; 3,23
Glazura łazienki: bez glazury
Podłoga łazienki: inne
Ściany łazienki: inne
Liczba przedpokoi: 1
Podłoga przedpokoi: inne
Ściany przedpokoi: inne
::LINK DO STRONY
https://sadurscy.pl/offer/BS2-DS-300073
::KONTAKT DO AGENTA
Marek Popiela
+48 518-967-677
Zapytaj o ofertę
::DANE BIURA
Oddział BS2, Rynek Pierwotny
Przewóz 47
30-081 Kraków
12 630-90-45
--------------------------
::GRATIS | Nasza prowizja zawiera: koszt przedwstępnej notarialnej umowy sprzedaży nieruchomości z rynku wtórnego.
::GWARANCJA | Gwarancja zwrotu zadatku. Więcej informacji na sadurscy.pl/zwrot-zadatku/
Oferta wysłana z systemu Galactica Virgo