Oferta i zakup prosto od Dewelopera.
Istnieje możliwość obejrzenia w tygodniu jak również w sobotę lub niedzielę po wcześniejszym umówieniu telefonicznym.
Osiedle Nowoczesnych segmentów w super lokalizacji bliskich Marek.
W okolicy sklepy typu Biedronka, Netto, Orlen.
5 min do szkoły.
W segmencie wszędzie położone ogrzewanie podłogowe + dodatkowe wyprowadzenia do kaloryferów)
Wyprowadzenia do zamontowania 2 klimatyzatorów.
Dodatkowo na parterze możliwość zamontowania kominka (wstawiony komin)
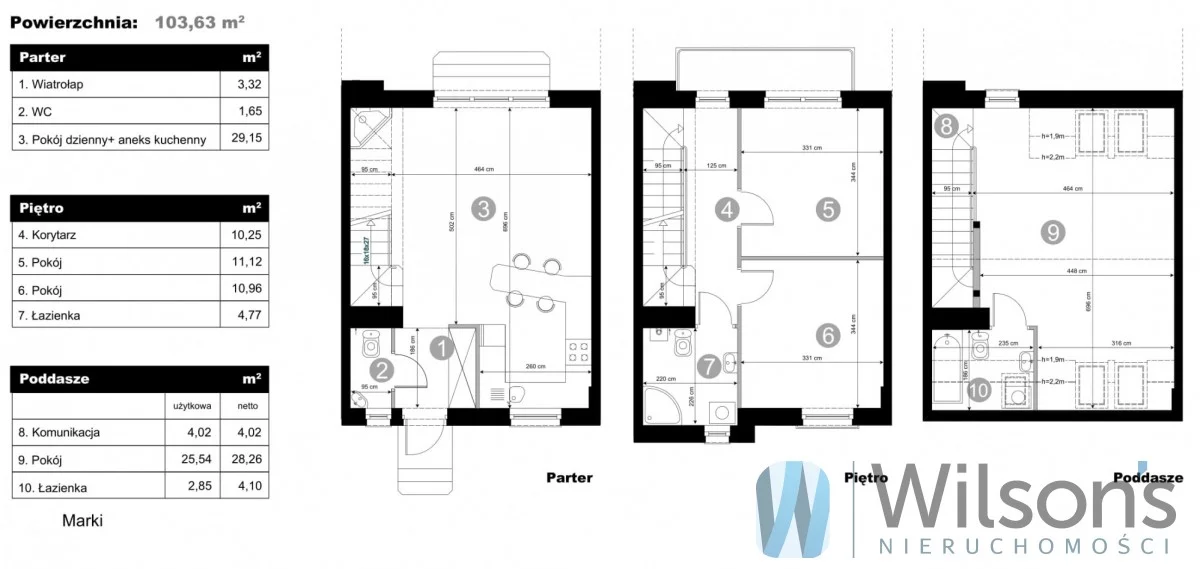
Segment 103,63 mkw (całkowita 107,60mkw ) składa się z 3 poziomów :
Parter:
- salon z aneksem - 29,15 mkw
- wiatrołap - 3,32 mkw
- wc - 1,65 mkw
Piętro:
- pokój - 11,12 mkw
- pokój - 10,96 mkw (z wyjściem na balkon)
- korytarz - 10,25 mkw
- łazienka - 4,77 mkw
Poddasze:
- pokój - 28,26 mkw ( 25,54 użytkowa)
- łazienka - 4,10 mkw ( 2,85 użytkowa)
- komunikacja - 4,02 mkw
Dodatkowo w cenie:
- ogródek
- miejsce postojowe
Lokal mieszkalny w budynku mieszkalnym powstaje w następującej technologii standardzie:
1. Konstrukcja budynku: technologia tradycyjna, murowana, stropy, schody i balkony o konstrukcji żelbetowej; budynki pokryte dachami dwuspadowymi, pokryte blachodachówką.
2. Fundament: płyta fundamentowa - żelbetowa.
3. Ściany zewnętrzne: główny materiał - pustaki ceramiczne (25 cm), wykończone w technologii lekkiej-mokrej z zastosowaniem styropianu grafitowego (15 cm), pomiędzy lokalami zdylatowane ściany z pustaków ceramicznych (18,8 cm).
4. Ściany wewnętrzne: konstrukcyjne z pustaków ceramicznych (25 cm), działowe z pustaków ceramicznych (8 cm).
5. Stropy, podciągi, wieńce i schody wewnętrzne: żelbetowe, monolityczne.
6. Dach: dwuspadowy o konstrukcji drewnianej, pokrycie dachu - blachodachówka, obróbki blacharskie z blachy powlekanej, rynny i rury spustowe PVC.
7. Schody zewnętrzne: kostki i galanteria betonowa.
8. Kominy: systemowe, prefabrykowane.
9. Podłogi: posadzka - wylewka betonowa zbrojona przeciwskurczowo, zatarta na gładko, balkony - posadzka betonowa pod płytki mrozoodporne antypoślizgowe.
10. Ściany i sufity - tynki gipsowe maszynowe.
11. Stolarka: okienna - PCV, z wbudowanymi nawiewnikami, okna trzyszybowe, co najmniej jedno skrzydło w pomieszczeniu rozwieralno-uchylne.
12. Drzwi wejściowe: klasy RC2.
13. Parapety: parapety zewnętrzne z blachy, bez parapetów wewnętrznych.
14. Barierki na balkonie.
15. Wyposażenie łazienek parter i piętro: zaślepione podejścia wodne pod urządzenia (bez białego montażu), zaślepione wyjście odpływu kanalizacyjnego, grzejnik łazienkowy.
16. Wyposażenie kuchni: zaślepione podejścia wodne pod wyposażenie: zlewozmywak, zmywarka, zaślepione wyjście z pionu kanalizacyjnego.
17. Doprowadzenie zasilenia dla potrzeb zmywarki, lodówki, kuchni elektrycznej, w tym doprowadzone do kuchni zasilanie trójfazowe.
18. Wyposażenie pomieszczeń na parterze i piętrze: instalacja elektryczna, instalacja c.o. pod ogrzewanie podłogowe oraz pod możliwość instalacji grzejników, w każdym pokoju, instalacja internetowa do wykorzystania jako antenowa. Wykonana instalacja alarmowa z możliwością podłączenia czujek ruchowych i centralki alarmowej. Możliwość instalacji kominka w salonie na parterze.
19. Poddasze: do dowolnej aranżacji przez Klienta wraz z wykonaniem przez Klienta ewentualnego ocieplenia, instalacja C.O. pod ogrzewanie podłogowe oraz pod możliwość instalacji grzejników, instalacja elektryczna i internetowa z możliwością wykorzystania jako antenowa.
20. Ogrzewanie podłogowe wodne wykonane zostanie w wiatrołapie, kuchni i łazienkach oraz pokojach i poddaszu. Ze względu ma ogrzewanie podłogowe mimo możliwości instalacji grzejników nie są one montowane w pokojach.
Teren zewnętrzny:
* Zagospodarowanie terenu wokół budynków obejmuje:
a. wykończenie dojścia i dojazdu do budynku zgodnie z projektem:
b. pozostała część chłonna terenu: do zagospodarowania;
c. brama wjazdowa na teren lokalizacji budynków
d. wykonanie ogrodzenia budynków
* Na terenie inwestycji zostaną wykonane zewnętrzne miejsca postojowe dla samochodów osobowych.
* W budynku wykonane zostaną następujące instalacje: elektryczna, gazowa, wod.-kan. oraz c.o., c.w.u. oraz internetowa i alarmowa.
Stan deweloperski - GOTOWY
Oddanie do użytkowania - ODDANY
...
ZAPRASZAMY DO BEZPIECZNEGO OGLĄDANIA DOMU.
Pomożemy dopełnić wszelkich formalności przy zakupie mieszkania.
Pomożemy od ręki w sprawach kredytu.
Mieszkania te zwolnione są z opłaty podatku od czynności cywilno-prawnych PCC (oszczędność wynosi 2%).