Liszki, nowy dom wolnostojący, 4 pokoje, 2 łazienki, działka 5 ar, rekuperacja, stan deweloperski
Rynek pierwotny, kupujący nie płaci 2% podatku pcc
OPIS DOMU
Nowy dom wolnostojący o powierzchni użytkowej 98,16m2 usytuowany na działce o powierzchni 497 m2.
Rozkład pomieszczeń:
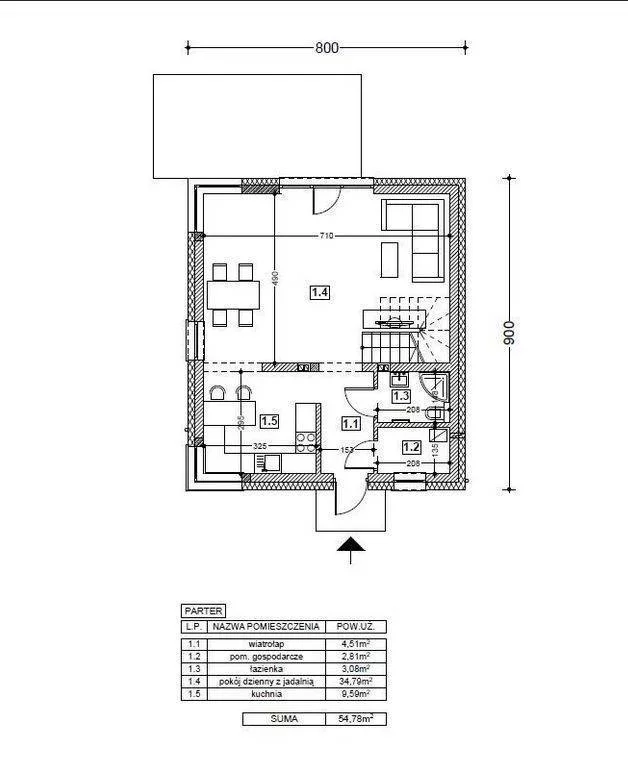
PARTER - powierzchnia użytkowa 52,63m2
- wiatrołap 4,42m2
- salon z jadalnią 32,66m2 oraz wyjściem na taras
- kuchnia 9,58m2
- łazienka 2,71m2
- pomieszczenie gospodarcze / kotłownia 2,85m2
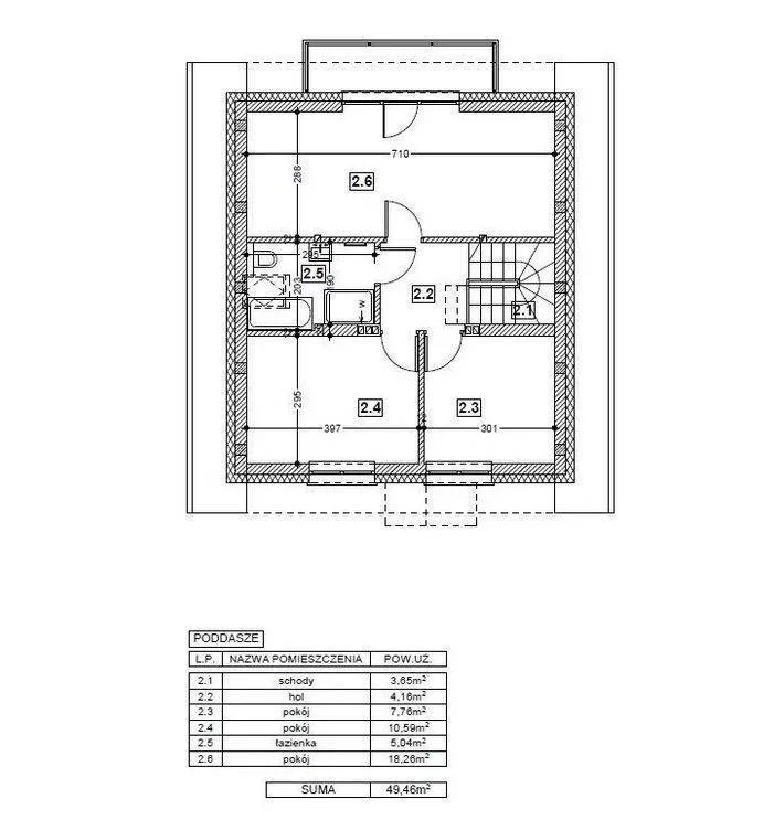
PODDASZE - powierzchnia użytkowa 45,53m2
- korytarz 3,89m2
- sypalnie 18,25m2 z balkonem,
- sypialnia 10,59m2
- sypialnia 7,76m2
- łazienka 5,04m2
Cena i opis dotyczą domu w stanie deweloperskim:
- dom wybudowany w technologii tradycyjnej: ściany zewnętrzne pustak ceramiczny Porotherm 25 cm,
- tynki wewnętrzne gipsowe, ocieplenie zewnętrzne styropianem 20 cm + tynk akrylowy, dach pokryty dachówką ceramiczną, okna dachowe Fakro, rynny PCV
- ocieplenie stropu poddasza 30cm oraz dodatkowo ocieplenie stryszku dachu wełną mineralną 15cm.
- okna PCV 3 szybowe (antracytowe)
- drzwi wejściowe ALUMINIOWE,
- instalacje wewnętrzne: instalacje elektryczna, wodno-kanalizacyjna, alarmowa, tv i internet światłowów
- ogrzewanie gazowe, piec CO, ogrzewanie podłogowe w całym budynku.
- dodatkowo zbiornik na deszczówkę 5m3
Budynek wykonany z najwyższą starannością, z zastosowaniem materiałów wysokiej jakości.
Miejsce parkingowe, chodniki oraz podejścia wyłożone kostką brukową.
Działka ogrodzona, brama, furtka.
Media:
- kanalizacja miejska podłączona do budynku
- woda
- prąd
- gaz
- alarm
- internet światłowodowy,
- dodatkowo zbiornik na deszczówkę 5m3
Komunikacja i lokalizacja:
W pobliżu przystanek MPK - linia 229, 239, 249, sklepy, Szkoła Podstawowa, Przedszkole
Zapraszamy na prezentację.
Kontakt do opiekuna oferty: Anna tel. 605-448-882
ABC DOM Biuro Nieruchomości Al. 29 Listopada 75/4, Kraków, Pośrednik odpowiedzialny licencja 4492. tel. 12/633-39-33, 605-44-88-41
Ogłoszenie nie stanowi oferty w rozumieniu Kodeksu Cywilnego, dane mają charakter informacyjny i mogą ulec zmianie.
Oferta 395380235 dostarczona 2025-10-16 02:14 z systemu LocumNet Online