Na sprzedaż dom w zabudowie szeregowej w Brzozówce na granicy z Tarnowem.
Prezentujemy nowoczesny dom w standardzie deweloperskim, który łączy funkcjonalność z wysoką jakością wykończenia. Nieruchomość znajduje się na działce o powierzchni od 1,7 do 3 arów, co daje wystarczająco dużo przestrzeni na wygodny ogród oraz przestronny taras. Dom o powierzchni użytkowej z dodatkowym poddaszem, zapewnia komfortowe warunki do życia dla całej rodziny.
Dom w standardzie deweloperskim, gotowy do wprowadzenia, z możliwością wykończenia wnętrz według indywidualnych preferencji. Dzięki nowoczesnym rozwiązaniom technologicznym, takim jak pompa ciepła, rekuperacja, czy wysokiej jakości materiały budowlane, dom oferuje komfort, bezpieczeństwo oraz energooszczędność. To idealna propozycja dla osób poszukujących nowoczesnej nieruchomości, łączącej estetykę, funkcjonalność i oszczędność.
Domy w segmencie oferują ogród o powierzchni około 64 m² (8,5 m x 7,5 m), a na szczytach szeregów dodatkową przestrzeń ogrodową z boku.
Nieruchomości zbudowane są na monolitycznej, ciepłej płycie fundamentowej z nowoczesnym kompozytem, bardziej trwałym niż stal. Płyta jest izolowana i ocieplona do głębokości 125 cm. Mury o grubości 25 cm z bloczków betonu komórkowego TERMOBET, ocieplone 15 cm warstwą styropianu. Stropy prefabrykowane, betonowe, z płytami ażurowymi 24 cm i filigran 3 cm, zalane żelbetonem i wykończone gładką wylewką.
Balkony z płyty filigran 20 cm z mostkami termicznymi 10 cm, wykończone płytkami gresowymi. Balustrady ze szkła hartowanego.
Dach wykonany z drewna skandynawskiego C24, izolowany membraną i pokryty blachą dachową o grubości 0,52 mm (25-letnia gwarancja). Rynny stalowe, poziome i pionowe.
Każdy dom wyposażony w pompę ciepła z funkcją chłodzenia, podłączoną do instalacji wodnej i ogrzewania podłogowego na parterze i piętrze. Instalacja przystosowana do fotowoltaiki. Zainstalowana wentylacja mechaniczna z centralą rekuperacyjną i funkcją filtracji powietrza.
Cały szereg przyłączony do gminnej sieci wodociągowej i kanalizacyjnej.
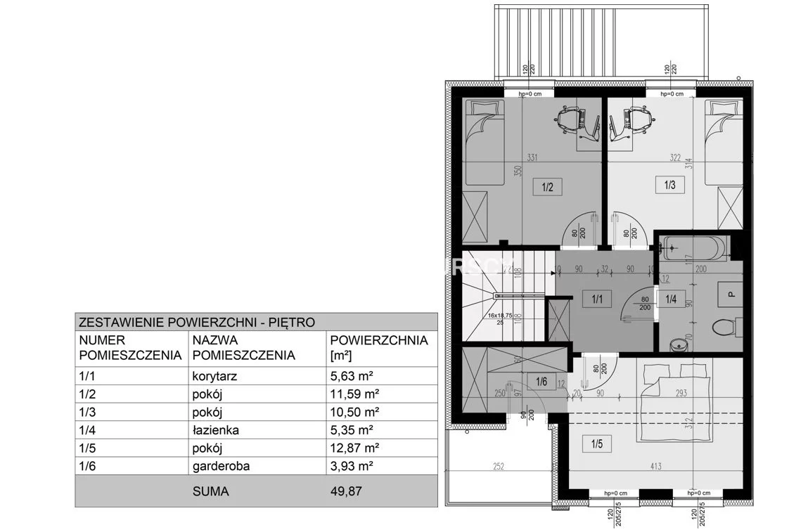
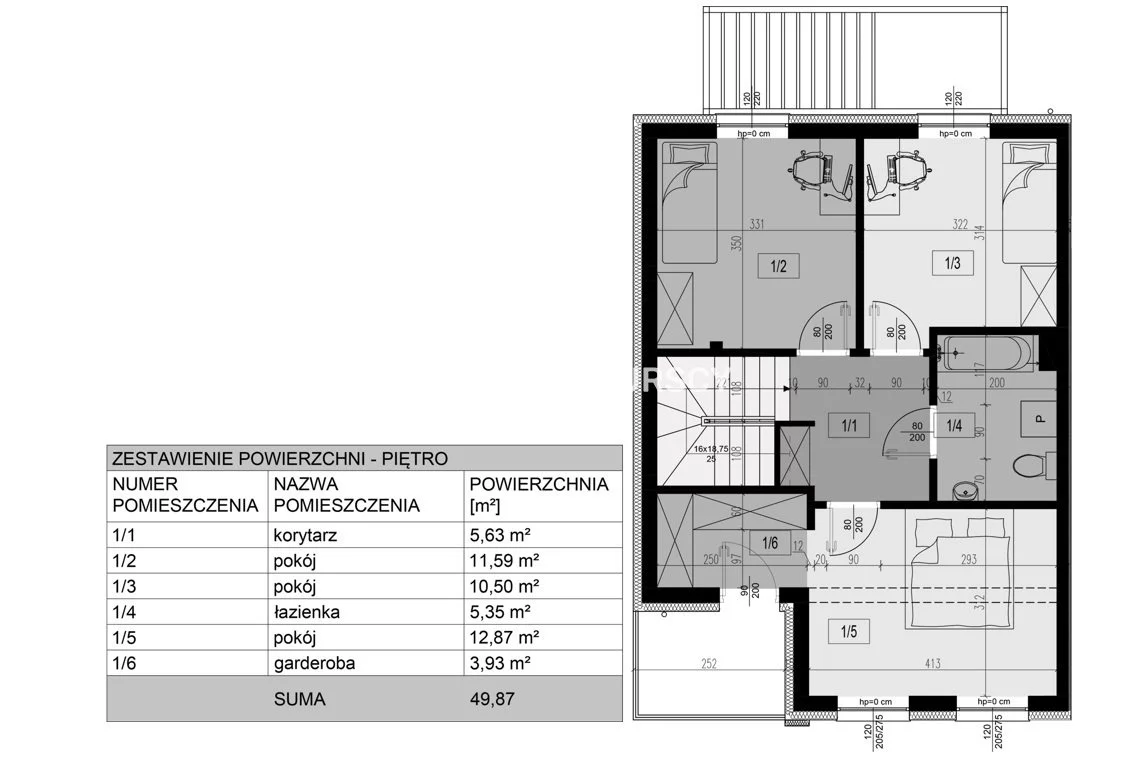
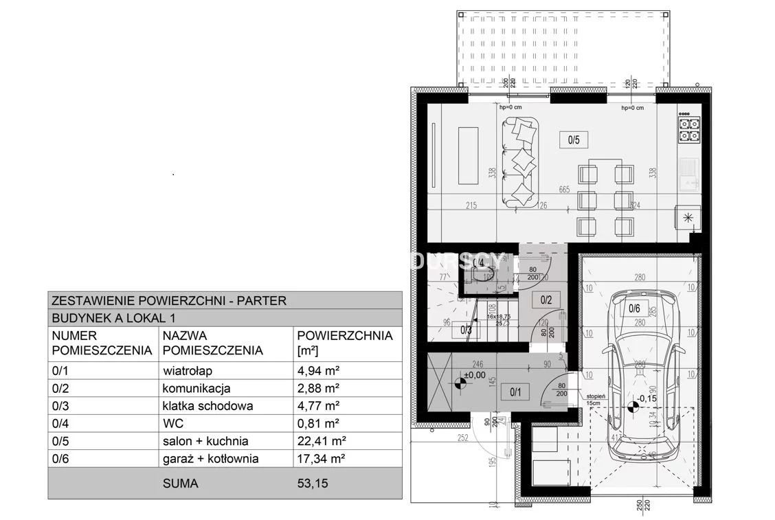
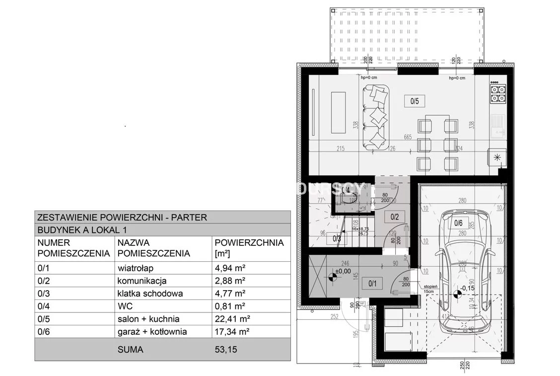
Na powierzchnię domu składa się :
Parter o pow. 53,15 m2:
- wiatrołap
- komunikacja
- salon z kuchnią
- garaż i kotłownia
- WC
- klatka schodowa
Piętro o pow. 49,87 m2:
- 3 x sypialnia
- garderoba
- łazienka
- korytarz
Szczegóły techniczne domów na osiedlu:
Działka : od 1,7 do 3 ar
Powierzchnia użytkowa segmentów : 103 m2 bądz 120m2 + poddasze
Fundament : płyta fundamentowa o grubości 25 cm, wylewka, izolacja i ocieplenie do głębokości 125 cm, co zapewnia stabilność oraz odporność na zmienne warunki atmosferyczne.
Mury : 25 cm beton komórkowy, ocieplony styropianem o grubości 15 cm, a na zewnątrz elegancka elewacja.
Strop : 24 cm płyta betonowa ażurowa, dodatkowo wzmocniona płytą filigran o grubości 3 cm, zalana żelbetonem i pokryta gładką wylewką betonową.
Balkon : płyta betonowa o grubości 20 cm z mostkami termicznymi (10 cm), wykończona płytkami gresowymi.
Balustrada : nowoczesne szkło hartowane i zespolone, zapewniające bezpieczeństwo i estetyczny wygląd.
Schody : betonowe, skrętne, jednobiegowe, zapewniające wygodne połączenie między kondygnacjami.
Dach : konstrukcja z drewna skandynawskiego C24, izolacja membraną oraz pokrycie blachą dachową o grubości 0,52 mm z gwarancją 25 lat.
Rynny : stalowe, lakierowane, odporne na zmienne warunki atmosferyczne.
Drzwi wejściowe : antywłamaniowe, renomowanej marki Wiśniowski, zapewniające bezpieczeństwo i komfort użytkowania.
Brama garażowa : segmentowa, również marki Wiśniowski, co gwarantuje wysoką jakość i niezawodność.
Okna : grafitowe PCV 3-szybowe, zapewniające doskonałą izolację termiczną i akustyczną.
Instalacje i wykończenie wnętrz:
Ogrzewanie : pompa ciepła z funkcją chłodzenia, połączona z instalacją ogrzewania podłogowego zarówno na parterze, jak i piętrze. Takie rozwiązanie zapewnia komfort cieplny przez cały rok.
Wentylacja : mechaniczna rekuperacja i filtracja powietrza z centralą sterującą, co zapewnia optymalną jakość powietrza w domu oraz oszczędność energii.
Instalacja elektryczna i RTV : przygotowana do montażu nowoczesnych urządzeń i systemów multimedialnych.
Ściany działowe : płyty G-K na konstrukcji stalowej, ocieplone wełną mineralną, co zapewnia dodatkową izolację akustyczną i termiczną.
Sufity : płyty G-K na konstrukcji stalowej z 20 cm wełny mineralnej pomiędzy piętrem a poddaszem, co poprawia izolację termiczną i akustyczną.
Ogrodzenie : stalowe panele lakierowane na kolor grafitowy, zapewniające estetyczne i trwałe ogrodzenie wokół nieruchomości.
Osiedle w Brzozówce to wyjątkowa lokalizacja, położona zaledwie 1 km od północnej granicy Tarnowa, w malowniczej okolicy. Dojazd do osiedla prowadzi ulicę łączącą się bezpośrednio z ul. Warszawską, czyli drogą krajową nr 73. Z zachodniej strony osiedle graniczy z rozległym lasem o powierzchni ponad 30 hektarów, który łączy się z Rezerwatem Przyrody Debrza przy ul. Wiśniowej, rozszerzając obszar leśny o kolejne 10 ha. Gruntowa droga przez las prowadzi do miejscowości Pawęzów i ul. Krzyskiej. Osiedle oddalone jest o 8 km od Tarnowskiego Rynku.
Osiedle w Brzozówce jest doskonale skomunikowane z Tarnowem i okolicznymi miastami. Zaledwie 5 minut samochodem dzieli je od wjazdu na autostradę A4, a mimo tak bliskiej lokalizacji, hałas z autostrady nie dociera do osiedla. Mieszkańcy mają łatwy dostęp do Tarnowa, a także szybki dojazd do Krakowa i Rzeszowa. Sprawy urzędowe mogą załatwiać szybko w pobliskiej gminie Lisia Góra, co zapewnia wygodę i oszczędność czasu.
Osiedle w Brzozówce to idealne miejsce dla osób szukających spokoju i wygody, z jednoczesnym dostępem do licznych udogodnień i atrakcji w pobliżu. W okolicy znajdują się liczne punkty usługowe, instytucje i miejsca rekreacyjne, które zapewniają komfort codziennego życia.
Las - 30 sekund pieszo. Tuż obok osiedla rozciąga się rozległy las, który stanowi doskonałe miejsce na spacery i relaks w otoczeniu natury.
Przystanek autobusowy - 8 minut pieszo, zapewniający łatwy dostęp do komunikacji publicznej.
Sklep spożywczy - 8 minut pieszo, idealny na szybkie zakupy codziennych artykułów.
Paczkomat inPost - 8 minut pieszo, wygodne miejsce do odbioru i nadawania paczek.
Publiczna szkoła podstawowa i przedszkole - 20 minut pieszo lub 3 minuty samochodem, zapewniające edukację dla dzieci w najbliższej okolicy.
Przedszkole niepubliczne z oddziałem integracyjnym Małe Kroczki - 6 minut samochodem, placówka oferująca opiekę i edukację dzieciom z niepełnosprawnościami.
Stacja paliw - 3 minuty samochodem, zapewniająca wygodny dostęp do paliwa.
Kościół - 21 minut pieszo lub 3 minuty samochodem, miejsce kultu religijnego.
Biedronka - 3 minuty samochodem, sieć sklepów spożywczych oferująca szeroki wybór produktów.
Żabka - 6 minut samochodem, popularny sklep spożywczy na szybkie zakupy.
Apteka - 4 minuty samochodem, zapewniająca dostęp do leków i produktów zdrowotnych.
Centrum handlowe MPARK (Auchan, Action, Decathlon, Euro RTV AGD, EXTREME Fitness, park trampolin FlyPark) - 7 minut samochodem, kompleks oferujący zakupy, rozrywkę i fitness.
Lidl i Leroy Merlin - 7 minut samochodem, popularne sklepy spożywcze i budowlane.
Galeria handlowa GEMINI PARK - 9 minut samochodem, miejsce na zakupy, restauracje i rozrywkę.
Wjazd na autostradę A4 - 5 minut samochodem, zapewniający szybki dostęp do dalszych podróży.
Rynek w Tarnowie - 15 minut samochodem, centrum miasta z licznymi sklepami, restauracjami i atrakcjami turystycznymi.
Kraków, centrum - 50 minut samochodem, umożliwiający łatwy dostęp do stolicy Małopolski.
Rzeszów, centrum - 50 minut samochodem, szybki dojazd do stolicy Podkarpacia.
Urząd gminy Lisia Góra - 6 minut samochodem, miejsce, w którym załatwisz sprawy urzędowe.
Poczta - 6 minut samochodem, miejsce do wysyłania i odbierania przesyłek.
Basen / pływalnia - 13 minut samochodem, idealne miejsce na aktywność fizyczną i relaks.
Centrum sportów rakietowych Spokojna - 9 minut samochodem, miejsce dla miłośników sportów rakietowych.
Stadnina koni - 11 minut samochodem, doskonałe miejsce dla osób interesujących się jeździectwem.
Z tak bliskim dostępem do niezbędnych punktów usługowych oraz miejsc rekreacyjnych, osiedle w Brzozówce zapewnia komfortowe i wygodne życie w bliskiej odległości od natury, a jednocześnie w pobliżu miast takich jak Tarnów, Kraków czy Rzeszów.
Serdecznie zapraszam do kontaktu
Patrycja Rubinkiewicz
505 236 943
Zapytaj o ofertę
::DODATKOWE INFORMACJE
Kategoria oferty: Mieszkania dla rodzin z dziećmi
Prąd: w budynku
Gaz: brak
Woda: pompa
Dojazd: ASFALTOWA
Otoczenie: działki zabudowane
Ogrzewanie: pompa ciepła
Kanalizacja: miejska
Linie telefoniczne: TAK
Internet: TAK
Nadaje się na biuro: TAK
Komunikacja publ.: autobus miejski
Odległość do komunikacji publicznej [m]: 400
Odl. do sklepu [m]: 400
Odl. do szkoły [m]: 800
Odl. do przedszkola [m]: 80
Teren ogrodzony: TAK
Instalacje: nowe
Balkon: jest
Tarasy: taras duży
Liczba tarasów: 1
Powierzchnia ogródka [m2]: 60
Zagosp. działki: częściowo zagospodarowana
Ukształtowanie działki: płaska
Kształt działki: prostokąt
Rodzaj domu: segment
Stan wybudowania: Stan deweloperski
Typ elewacji: tynk szlachetny
Pokrycie dachu: blacha
Powierzchnia użytkowa [m2]: 103
Stan budynku: do wykończenia
Podpiwniczenie: nie
Garaż: w bryle
Ogrodzenie działki: metalowe
Grunt utwardzany: TAK
Rok budowy: 2024
Liczba pokoi: 4
Wysokość pomieszczeń [m]: 2,6000
Liczba sypialni: 3
Podłogi pokoi: wylewka
Ściany pokoi: tynk
Typ kuchni: aneks kuchenny - połączony z salonem
Rodzaj kuchni: aneks kuchenny połączony z jadalnią i salonem
Podłoga kuchni: wylewka
Typ łazienki: razem z wc
Liczba łazienek: 1
Powierzchnia łazienki [m2]: 5,35
Glazura łazienki: bez glazury
Podłoga łazienki: wylewka
Ściany łazienki: tynk
Liczba WC: 1
Powierzchnia WC: 0,81
Glazura WC: bez glazury
Podłoga WC: wylewka
Ściany WC: tynk
Liczba przedpokoi: 1
Podłoga przedpokoi: wylewka
Ściany przedpokoi: tynk
::LINK DO STRONY
https://sadurscy.pl/offer/BS2-DS-305960
::KONTAKT DO AGENTA
Patrycja Rubinkiewicz
+48 505-236-943
Zapytaj o ofertę
::DANE BIURA
Oddział BS2, Rynek Pierwotny
Przewóz 47
30-081 Kraków
12 630-90-45
--------------------------
::GRATIS | Nasza prowizja zawiera: koszt przedwstępnej notarialnej umowy sprzedaży nieruchomości z rynku wtórnego.
::GWARANCJA | Gwarancja zwrotu zadatku. Więcej informacji na sadurscy.pl/zwrot-zadatku/
Oferta wysłana z systemu Galactica Virgo