DOM / 192,19 M2 / 7 POKOI / 2 ŁAZIENKI / STAN SUROWY / RUPNIÓW / GMINA WIEJSKA LIMANOWA / POWIAT LIMANOWSKI
KTO MOŻE ZAMIESZKAĆ ❓
Mieszkanie jest idealne dla rodziny z dziećmi nawet 2+6, inwestorzy którzy chcieliby prowadzić mały "pensjonat"
JAKIE JEST ROZMIESZCZENIE DOMU ❓
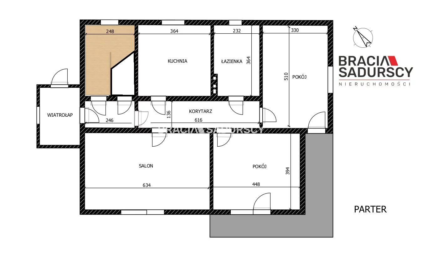
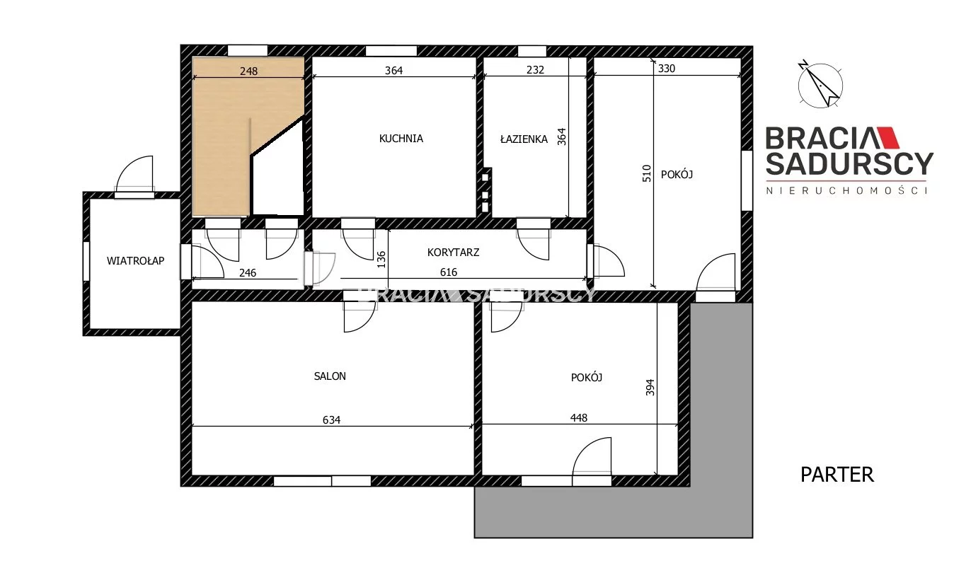
✅ PARTER ✅
✅ SALON / SYPIALNIA 1 [ ok. 25 M2 ] południe
✅ POKÓJ 2 [ ok. 17,6 M2 ] południe
- z tarasem
✅ POKÓJ 3 [ ok. 16,8 M2 ] północ
✅ KUCHNIA [ ok. 13,2 M2 ] północ
✅ ŁAZIENKA [ ok. 8,4 M2 ] północ
✅ WIATROŁAP [ ok. 3,3 M2 ] zachód
✅ KORYTARZ [ ok. 8,4 M2 ]
✅ PIERWSZE PIĘTRO ✅
✅ POKÓJ 4 [ ok. 26,4 M2 ] południe
- Z balkonem
✅ POKÓJ 5 [ ok. 18,5 M2 ] południe
- Z balkonem
✅ POKÓJ 6 [ ok. 11,9 M2 ] północ
✅ POKÓJ 7 [ ok. 13,5 M2 ] północ
- może też pełnić funkcje kuchni
✅ ŁAZIENKA [ ok. 9,1 M2 ] północ
✅ KORYTARZ [ ok. 8,4 M2 ]
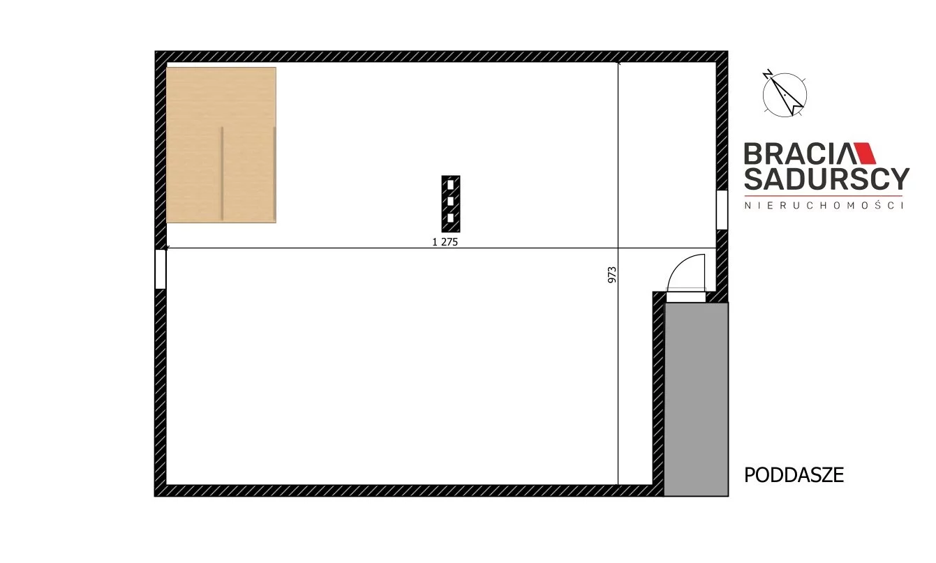
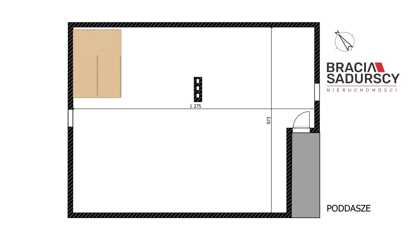
✅ PODDASZE ✅ [ ok. 100 M2 ]
Można wstawić okna i dowolnie dostosować do potrzeb użytkowych lub zrobić duży strych
Z CZEGO JEST ZROBIONY DOM❓
✅ Pustak żużlowy
✅ Okna do wymiany
✅ Dach do wymiany
JAKIE SĄ OGÓLNE CECHY DOMU ❓
⚡ dom z 1994
⚡ pokoje można przerobić dowolnie na garderobę / siłownie / gabinet / pokój tematyczny
⚡ widokowa działka (góry)
⚡ wymiary działki 30,54 x 49,02 x 29,2 x 37,7 m
⚡ powierzchnia działki 12,52 ara
⚡ przyjazne sąsiedztwo
⚡ w tej samej miejscowości sklep spożywczo-przemysłowy Centrum Delikatesy - tania sieciówka
⚡ blisko do Krakowa 60 min, Limanowa 18 min
⚡ogrzewanie planowane centralne
CZY DZIAŁKA JEST UZBROJONA❓
✔ podjazd do domu - droga żwirowa prywatna / współwłasność - nowy właściciel będzie wpisany do aktu notarialnego
✔ prąd - doprowadzony do domu, / założona skrzynka
✔ woda - miejska podłączona do domu
✔ gaz - w sąsiedztwie, można zroibić przyłącze
✔ kanalizacja - szambo, 3 zbiorniki
GDZIE MOŻNA ZAMIESZKAĆ ❓
RUPNIÓW / POW. LIMANOWSKI / GM. LIMANOWA
✅ Sklep spożywczo-przemysłowy DELIKATESY CENTRUM 2 min samochodem
✅ Lokalny sklep spożywczy 3 min samochodem
✅ Sklep budowlany / hurtownia / skład budowlany 3 min samochodem
✅ Szkoła podstawowa 3 min samochodem
✅ Przedszkole 3 min samochodem
✅ Przystanek autobusowy 1 min samochodem Trasa Kraków - Limanowa
✅ Kościół 3 min samochodem
ZAPRASZAM NA PREZENTACJĘ DOMU I !!! OBEJRZENIA VIDEO !!! ORAZ WIRTUALNEGO SPACERU PO DOMU
Prezentacja bezpłatna
Biuro pobiera jednorazową prowizję w momencie zakupu
Korzystając z usług biura kupujący może liczyć na gwarancję zwrotu zadatku (szczegóły ustalane indywidualnie)
Kontakt do agenta
Marzena Wróbel
537 - 765 - 461
✳✳✳✳✳✳✳✳✳✳✳✳✳✳✳✳✳✳✳✳✳✳✳✳✳✳✳✳✳✳✳✳✳✳✳✳✳✳✳✳✳✳✳✳✳✳✳✳✳✳✳✳✳✳✳✳✳✳✳✳✳✳✳✳✳✳✳✳✳✳✳✳✳✳✳✳✳✳✳
HOUSE / 192.19 M2 / 7 ROOMS / 2 BATHROOMS / SHELL CONDITION / RUPNIÓW / LIMANOWA RURAL MUNICIPALITY / LIMANOWA COUNTY
WHO CAN LIVE HERE ❓
The house is ideal for a family with children, even 2+6, or investors who would like to run a small guesthouse.
WHAT IS THE LAYOUT OF THE HOUSE ❓
✅ GROUND FLOOR ✅
✅ LIVING ROOM / BEDROOM 1 [approx. 25 M2] south
✅ ROOM 2 [approx. 17.6 M2] south
- with terrace
✅ ROOM 3 [approx. 16.8 M2] north
✅ KITCHEN [approx. 13.2 M2] north
✅ BATHROOM [approx. 8.4 M2] north
✅ VESTIBULE [approx. 3.3 M2] west
✅ CORRIDOR [approx. 8.4 M2]
✅ FIRST FLOOR ✅
✅ ROOM 4 [approx. 26.4 M2] south
- with balcony
✅ ROOM 5 [approx. 18.5 M2] south
- with balcony
✅ ROOM 6 [approx. 11.9 M2] north
✅ ROOM 7 [approx. 13.5 M2] north
- can also serve as a kitchen
✅ BATHROOM [approx. 9.1 M2] north
✅ CORRIDOR [approx. 8.4 M2]
✅ ATTIC ✅ [approx. 100 M2]
Windows can be installed and the space can be adapted for use or converted into a large attic.
WHAT IS THE HOUSE MADE OF ❓
✅ Cinder block
✅ Windows need replacement
✅ Roof needs replacement
GENERAL FEATURES OF THE HOUSE ❓
⚡ House from 1994
⚡ Rooms can be freely converted into a wardrobe / gym / office / themed room
⚡ Plot with a mountain view
⚡ Plot dimensions 30.54 x 49.02 x 29.2 x 37.7 m
⚡ Plot area 12.52 ares
⚡ Friendly neighborhood
⚡ In the same village there is a grocery and general store “ Delikatesy Centrum ” - affordable chain
⚡ Close to Kraków (60 min), Limanowa (18 min)
⚡ Planned central heating
IS THE PLOT EQUIPPED WITH UTILITIES ❓
✔ Driveway to the house - private gravel road / co-ownership - the new owner will be included in the notarial deed
✔ Electricity - connected to the house, fuse box installed
✔ Water - municipal, connected to the house
✔ Gas - available in the neighborhood, connection possible
✔ Sewage - septic tank, 3 containers
WHERE CAN YOU LIVE ❓
RUPNIÓW / LIMANOWA COUNTY / LIMANOWA MUNICIPALITY
✅ Grocery and general store DELIKATESY CENTRUM 2 min by car
✅ Local grocery store 3 min by car
✅ Building materials store / warehouse 3 min by car
✅ Primary school 3 min by car
✅ Kindergarten 3 min by car
✅ Bus stop 1 min by car Route Kraków - Limanowa
✅ Church 3 min by car
I INVITE YOU TO A PRESENTATION OF THE HOUSE AND TO WATCH THE VIDEO AND VIRTUAL TOUR OF THE PROPERTY
Presentation free of charge
The agency charges a one-time commission at the time of purchase
By using the agency’s services, the buyer can count on a deposit refund guarantee (details arranged individually)
Contact agent
Marzena Wróbel
537 - 765 - 461
::DODATKOWE INFORMACJE
Dojazd: UTWARDZONA
Otoczenie: góry
Ogrzewanie: inne
Komunikacja publ.: bus
Odległość do komunikacji publicznej [m]: 650
Odl. do sklepu [m]: 1600
Odl. do szkoły [m]: 2300
Odl. do przedszkola [m]: 2300
Odległość od plaży: 650000
Okna: stare drewniane
Instalacje: ELEKTRYCZNA, WODNA, GAZOWA
Balkon: jest
Liczba balkonów: 2
Wymiary działki [m]: 30,54 x 49,02 x 29,2 x 37,7
Zagosp. działki: częściowo zagospodarowana
Ukształtowanie działki: lekko nachylona
Kształt działki: trapez
Rodzaj domu: jednorodzinny
Stan wybudowania: Stan surowy zamknięty
Typ elewacji: brak
Pokrycie dachu: inne
Powierzchnia użytkowa [m2]: 192,1900
Stan budynku: do remontu
Podpiwniczenie: częściowo podpiwniczony
Garaż: blaszak
Ogrodzenie działki: brak
Rok budowy: 1994
Liczba pokoi: 7
Liczba sypialni: 7
Powierzchnia pokoi [m2]: 143
Wystawa okien - pokoje : Wsch, Pd, Pn
Typ kuchni: oddzielna
Rodzaj kuchni: oddzielna
Powierzchnia kuchni [m2]: 13,25
Wystawa okien - kuchnia: Pn
Typ łazienki: razem z wc
Liczba łazienek: 2
Powierzchnia łazienki [m2]: 17,55
Wystawa okien - łazienka : Pn
Liczba przedpokoi: 2
Powierzchnia przedpokoi [m2]: 16,75
::LINK DO STRONY
https://sadurscy.pl/offer/BS5-DS-312087
Zobacz Wirtualny Spacer: https://sb360.online/ntgnrv
::KONTAKT DO AGENTA
Marzena Wróbel
+48 537-765-461
+48 537-765-461
Zapytaj o ofertę
::DANE BIURA
Oddział BS5, Nowa Huta
Bracia Sadurscy Dariusz Sadurski
Os. Kazimierzowskie 36
31-844 Kraków
12 265 10 29