Dom jednorodzinny na działce 23 ar w Sobolowie!
Dwukondygnacyjny dom jednorodzinny posadowiony na malowniczej działce o powierzchni 23 ar położonej w Sobolowie gm. Łapanów, w otoczeniu terenów podnóża Beskidu Wyspowego.
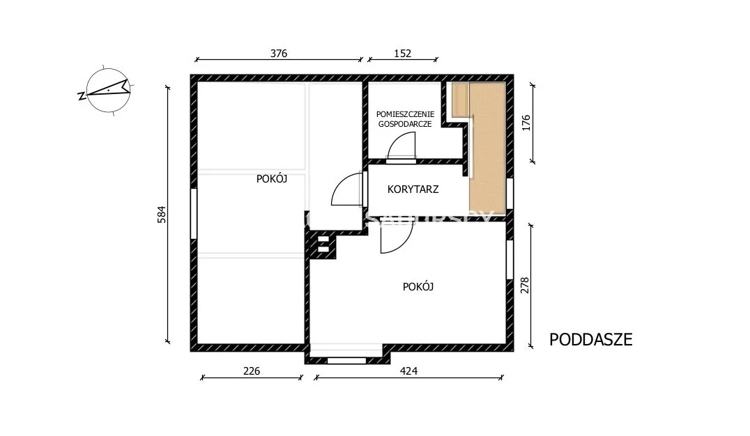
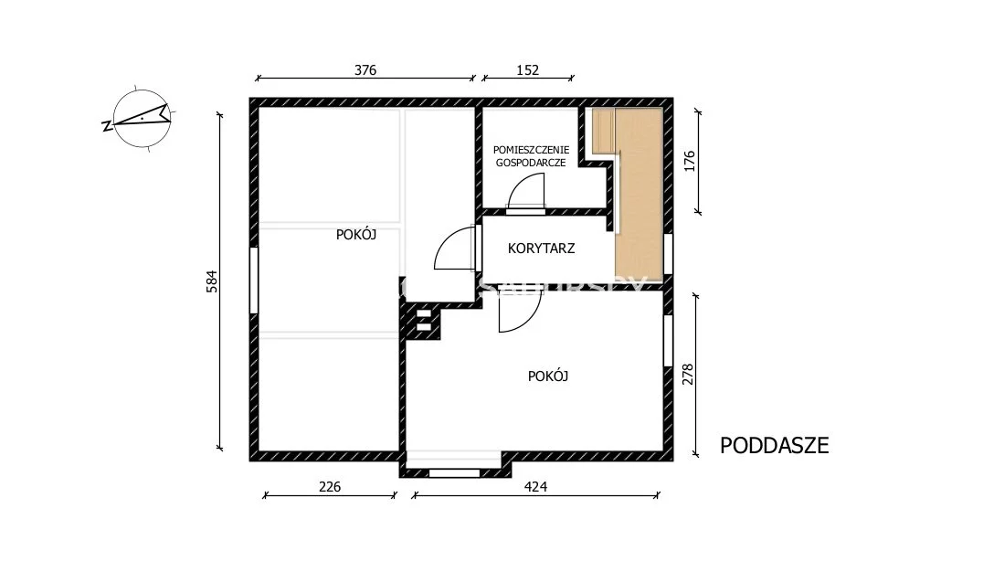
Na poziomie parteru znajduje się przytulny salon z wyposażonym aneksem kuchennym, łazienka oraz wiatrołap, natomiast na poddaszu są dwa pokoje z przeznaczeniem na sypialnie, oraz mała garderoba.
Dom został oddany do użytkowania w 2008 r., jest w pełni wyposażony, umeblowany i gotowy do zamieszkania.
Budynek posiada konstrukcję szkieletową drewnianą, ocieplony jest wełną mineralną o grubości 25 cm, dzięki czemu uzyskano bardzo dobre parametry termiczne. Budynek jest podpiwniczony, ławy fundamentowe i strop nad piwnicą żelbetowe. Dach pokryty blachodachówką, okna PCV nowego typu, podłogi wykonane z drewna. W domu zastosowano system centralnego ogrzewanie w oparciu o piec dwufunkcyjny. System kanalizacji w oparciu o zbiornik bezodpływowy. Budynek posiada przyłącza do sieci elektrycznej , sieci gazowej i sieci wodociągowej .
Dojazd do działki zapewnia droga asfaltowa o niewielkim natężeniu ruchu. Działka jest częściowo ogrodzona, zadbana i urządzona, okolica cicha i spokojna z nieregularną zabudową jednorodzinną. W odległość zaledwie 200 m jest sklep spożywczy i przystanek komunikacji (bus), szkoła podstawowej w Sobolowie znajduje się w odległości 100 m od nieruchomości.
Miejscowość posiada korzystnie rozwiniętą siec komunikacyjną, odległość do granicy Krakowa ( węzeł Bieżanów ) wynosi tylko 30 km, węzeł Targowisko na autostradzie A4 jest w odległości 13 km od nieruchomości, centrum Bochni jest w odległości 14 km , natomiast odległość do siedziby gminy w Łapanowie wynosi 9 km .
Biuro pomaga bezpiecznie przeprowadzić transakcję.
Zapraszam do kontaktu i na prezentację nieruchomości.
Wojciech Sudoł
+48 509 907 533
Zapytaj o ofertę
::DODATKOWE INFORMACJE
Prąd: w budynku
Gaz: jest
Woda: jest
Dojazd: asfalt
Otoczenie: góry
Ogrzewanie: C.O. GAZOWE
Kanalizacja: szambo
Internet: TAK
Komunikacja publ.: bus
Odległość do komunikacji publicznej [m]: 200
Odległość od centrum [m]: 200
Odl. do sklepu [m]: 200
Odl. do szkoły [m]: 150
Odl. do przedszkola [m]: 150
Opłaty wg liczników: woda, prąd, gaz
Okna: PCV
Instalacje: dobre
Wymiary działki [m]: 35 X 63
Zagosp. działki: zagospodarowana
Ukształtowanie działki: lekko nachylona
Kształt działki: prostokąt
Rodzaj domu: jednorodzinny
Stan wybudowania: Pod klucz
Typ elewacji: drewno
Pokrycie dachu: blachodachówka
Powierzchnia użytkowa [m2]: 63
Stan budynku: do odświeżenia
Podpiwniczenie: tak
Ogrodzenie działki: częściowo ogrodzona
Warunki zabudowy: MPZP
Zabudowa działki: dom wolnostojący jednorodzinny
Rok budowy: 2009
Liczba pokoi: 3
Wysokość pomieszczeń [m]: 2,5000
Liczba sypialni: 2
Powierzchnia pokoi [m2]: 30
Podłogi pokoi: panele
Ściany pokoi: malowane
Wyposażenie pokoi: meble - nowego typu
Typ kuchni: widna - wejście z pokoju
Rodzaj kuchni: jasna z oknem
Powierzchnia kuchni [m2]: 6
Podłoga kuchni: gres
Wyposażenie kuchni: meble kuchenne na wymiar, mikrofalówka, lodówko/zamrażarka
Wystawa okien - kuchnia: Zach
Typ łazienki: razem z wc
Liczba łazienek: 1
Powierzchnia łazienki [m2]: 3
Glazura łazienki: starszego typu
Podłoga łazienki: gres
Liczba przedpokoi: 1
Powierzchnia przedpokoi [m2]: 3
::LINK DO STRONY
https://sadurscy.pl/offer/BS5-DS-311269
Zobacz Wirtualny Spacer: https://sb360.online/w1dml0
::KONTAKT DO AGENTA
Wojciech Sudoł
+48 509-907-533
Zapytaj o ofertę
::DANE BIURA
Oddział BS5, Nowa Huta
Bracia Sadurscy Dariusz Sadurski
Os. Kazimierzowskie 36
31-844 Kraków
12 265 10 29