|
Dom jednorodzinny w miejscowości Cierpisz na działce 8ar
W ofercie biura posiadamy wspaniały dom o powierzchni 160 m 2 usytuowanej na 8 arowej działce w cichej i spokojnej okolicy nieopodal takich miast jak Rzeszów oraz Łańcut. Dom w stanie surowym zamkniętym dzięki czemu można go zaaranżować według indywidualnej wizji. Zamontowane zostały okna trzyszybowe z PCV oraz drzwi garażowe firmy Wiśniowski, co przekłada się na niską utratę cieplną. Dach został pokryty blachodachówką.
Dom posiada na parterze:
- salon dzienny z wyjściem na taras
- pokój 1
- pokój 2
- kuchnię
- spiżarkę
- łazienkę
- hall
- garaż z bezpośrednim przejściem z domu
- kotłownię
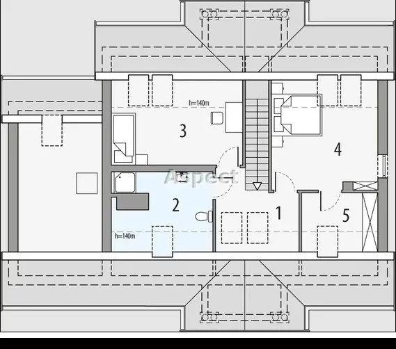
Planowana aranżacja piętra obejmuje:
- pokój 3
- pokój 4
- łazienkę
- pokój 5/garderobę
Dojazd do działki zapewnia droga gminna utwardzona z planowanym nałożeniem nawierzchni. Dom ma podłączenia kanalizacji, prądu oraz wody, możliwe zaopatrzenie w gaz.
Zapraszamy na prezentację nieruchomości po wcześniejszym telefonicznym uzgodnieniu terminu.
Zapraszamy również do zapoznania się z innymi ofertami naszego biura. Jeśli potrzebujesz pomocy lub więcej informacji skontaktuj się z naszymi doradcami, którzy pomogą wybrać ofertę odpowiadającą wszystkim Twoim oczekiwaniom, a także z przyjemnością zaprezentują nieruchomość. Zajmiemy się za Ciebie wszystkimi formalnościami związanymi z transakcją. Jeśli potrzebujesz dodatkowego finansowania, pomożemy uzyskać kredyt . Zadbamy również o bezpieczeństwo Twojej nieruchomości dobierając odpowiednie ubezpieczenie.
|
Biuro Nieruchomości ASPECT Rzeszów
Szymon Baran
665 044 695
Zapytaj o ofertę
Znajdziesz nas na www.rzeszow.aspect.info.pl , a także FB https://www.facebook.com/AspectRzeszow/
OFERTA SPECJALNA OFERTA SPECJALNA
Kupując nieruchomości z biurem ASPECT NIERUCHOMOŚCI o. Rzeszów
Możesz skorzystać z oferty naszych Partnerów
Wykończenie wnętrz Polecamy również SPRAWDZONĄ
Ekipę REMONTOWĄ
MERKURY MARKET Zapewniamy ubezpieczenie poprzez
::DODATKOWE INFORMACJE |
Prąd: jest |
Gaz: brak |
Woda: jest |
Dojazd: droga utwardzona |
Otoczenie: zabudowa jednorodzinna |
Ogrzewanie: brak |
Kanalizacja: tak |
Komunikacja publ.: bus |
Drzwi antywłamaniowe: TAK |
Opłaty wg liczników: CO, prąd, woda |
Okna: nowe PCV |
Instalacje: nowe |
Tarasy: taras |
Liczba tarasów: 1 |
Wymiary działki [m]: 24m x 20m |
Zagosp. działki: zagospodarowana |
Ukształtowanie działki: płaska |
Kształt działki: prostokąt |
Rodzaj domu: dom jednorodzinny |
Stan wybudowania: Stan surowy zamknięty |
Typ elewacji: brak |
Pokrycie dachu: blachodachówka |
Powierzchnia użytkowa [m2]: 132 |
Stan budynku: do wykończenia |
Garaż: w budynku |
Ogrodzenie działki: brak |
Rok budowy: 2025 |
Liczba pokoi: 6 |
Wysokość pomieszczeń [m]: 2,6000 |
Liczba sypialni: 5 |
Wystawa okien - pokoje : Wsch, Pd, Pn |
Typ kuchni: oddzielna widna |
Typ łazienki: razem z wc, z oknem |
Liczba łazienek: 2 |
Wystawa okien - łazienka : Wsch |
Liczba przedpokoi: 2 |
::LINK DO STRONY |
http://www.rzeszow.aspect.info.pl/oferta.aspx?id=1120406
::KONTAKT DO AGENTA |
Leszek Ładoś |
530 555 010 |
Zapytaj o ofertę
::DANE BIURA |
Aspect Nieruchomości - Rzeszów |
FHU INTEGRA Leszek Ładoś |
Grunwaldzka 17 e |
35-068 Rzeszów |
+48 530 555 010 |
www.rzeszow.aspect.info.pl
Pośrednik odpowiedzialny zawodowo za wykonanie umowy pośrednictwa: Leszek Ładoś (licencja nr: 27615)
|
Oferta wysłana z systemu BCK Galactica